查看完整案例

收藏

下载
以东方美学为主题设计的咖啡馆位于一座百年古建筑之中,以其古朴而典雅的外观展现出独特的气质。在这里,可以体会到一种浓郁的岁月感,也能感受到来自东方文化的深厚底蕴。
01COMPLEMENT
EACH OTHER
相得益彰
一影设计希望能将传统文化与当代生活融合并相得益彰,让人们在这样一个独特惬意之所中感受到不同寻常生命中难得时光所带来的快乐。这个设计更多的是保留中探索,探索中停留。
P. 01
P. 02
P. 03
小院子里依然保留着一颗具有年代感的玉兰树,这颗玉兰树曾在这片土地吸收着阳光养分,深深地扎根此处…像一个守护者般的在这个百年建筑的身旁默默守候。
P. 04
P. 05
P. 06
02SENSE OF STORY
故事感
咖啡馆内部整个内部装修风格以东方美学为主。耐久的柚木结合具有肌理感的莱姆石、宽大通透的玻璃窗、与原始建筑独有的气质结合,使得整体看上去显得格外古朴典雅且有故事感。
P. 07
P. 08
P. 09
P. 10
天然植物,舒适座位,流动光影,把生命中最真实精彩之处展示出来。让人心旷神怡,忽然想要留此地停留…
P. 11
P. 12
P. 13
在这释怀心情,驱散生命中寂寞孤独。还能学习不同文化,帮助我们将心神隐隐遁出尘俗;将真诚高雅之风席卷四方;将思想琢琢剔剔;将感性勾勒出几何;将光明扫射出影子,把生命中最真实、最浪漫、最优雅之处表露无遗。
P. 14
P. 15
P. 16
P. 17
P. 18
P. 19
• 03
MULTIPLE EXPERIENCE
多重体验
建筑的一楼是由各式各样好看又有趣的手工制作咖啡可供大家享用,享用过后来到了二楼,这是一间独立出来作为一间“文化之旅” 的艺术展示区。
P. 20
P. 21
P. 22
P. 23
这里不但有让人眼前一亮的当代艺术家做的装置艺术作品,结合着二楼室内两端的木质推窗,窗外枝繁叶茂与之搭配,优雅浪漫的气氛即刻萦绕心头。在这样的环境中,不仅是享受咖啡带来的味觉体验了。
P. 24
P. 25
P. 26
P. 27
P. 28
P. 29
• 04
ANALYSIS
DIAGRAM
分析图
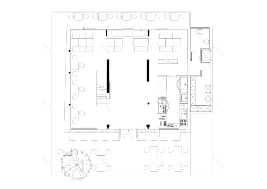
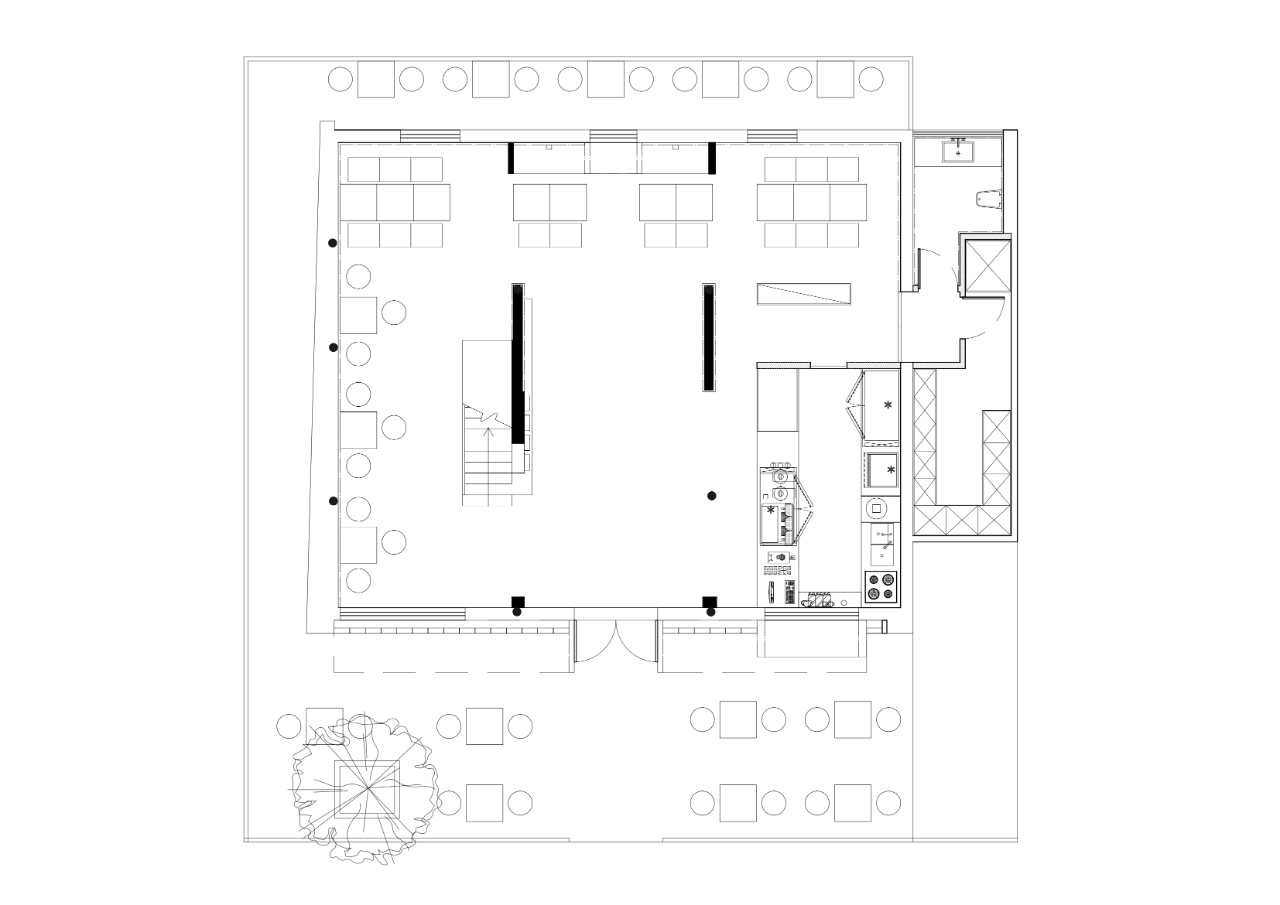
1F 平面图 P. 30
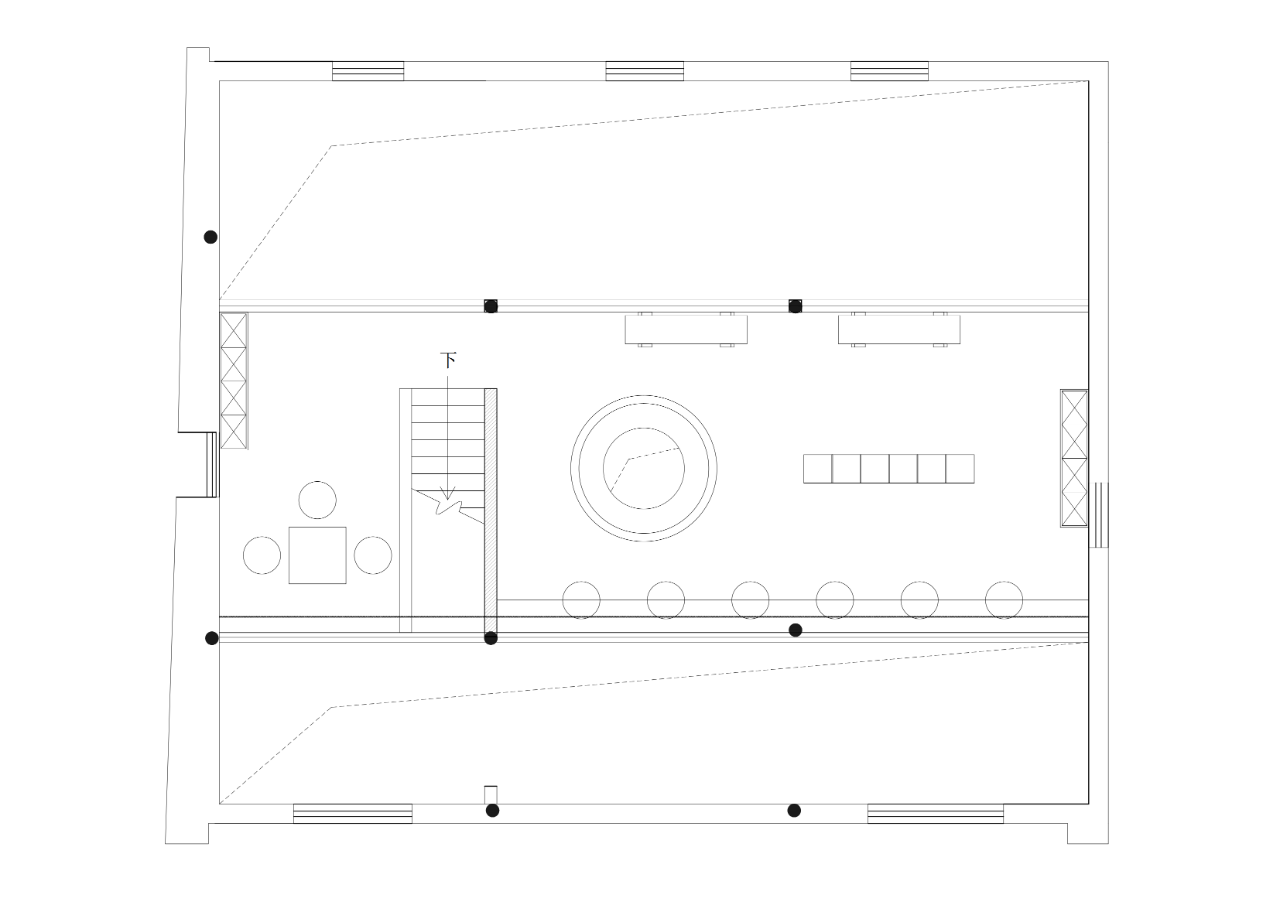
2F 平面图 P. 31
INFO
- 项目名称 - Baoget Coffee
- 设计机构 - 杭州一影建筑设计事务所
- 主创设计 - 吴召影(三井)
- 设计团队 - 一影设计深化团队
- 项目面积 - 110㎡
- 项目地址 - 杭州 法喜寺旁
- 项目摄影 - 瀚墨视觉
DESIGNER
吴召影
一影建筑设计创始人 - 设计总监
一影建筑设计事务所位于杭州市滨江区,设计项目类型包括住宅、商业及餐饮民宿空间。设计理念是将建筑结构的灵动性结合入室内,将自然的设计元素引入室内空间。
一影设计创始人吴召影,毕业于中国美术学院建筑艺术设计学院,师从 2017 年普利兹策奖得主西班牙 RCR 事务所,从事设计行业 10 余年。同年研修于意大利米兰理工大学、布雷拉艺术学院。曾获“中国美术学院优秀设计奖”“优秀教师奖”;中国民宿设计二等奖;安德鲁马丁室内设计奖等众多设计类奖项。
MAGNUM OPUS
一影设计 • NAASTOO
一影设计 • PUMI
一影设计 • VALLISME
一影设计 • 晓说直播间
客服
消息
收藏
下载
最近












































