查看完整案例

收藏

下载
P. 01
质朴的现代主义是当代最唯美的生活方式。美不需张扬,返璞归真才是生活的本质。
——Christian Liaigre
江南,远不止一个地理概念,而是一种理想生活的代名词,她代表优雅、质朴和妥帖,代表现代社会日益珍贵的美好生活本质。位于苏州园区湖西 CBD 的万科左岸中心,是苏州金鸡湖西天际线上的新贵,以大平层公寓为主。DIA 在此贡献 2 款全新样板房,用以呈现苏州精致生活的场景,开启返璞归真的湖居新纪元……
P. 02
P. 03
P. 04
P. 05
P. 06
P. 07
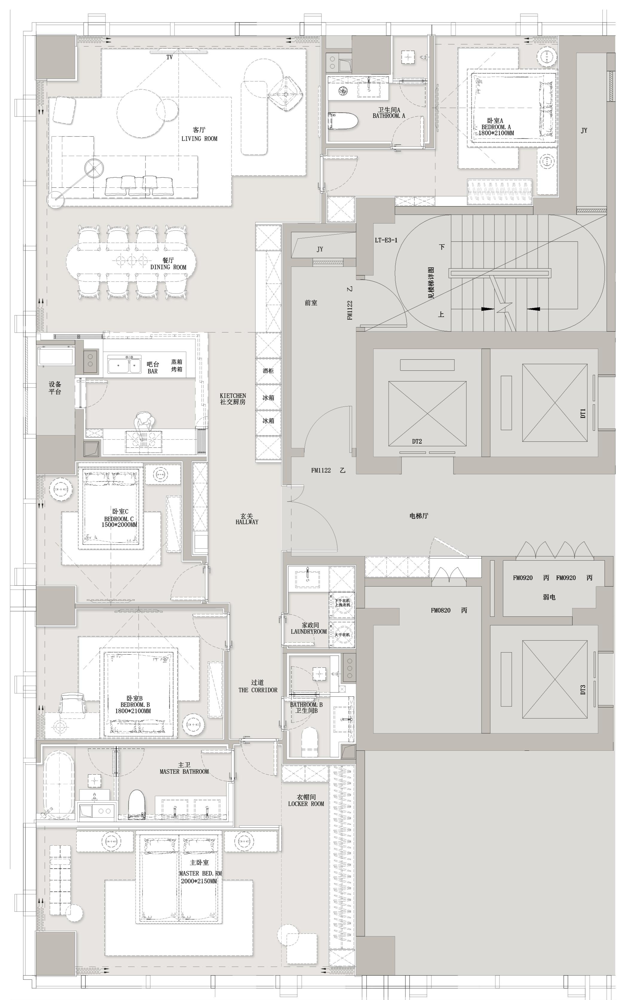
01268 户型|细节里的精致奢华
THE DETAILS CREATE EXQUISITE LUXURY
268 户型 一梯一户告别拥挤
材质基调:成熟沉稳
P. 10
P. 11
P. 12
P. 13
P. 14
P. 15
P. 16
P. 17
开敞式的厨房,社交岛台,所有的设定均以生活动线与习惯来模拟并加入丰富的创意量身订做,聪明的收纳与整合的巧思处处可见,如大面积的西橱柜,满足了中西厨基本功能,还可以根据个人的喜好增加其他功能。在这里独自品酌或与亲朋对饮,情思爽然,便是人间乐事。
P. 18
P. 19
P. 20
P. 21
P. 22
P. 23
P. 24
P. 25
屏风隔断出卧室内玄关,光线在墙面游走,蔓延至空间,具象地构筑起空间的温度。色调的深浅对比和空间体块的互相渗透丰富视觉层次。把自然作为生活的底色,这本身就是一种舒适与奢侈的平衡。
P. 26
P. 27
P. 28
P. 29
P. 30
02245 户型
年轻力的新潮流
THE NEW TIDE OF YOUTH
245 户型平面图
材质基调:活力新潮。以完整生活概念出发,匠心打造一梯一户的归家体验,双玄关的设计从细节和生活方式来重新梳理空间的功能和需求。
P. 33
P. 34
P. 35
P. 36
空间的流动,一方面得益于布局上的贯通,一方面仰仗于大面积采光的多向呼应。在核心的功能组件之外,整体浅色系的搭配,反向聚焦了客厅的动线焦点,亦让家的相处有了更多极具呼吸的通透,功能与精神皆可自由生长。
P. 37
P. 38
P. 39
P. 40
P. 41
P. 42
P. 43
P. 44
P. 45
P. 46
将主卧扩展成自成一体的主人空间,它包括了满足收纳需求的步入式衣帽间和独立卫浴。在时间的长河里,总有些耐得住的淬炼,流传为经典。时间沉淀后的内敛之美,与当下的艺术碰撞出新的火花。
P. 47
P. 48
P. 49
P. 50
INFO
项目名称:左岸中心
业主单位:苏州万科
项目位置:苏州工业园区苏惠路星汉街
设计范围:268 样板房 245 样板房
甲方团队:李森,蔡逸帆,陈家豪,高洁颖
主创设计:薛峰
设计团队:朱晓鸥,卢卓铭,董伟
软装设计:CCD·WOWU 无物艺术
完成时间:2022 年 11 月
摄影师:鲁哈哈
DESIGNER
DIA 丹健国际是由中德多位设计师合作成立的国际化设计团队,在深圳、上海、德国 Herford 均设有创作团队和顾问团队。DIA 主要从事高端酒店、办公、住宅、会所、商业空间等公共空间的室内设计,是华润、华侨城、融创、招商、融信等一线地产商长期战略合作伙伴,拥有如上海苏河湾、北京东直门 8 号、融创北京壹号院、深圳华侨城新天鹅堡、深圳前海双子湾等一系列重量级作品。DIA 自成立起一直坚持自我、坚守品质,并以其良好的信誉和稳健的作风赢得了业内一致赞誉。
客服
消息
收藏
下载
最近



















































