查看完整案例

收藏

下载
我从不相信这个世界只有一个世界存在。
——王澍
△项目视频
建筑是一个白盒子,屹立在田野间,与周边的江南民居形成强烈的对比,特立独行。
初见业主,朴素且睿智,对建筑、园林、古董都有深入研究,颇有心得。作为深耕苏州的设计师,绕不开“园林”,希望把苏州园林的建造设计手法应用到室内平面布局中,设计提案一出来,与业主想要的不谋而合。
“疏密得宜”、“曲折尽致”、“眼前有景”,童寯先生关于园林设计的三点总结,对项目的设计启发巨大。不讨论“具体的传统”或“内在的精神”,也不逐流选择和比较风格,只寻找“什么样的生活更值得过”的答案。
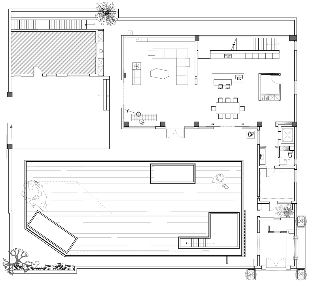
一层平面
一层有休闲、会客、品茗、鉴赏等功能,类似雅集,多处将原建筑中的板片变成体块,空间被改造得更有建筑感和多重游走的趣味性。
居游之心
在动线设计上,以创造“游园”体验为底层逻辑,在拆除新建上,跟“悬挑”、“架空”、“穿插”、“片墙”、“体块”等西方建筑的改造手法接近。在空间情绪上,贯彻“少即是多”的理念,“眼前有景”的概念跃然眼前。
原建筑梁位较低,如果下降会加剧压迫感,为了解放天花,改将空调置于背景内,在一层半高处侧面回风。沙发背后的装饰面美观又实用,打开就是收纳柜,临窗部分运用叠级处理和竖形灯线加以修饰。家具与手工定制家具搭配运用,是审美品味点到为止的特写。
原始是一个整墙,忽开一隙,仅尺许,却将无限的风景和亲密的互动灌入其中,让平仄或狭蹙的空间变得灵动和鲜活,赋予如山水画卷般的空间多空间、多变化、多视点的特点。
中国山水画中常以退为进,用“藏”显“无穷”。主色调与自然中山石水树调和,优雅宁静,再邀光影入室,淡烟流水画屏幽也好,天光云影共徘徊也罢,试图“收天下之景”,让人体会空间的安静与日常的流动。
空间和自然之间没有十分明显的界限,墙面、立面、地面、甚至是在其中的我们,都是时间的画布。
光影对设计的影响很大,空间大小比例开合的变化影响了身体感知。
藏景入画
平衡美学场景与实际功能,打造明晰简约的餐厨空间,构思梁脊与对应功能区的关系,中式鼓凳与进口家具搭配运用,呈现多样化情境。
空间是流动而不拘的,可以在空间中感知到一种氛围,在步移景异的乐趣中定格电影级别的静默叙事。
原始梁做了艺术漆处理,地面选用柔光砖,西厨隐形门后是储藏间,墙面的黑色让空间更深邃地展开在眼前。运用材质的特殊质感,以及壁灯和层板、梁、天际线灯的横竖关系,达成一种微妙的和谐。
宛若画意
运用含蓄隐晦的手法表达艺术内核,和芭蕉一起等一场雨,滋润我们的精神。
恰到好处的镂空借自然而作,将光邀进室内,随着时间的变化,光的角度也随之变化,用空间记录时间,以互动打动人心。
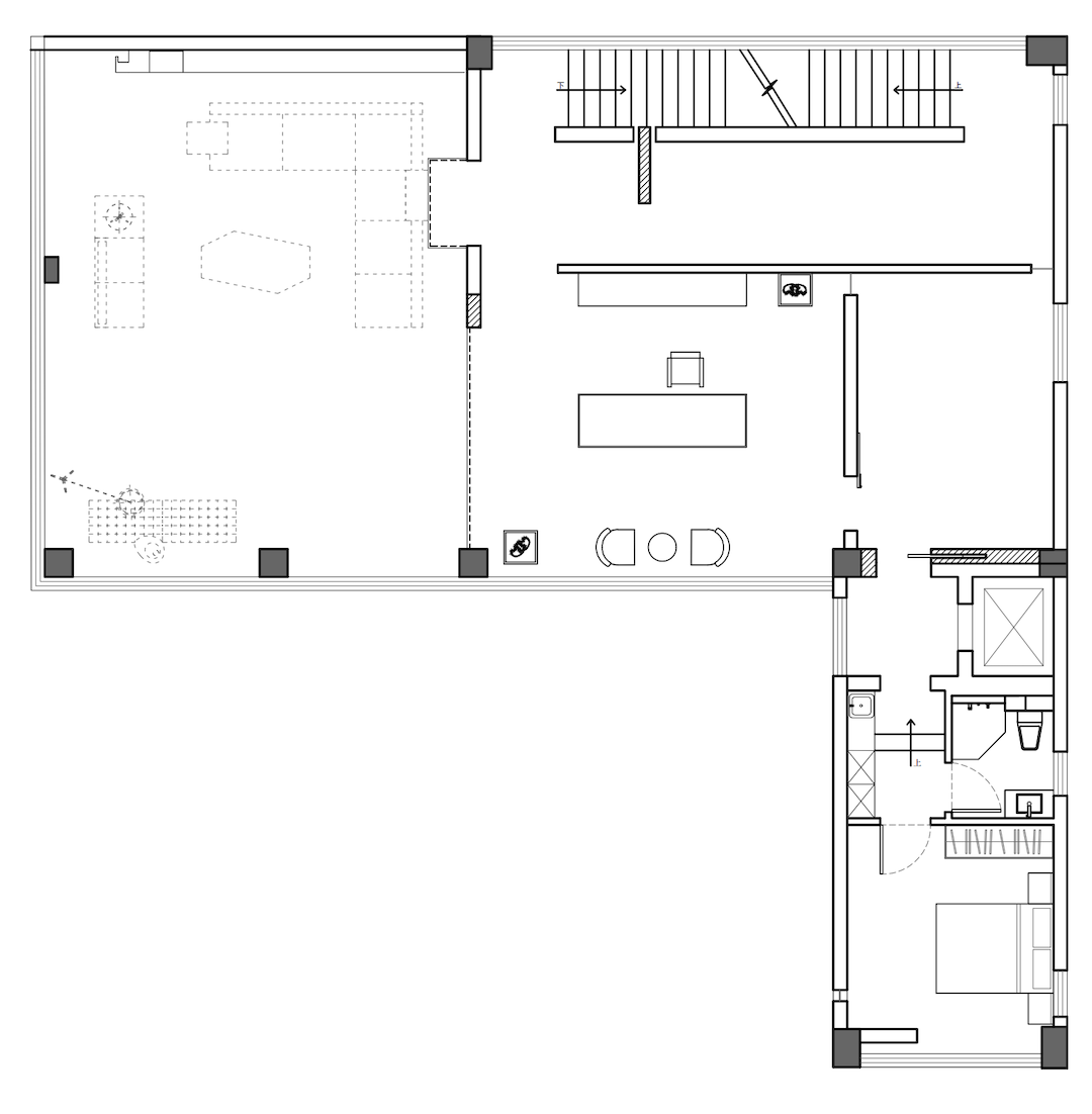
△二层平面
二层是书房区、棋牌室、客房。楼梯上来原是一堵实墙,相对压抑。经过“切洞”加“挑空”后,视觉被延伸,赋予二层和一层更多互动。
时空循环
借游园之名制造出各种“时空的循环”。在体块、片墙、杆件上落笔,将“聚则通阔,散则萦回”作为逻辑起点。人在空间内悠游,时间亦在围绕人流转,使空间变得更富有弹性,更让本质化的实体变得轻盈。
木饰面和定制层板,抒叙了二层书房的简洁。跳出既定的设定,运用片墙穿插的手法,墙不到顶,形成独立的片墙状态,紧密处不觉拥挤,开敞处并非一览无余,疏密有度,张弛得宜。
写意回廊
这条艺术回廊是空间的点睛之笔,把原墙切开穿插一面新墙,形成了“将隐未隐、一览未尽”的空间,让人在行径中通过身体感知空间的紧凑-宽敞-紧凑-宽敞变化,趣味倍增。
展台、挂画、古董以及绽放的浪漫樱花隔空呼应,展开“旧与新,古与今”的对话。
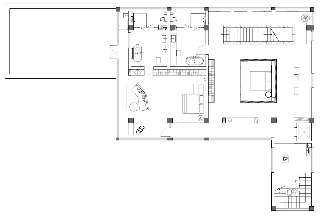
三层平面
三层包含主卧、主卫、大露台、多功能房、公卫。楼梯上来做了到顶的书架,多功能房的多种变化会给空间带来多种游走形态。增建一面墙,充分展陈艺术收藏与挂画珍品。
弦外之音
依照维度变化纳入藏书结构,借由透景手法修改了空间的属性,光会从书籍的间隙中穿过,投射到墙上,书的位置变动墙上的光影随之变动,随机流转,定格如画。阳光走廊和精致端景,将自然形态与人文寓意收纳到室内,彰示弦外之音与景外之情。
陶然其间
“拢袖绘纸扇,泼墨描远色”,空间运用简化提炼的手法,利用盒子的组合概念重新定义空间,不居住的时候就是纯粹的展陈空间,有人居住的时候就是独立的空间。隔断有如纸扇,开合各是一番景致。
三层红色片墙与墨绿色绘画的选择搭配,让整体偏平淡的空间有了一些律动的变换。
时空折叠
通过形式语言的创新,让游园体验精彩纷呈。楼梯空间从不同平台、不同位置看的感受截然不同,整个楼梯像一件雕塑,也像园林中的一座假山。用心展现新境,呼应审美品味,满足居游之心。
静动随心
主卧空间,通过隐藏门保持视觉性的统一,提升空间利用率与探索真趣,卫生间被“藏”了起来。
可移动格栅,可随心所欲地遮挡周边环境,实现安睡无碍、静动随心的起居体验。
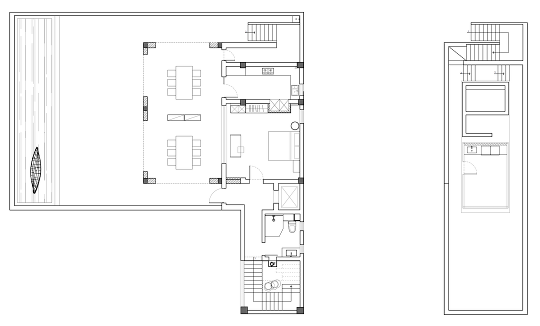
四层平面
四层有客房和外卫,通过框架结构、十字结构现浇面与玻璃顶营造户外餐厅,突显一种理想的生活方式与内在节奏。通过楼梯,可抵达洗晒区和汤池区。
院子情结
曾经我们每家都有一个院子,这个家里最有人情味的地方装着我们的童年。后来在长大的过程中,不知不觉地遗失了,院子成了心中的惦念。这个院子很美,满足了主人的院子情结。留有三个平台形成视觉对视,并在水中增设下沉楼梯,营造了比平视更强的层次感。
“什么样的生活更值得过”,这没有标准答案,正如托尔斯泰所说“选择你所喜欢的,爱你所选择的”。过自己喜欢的生活,就是最好的生活。
项目名称|极简别墅
项目地点|中国 苏州
项目面积|830㎡
设计公司|bk蓝骑士设计
设计主创|董一择
设计助理|施凯文 肖旭升 于天野
文案策划|修合文化
项目摄影|徐义稳
部分品牌|Poliform、Rochebobois、Zieta、Vitra、Glas、美罗堡全屋定制、德意美家进口馆、简品瓷砖、优度元素软装、San Marco圣马可艺术漆
董一择
bk蓝骑士设计成立于2013年,公司坐落于苏州工业园区李公堤。公司专注于别墅大宅设计,提供系统化设计、施工管理、落地配套等整体服务内容。客户从苏州覆盖至全国,往期项目包括九龙仓国宾壹号、绿城御园、绿城桃花源、湖滨四季、铜雀台、海和院、上海文华等。
突破传统设计单一形态,采用“主动式建筑”与“系统化设计”双发力,秉持“家居环境、空间才是设计本质”的理念,为项目落地,为客户打造“安全家、健康家、舒适家、节能家、智能家”般的终极住宅。
客服
消息
收藏
下载
最近





















































































