查看完整案例

收藏

下载
大米和小米教育中心希望我们为其北京新址打造一个全新的旗舰教育分店室内设计,该教育中心致力于提供自闭症儿童教育相关服务。该空间内含前台区域,家长等候区域,员工办公区,咨询室,培训室及不同功能的课室。
Dami & Xiaomi Education center approached us with the mission of creating a new flagship center in the city of Beijing. The school focuses on children with Autistic Spectrum Disorder (ASD). The program should contain a reception area, a waiting area for parents, offices for staffs and advisors, a training room and all different classrooms.
▼前台区和公共空间,reception and public area
该近乎正方形的平面促使我们聚集起所有功能及使用者,设计概念围绕着空间中的木区域展开。我们希望提供一个独特且实用的木质中心,可联动横向及竖向流线,它多个视角的可视性也加强了孩童游玩时的安全性及趣味性。为了给自闭症儿童提供安全舒适的学习环境,我们尽可能地去关注到每一个细节,如在动态教室区域,我们通过填充利用空间或磨圆边角,尽可能地让空间内没有硬体边角的出现等,避免孩子们意外碰撞时有可能产生的风险。
▼木质中心轴测图,the wooden core
The rectangular-shaped (almost square) floorplan direct us to grouped functions and keep control of each type of visitors in the school. The main concept rotates around a striped-wood main core area. We aim to provide a unique yet functional wooden core serving all the horizontal and vertical circulations and offering diagonal views for children to play safely.
▼空间内避免了硬体边角的出现,the interior avoids hard edges for children to play safely
▼木质中心联动了横向及竖向流线,the wooden core serves for all the horizontal and vertical circulations
考虑到干预教育模式跟常规学校里的教育模式不同,我们在课室的设计稍有别于常规的课室,比如有软硬两种地面材料。自闭症干预某个课程内会有老师通过跟学生互动“玩”玩具的形式进行教学,这个时候学生可以在柔软区域以更舒适的方式坐下来跟老师进行互动。中心木区域外的其他空间以简洁为主,意在突出中心的木质区域,物料及用色都经过悉心选择以营造出最适合孩子们的的环境。
All the rest of the education center remains simple white spaces giving all the attention to the central wooden space. Materiality and colors had been carefully selected to offer the most optimal conditions for these children to thrive.
▼开放式空间,open-plan space
▼教学空间,classroom
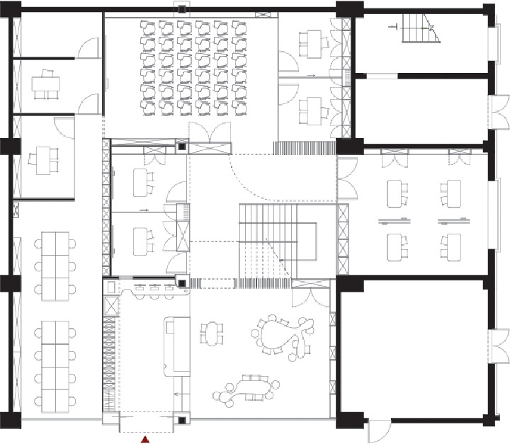
▼首层平面图,plan level 1
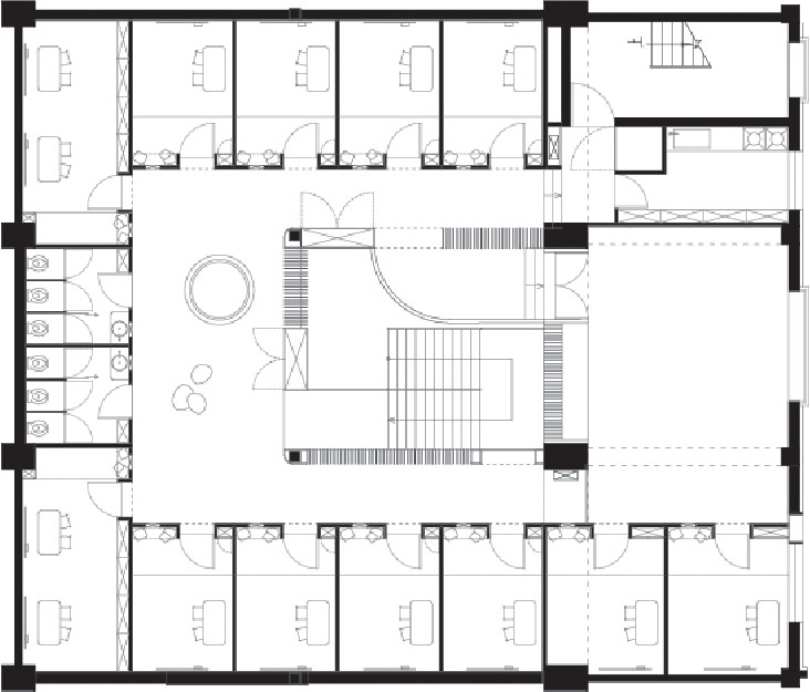
▼二层平面图,plan level 2
▼立面图,elevation
▼剖面图,section
客服
消息
收藏
下载
最近























