知末
知末
创作上传
VIP
收藏下载
登录 | 注册有礼
知末案例   /   家装空间   /   平层

130㎡三口之家传统雅致舒适大宅丨Nadezhda Gordeeva

2023/05/16 09:32:00
查看完整案例
微信扫一扫
收藏
下载
130㎡三口之家传统雅致舒适大宅丨Nadezhda Gordeeva-0
舒适大宅
Nadezhda Gordeeva
130㎡三口之家传统雅致舒适大宅丨Nadezhda Gordeeva-3
130㎡三口之家传统雅致舒适大宅丨Nadezhda Gordeeva-4
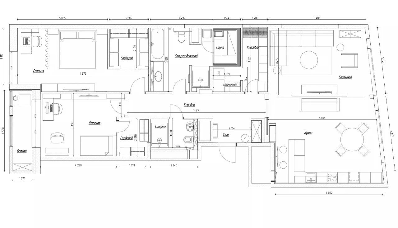
空间布局
130㎡三口之家传统雅致舒适大宅丨Nadezhda Gordeeva-6
厨房客厅和卧室沿着大窗户位于公寓的两端,这样的规划决定也使区分私人区和公共区成为可能。之间配备了浴室,桑拿房,两个更衣室。如果需要,厨房可以分为两个独立的房间使用玻璃和金属滑动分区。
130㎡三口之家传统雅致舒适大宅丨Nadezhda Gordeeva-8
130㎡三口之家传统雅致舒适大宅丨Nadezhda Gordeeva-9
130㎡三口之家传统雅致舒适大宅丨Nadezhda Gordeeva-10
130㎡三口之家传统雅致舒适大宅丨Nadezhda Gordeeva-11
该项目的主要任务是创造一个成熟的,
有意识的内
部,没有冲突
同时,保护和强调天花板的高度
在走廊的地板上,使用了四种不同颜色的天然大理石。
同样在项目中,厨房外墙的木材,玻璃,金属,混凝土等材料。
130㎡三口之家传统雅致舒适大宅丨Nadezhda Gordeeva-18
130㎡三口之家传统雅致舒适大宅丨Nadezhda Gordeeva-19
130㎡三口之家传统雅致舒适大宅丨Nadezhda Gordeeva-20
130㎡三口之家传统雅致舒适大宅丨Nadezhda Gordeeva-21
130㎡三口之家传统雅致舒适大宅丨Nadezhda Gordeeva-22
130㎡三口之家传统雅致舒适大宅丨Nadezhda Gordeeva-23
130㎡三口之家传统雅致舒适大宅丨Nadezhda Gordeeva-24
130㎡三口之家传统雅致舒适大宅丨Nadezhda Gordeeva-25
130㎡三口之家传统雅致舒适大宅丨Nadezhda Gordeeva-26
130㎡三口之家传统雅致舒适大宅丨Nadezhda Gordeeva-27
130㎡三口之家传统雅致舒适大宅丨Nadezhda Gordeeva-28
130㎡三口之家传统雅致舒适大宅丨Nadezhda Gordeeva-29
130㎡三口之家传统雅致舒适大宅丨Nadezhda Gordeeva-30
130㎡三口之家传统雅致舒适大宅丨Nadezhda Gordeeva-31
130㎡三口之家传统雅致舒适大宅丨Nadezhda Gordeeva-32
130㎡三口之家传统雅致舒适大宅丨Nadezhda Gordeeva-33
南京喵熊网络科技有限公司 苏ICP备18050492号-4知末 © 2018—2020 . All photos and trademark graphics are copyrighted by their owners.增值电信业务经营许可证(ICP)苏B2-20201444苏公网安备 32011302321234号
客服
消息
收藏
下载
最近