查看完整案例

收藏

下载
项目综述|Summary
基于在预算内建造一栋可持续性住宅的愿望,建筑师决定在这块大约600平方米的场地上建造一栋供两户家庭使用的半独立式住宅,面积为125平方米,配备两个车库。住宅内部通向客厅和露台的台阶显露出场地的山坡地形。建筑师的目标是创造一种生态建筑,避免建筑陷入低性能与人工化的状态。为了实现这一目标,建筑师对几代人演化而来的住宅类型进行研究。立面的设计以当地传统建筑的基调为基础。
Based on the budget and the desire to create sustainable housing, the decision was made to build a semi-detached house of two entities of 125 square meters and two carports, on an area of around 600 square meters. In the interior space, the hillside becomes noticeable in steps towards the living room and the terrace. The goal was to create an ecological architecture that does not fall into sterility and artificialty. As a model for this purpose the architects studied housing typologies that have been developed over generations. The facade design is based on the atmospheric qualities of these traditional structures.
▼山地环境中的住宅外观,exterior view of the house in a hill landscape ©Adolf Bereuter
项目介绍|General project description
在家庭住宅开始繁荣之前,家庭中的几代人都居住在同一屋檐下。由于建造成本和房地产价格攀升,社会关系愈发紧密,这是控制城市扩张和消除社会孤立的大好机会和具有积极意义的进程。对私人建造商而言,半独立式住宅是一种既经济又资源高效的解决方案,能够解决家庭共同居住的问题,适用于建造紧凑型房屋,同时尊重当地条件与个体私密性。这栋住宅是一对年轻夫妇承担着一定的风险为可持续性发展做出贡献的优秀范例,它在最高生态标准指导下设计充满吸引力的空间。
Before the Boom of the family house started, generations have naturally lived under one roof. Now the society moves closer together due to climbing construction and real estate prices. This is an opportunity and a positive process against urban sprawl and to counteract the social isolation. For private builders, the semi-detached house is a financially and resource-efficient solution for living together under one roof, for compact housing, with due respect for the demands of individual privacy and local conditions. The house is an outstanding example of a young couple taking some risk to contribute to a sustainable development, attractive spatial planning on the highest ecological standards.
▼住宅在最高生态标准指导下设计充满吸引力的空间,house with attractive spatial planning on the highest ecological standards ©Adolf Bereuter
在这个半独立式住宅项目中,年轻的建筑师团队既是整个建筑的建造者也是另一半项目的卖家。基于在预算下建造一栋可持续性住宅的愿望,建筑师决定在这块大约600平方米的场地上建造一栋供两户家庭使用的半独立式住宅,面积为125平方米,配备两个车库。在有限的资源和场地限制下建造一栋美丽的住宅,要求建筑师对项目从整体到家具尺度的设计都进行精心的规划。建筑师的目标是塑造一个生态建筑,避免建筑陷入低性能与人工化的状态。为了实现这一目标,建筑师对几代人演化而来的住宅类型进行研究。立面的设计以当地传统建筑的基调为基础。半独立式住宅的每一部分都具有自己的特征,巧妙地适应了自然地形,既满怀尊重又独具个性地融入周边环境之中,体量与屋顶形态在区域多样的建筑与屋顶景观之间寻求平衡。
In this semi-detached house, the young architects are both builders of the entire buidling and sellers of one half. Based on the budget and the desire to create sustainable housing, the decision was made to build a semi-detached house of two entities of 125 square meters and two carports, on an area of around 600 square meters.The challenge to create something beautiful with little resources and with the restriction of the constrution site required a carefully planned house up to the furnishings. The aim of the architect couple was to crete an ecological architecture that does not fall into sterility and artificiality. As a model for this purpose the architects studied housing typologies that have been developed over generations. The facade design is based on the atmospheric qualities of these traditional structures. Each half of the semi-detached house receives its individual fingerprint. The semi-detached house, has been carefully adapted to the natural terrain, it fits both respectfully and confidently into the surroundings.The volume and the roof shape transists between the heterogeneous buildings and rooflandscape in the area.
▼体量与屋顶形态在区域多样的建筑与屋顶景观之间寻求平衡,the semi-detached house, has been carefully adapted to the natural terrain, it fits both respectfully and confidently into the surroundings ©Adolf Bereuter
▼建筑立面的设计以传统结构的基调为基础,the facade design is based on the atmospheric qualities of these traditional structures ©Adolf Bereuter
建筑师没有进行大规模的土方施工,而是巧妙的利用了山坡地形。建筑内部通向客厅和露台的台阶显露出场地的山坡地形。无论是在精确到厘米的空间利用方式中还是在材料和细节的应用上,人们都能够感受到住宅的敏感性。最重要的一点是住宅使用的当地木材和表面材质都由本区域内的企业进行加工处理,营造了和谐而统一的室内环境。经过深思熟虑的设计节省了成本、土地、占地面积和体量。紧凑的住宅充满亲密感,同时房间又显得宽敞。这是通过巧妙地将地形融入建筑和空间序列设计细节之中(比如视觉轴线)来实现的。
The architects made skillfull use of the hillside without great earth movement. In the interior space, the hillside becomes noticeable in steps towards the living room and the terrace. The sensitivity of the house can be experienced both in the centimeter-accurate utilization of the floor area as well as in the execution of the materialization and the details. Above all, however, the origin of the local woods and the surface treatments have been harminized between the, exclusively regional, entrepreneurs, which makes the interior harmonious and unified.This very well thought trough planning saved on the essential costs, the property, the floor space and the volume. The compact building creates intimacy. At the same time the rooms appear generous. This is achieved by skilfully incorporating the topography into the building and spatial sequences designed down to the last detail, such as visual axes.
▼通向客厅和露台的台阶显露出场地的山坡地形,the hillside becomes noticeable in steps towards the living room and the terrace ©Adolf Bereuter
▼使用当地木材的客厅空间,living room constructed with local wood ©Adolf Bereuter
简洁木框架结构良好的隔热性能、半独立式住宅紧凑的体量布局和三层楼都采用最低层高的设计,让住宅具有出色的能源性能。低耗能住宅采用地热泵供暖,出于成本原因内部没有使用人工通风系统,而是在楼梯最高处建造了一个可操控的天窗,为室内提供新鲜空气和夜间降温。
Despite its simple timber frame structure insulated with cellulose the compact volume of the semi-detached house typology as well as the three floors at minimum room height cause the house an excellent energy balance. The low-energy house is heated by a geothermal heat pump. An artificial ventilation was omitted for cost reasons. Instead, there is a fully programmable skylight at the highest point of the staircase providing fresh air and night cooling.
▼楼梯最高处可操控的天窗,为室内提供新鲜空气和夜间降温,there is a fully programmable skylight at the highest point of the staircase providing fresh air and night cooling ©Adolf Bereuter
▼阁楼,loft ©Adolf Bereuter
▼卧室,bedroom ©Adolf Bereuter
▼洗手间,bathroom ©Adolf Bereuter
▼场地平面图,site plan
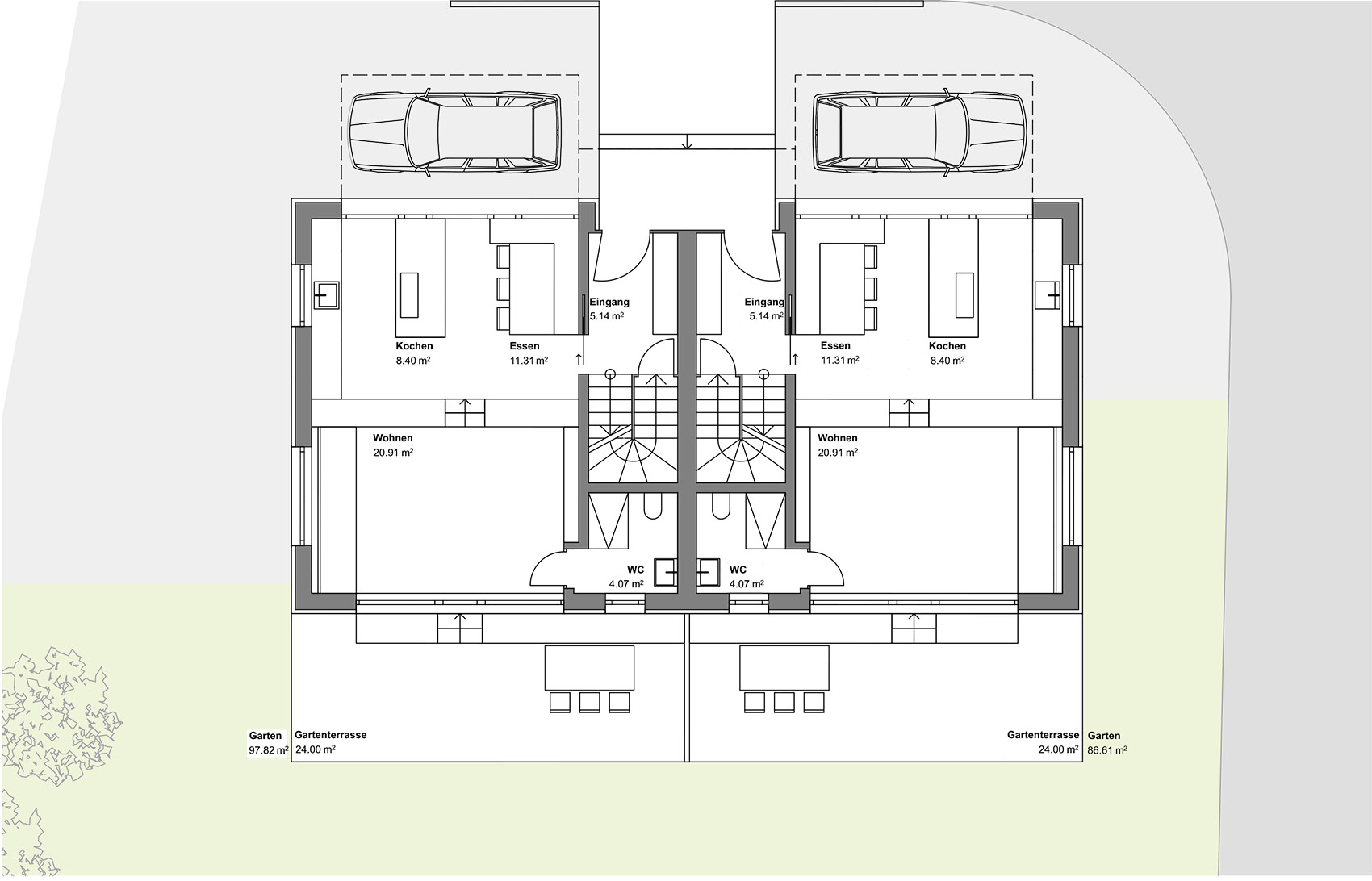
▼首层平面,ground floor plan
▼二层平面,first floor plan
▼三层平面,second floor plan
▼正立面,front elevation
▼后立面,back elevation
▼侧立面,side elevation
▼剖面,section
客服
消息
收藏
下载
最近






















