查看完整案例

收藏

下载
蓝城·就岭南,坐落于广东佛山乐平大旗头古村,是首批国家级历史文化名村,有着“广东第一村”美誉。
作为首入粤港澳大湾区之作,蓝城集团携手戴昆及大朴设计,紧守根脉,开创未来,复苏岭南气韵的百年风华,共同打造一个“比乡村更文明,比城市更温暖”的山水田园理想国——坚守初心,致力深耕「中式田园颐养小镇」。
△接待区
梦想很简单, 在城市中创造一个理想国, 它将还原一幅充满诗意的生活画卷。
蓝城·就岭南生活体验馆,一处连接过去历史、现代文化与未来时空的精神文化场所。
整体空间设计遵循历史文脉的大道至简,契合岭南人的低调内敛与沉稳性情的人文属性,融合现代空间的极简精神,同时通过精致的空间细部美学呈现,彰显古典岁月文化,引领未来生活空间美学。
以“镬耳高墙”为空间骨架,以“山水画卷”重现岭南的诗意之美,以“民俗文化”为一个时代的独特记忆与印记呈现,以“时空穿梭”为体验馆空间注入直透人心的灵动生命力。
无镬耳,不岭南。
蓝城造,就岭南。
体验馆接待区的屋顶轮廓,为广府具有代表性的清代村落镬耳屋,勾勒出层级递进的纵深感,与大旗头古村的建筑群互相呼应,延续了历史建筑之美,再现岭南风骨。
展示区
墙面的充满历史感的镬耳屋图纹篆刻与抽象化的镬耳图形铜合金门把手,白色水纹粼粼肌理勾勒出充满艺术气韵的接待台,透过雕刻着简约中式花纹的深色木门阵列,像素化格子的深山丛林艺术挂画等,设计的巧妙在于一语双关,既娓娓诠释了岭南那段旧时独有的东方韵味,又向人们演绎了现代文化与新时代审美的美妙交融。
超大面积的落地天青色的艺术玻璃延伸开来,隐约呈现了岭南独有的水元素,放眼望去,与传统典型的红色镬耳高墙形成了现代大气之境与古代历史浓墨的强烈碰撞,营造了新旧交融的仪式感,停留于此,细细回味,低头沉思恍若时光静止;
抬头仰望天空,恍若日月穿梭,穿越未来。
步入水院,一座来自Anish Kapoor安尼施·卡普尔的不锈钢艺术装置雕塑静静伫立,奇特的金属反射质感,流动的秩序之美,在波光粼粼的水面上倒映出浑然天成的岭南水乡意境,以现代艺术手法呈现古代岭南独特的地域文化,形成视线聚合,交集而成的剧场感与未来感,令人赞叹不已。
水院
以苏州拙政园为灵感,从江南园林借景,融合着东方传统对称的庭院规划与岭南建筑延续的清式建筑之“镜像”布局,内庭水院的江南景致与岭南建筑园林相互交融与演绎。
以传统文化为基底,以现代设计为方向,沿袭镬耳屋“三间两廊”的空间布局,构成东方诗意栖居的岭南合院,朱红与天青的色彩对比碰撞,强烈的视觉冲击贯穿于空间,构筑内心憧憬的那座城。
雕塑于此,恰如其分,移步换景,幻若仙境。
洽谈区
定制的极简米白色温润皮革沙发与木质底座形成碰撞,搭配素雅低饱和度的地毯,相得益彰,大气雅致。
洽谈区整体布局采用对称有序的陈设,中间展示的亚克力罩下的木雕手作老物件栩栩如生,材质与年代间碰撞开启了一场新旧对话,历史旧物与现代精致完美融合,设计师希望通过设计赋予旧艺新的时代内涵,焕发生机活力,提醒人们重新回望认识传统手工艺,不忘初心。
微透的玻璃,试图打破空间与空间之间的界限,颇有尺度地朦胧塑造出这一处静谧舒心的会客之境,淋漓尽致展现了东方含蓄之美,于光影照射下棉麻质感的家具陈设,于充满岭南元素的雕塑小物,设计通过解构重组岭南文化,取形沿意的画作,配之淡雅花艺点缀,如此清虚曼妙,向内感受古典文化之温和沉稳,向外仰望未来时代之新颖奇特,一旧一新,来回穿梭,让来者自觉向往。
氤氲小院茶香细。渐萦古篆疏帘里。
——清·吴茝 《菩萨蛮·茶烟》
茶室
安坐于茶席前,看茶水从杯盏中倾出,随即弥散着一阵清香四溢,一方茶室,云淡风轻,闲坐慢饮,茶之禅静,回归东方文化,更显空间幽深玄阔。
中式的淡雅清新,大理石材质的圆桌,简雅的线条,镬耳屋建筑群落的精致画作与镬耳象形的沙发靠背,那一抹檀红,深藏着古典的格调,于此回放着每一场的相聊甚欢,光影流转间,定格历史记忆,照鉴了千年风华。
传统与现代,过去与未来,于此得以表达与传递,新旧的交替,尝试、碰撞、共鸣、创新,彷佛在此上演一次次优雅的时空穿梭,时而安静闲适,时而多元惊艳,时而大胆奔放,梦回岭南,梦醒蓝城。
VIP室
蓝城·就岭南,
源于东方,融于时代,趋向未来。
大朴设计把自然精神、历史文化、地域文化与时代文化进行有效整合,用艺术的穿梭手法创造性地输出新的岭南文化氛围,使我们的岭南传统文化通过设计实现传承与发展。
我们在设计创作中,一面坚持“文化传承”思维,理性地审视,科学地分析,批判地继承,智慧地转化;一面提倡适度创新,跟上时代高速发展的步伐,融合新观念与新技术,于现代城市中洞见原始诗意生活的本义。
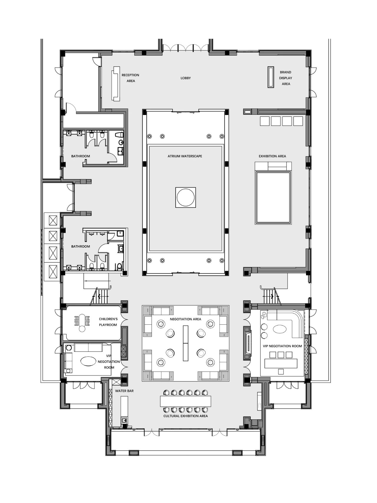
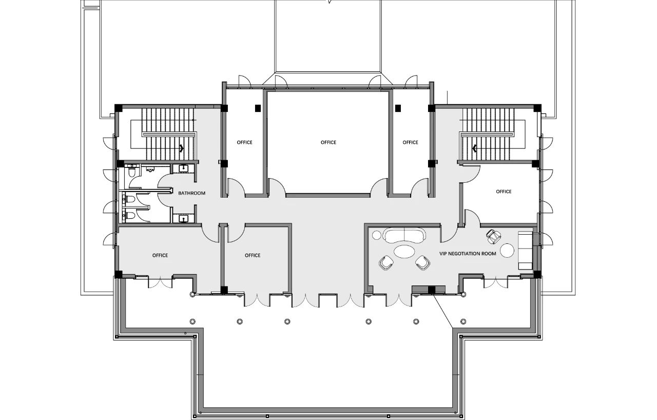
平 面 图
FLOOR PLAN
△一层平面图
△二层平面图
项目名称 | 蓝城·就岭南生活体验馆
甲方单位 | 蓝城集团
甲方团队 | 张昊 孟清泉 陈飞 窦萍
项目地点 | 中国,佛山
项目面积 | 1212平米
陈设设计 | 广州大朴艺术设计有限公司
陈设执行 | 广州大朴艺术设计有限公司
室内设计 | 北京居其美业室内设计有限公司
项目摄影 | 蔡启伦
戴昆/Dai Kun
建筑师、室内设计师 | 创基金理事 / 北京居其室内创始人
近年来工作的主要方向集中于住宅室内设计领域,倡导实用、美观、经济的设计理念,在各地设计了大量住宅作品,引领和推动了城市居住生活方式变化的潮流。同时致力于色彩流行趋势和相关产品设计的研究,在完成学术专著的同时也持续推动室内设计色彩运用的专业普及工作。
经过十余年的发展,居其室内每年完成的项目遍及中国主要大中城市,长期合作业主包括:绿城、中海、蓝城、葛洲坝、蓝光、万科、保利、碧桂园、恒大、华润、金地、远洋、融创、旭辉、鲁能、万达、龙湖、招商、懋源、润泽等知名大型房企。同时还服务中国顶级私宅与会所业主。
客服
消息
收藏
下载
最近




























































