查看完整案例

收藏

下载
"——场所服从于个人还是其它物体?"
"——都不是;人们必须探索一种对等物之间的对话,以便生产一个崭新的坚实整体。"
——RCR Arquitectes 关于一些基本建筑问题的自问自答
—— place: subject oneself or subject it?”
—— neither; one has to seek a dialogue between equals in order to produce a new solid unity.”
——Self-Q & A on some basic problems about architecture by RCR Arquitectes
▼博物馆内部概览,overview of the museum
江南造币博物馆及金基集团总部位于南京来凤街菱角市66号国家领军人才创业园(简称“国创园”)内。由一栋老厂房局部改造而成,包括一处对公众开放的小型博物馆——江南造币博物馆,以及金基集团的办公、接待和展示等空间。
由于金基集团是所在“国创园”园区的开发、运营机构,博物馆也以园区的历史、文化为展示内容。因此将项目置于整个园区的历史和空间脉络中进行思考,显得尤为必要。
Jiangnan Mintage Museum and the Headquarters of Kingjee Group is located in the National Leading Talents Pioneer Park, No. 66 Lingjiaoshi, Laifeng Street, Nanjing. It is partly renovated from an old factory building, including a small museum open to the public, the Jiangnan Mintage Museum, and the office, reception and exhibition areas of Kingjee Group.
As the group serves as the developer and operator of the Pioneer Park, and the museum takes the history and culture of the park as its display content, it becomes particularly essential to place the project into the historical and spatial context of the whole park.
▼总部办公区概览,interior view of the headquarters
园区历史脉络
项目所在的“国创园”园区,前身为南京第二机床厂厂区。该厂区的历史可追溯至1896年,两江总督刘坤一筹建的“江南铸造银元制钱总局”。辛亥革命后的1912年,该厂改名为“中华民国江南造币厂”。1930年隶属工商部,为全国度量衡局所辖“度量衡制造所”。1949年南京解放后,为地方国营“南京度量衡厂”。1955年公私合营组成“南京第一机械厂”。1959年更名为“南京第二机床厂”。
2012年,南京第二机床厂搬离,“国创园”启动建设。厂区目前的布局和建筑遗存均为解放后形成。设计团队通过对历史文献、地图的梳理、研究,厘清了厂区的发展过程和形态变迁。根据研究制作的模型成为江南造币博物馆的展示内容之一。
The National Leading Talents Pioneer Park was formerly Nanjing No.2 Machine Tool Factory, whose history can be traced back to 1896, when Liu Kunyi, the Viceroy of Liangjiang, established the “Jiangnan General Mint of Casting Silver”. In 1912, after the Chinese Bourgeois Democratic Revolution, the factory was renamed “Jiangnan Mint of Republic of China”, which was later subordinated to the Ministry of Industry and Commerce in 1930 and was transformed into the “Metrology Factory” under the jurisdiction of the National Metrology Bureau. After Nanjing was liberated in 1949, it became the local state-owned “Nanjing Metrology Factory”.
During the Public-Private Joint Venture, “Nanjing No. 1 Machinery Factory” was formed in 1955 and was renamed “Nanjing No.2 Machine Tool Factory” in 1959 until 2012, when the factory moved out and the project of National Leading Talents Pioneer Park was launched.
The present layout and relics of the factory area were all formed after the liberation. Through sorting out and researching the historical documents and maps, FANAF had clarified developing process and morphological changes of the factory area. Also, the models made according to their researches would be one of the exhibition contents of Jiangnan Mintage Museum.
▼厂区地界及项目位置,plot of factory and location of the project
“砖拱吊车梁”工业建筑结构的价值判断
Evaluation of the Industrial Building Structure “Brick Arch Crane Girders”
项目所在的“国创园”8号楼,原为建于上世纪60年代初的“铸造车间”。其主体部分东西长60米,南北进深23.8米。主体结构为在南北向排列的3道混合结构承重墙体上搁置2列钢木组合桁架(跨度12米),每列桁架共20榀。每道混合结构承重墙体下部为青砖砌筑的连续拱券(拱跨4米),在距地面4.7米以上转换为砖混结构柱,与下部拱间砖柱对应,柱顶由混凝土梁联系,桁架搁置于梁上。
3道承重墙体包含的3列连续砖砌拱券,东西向共21跨。这3列连续砖拱的存在,令厂房内部与外部给人的印象反差极大。从外部看,“铸造车间”可谓平淡无奇,水泥抹灰墙面上开方窗,朴素而略显单调;而内部,3列砖拱砌体在形式上具有强烈的韵律感,清水砖砌叠涩和拱券呈现出砌体结构特有的建构美感。
砖拱在外立面上的完全隐匿,表明其形式并非外观表现性的需要;而砖拱砌体与其上部结构的显著差异,也否定了这一砌体结构形式是出于承托屋面荷载的考量,由此可以推测它们与工业生产工艺流程中的特殊需求有关。
The No.8 Building in the park, which the project in located in, is a former casting workshop built in the early 1960s. The main body of the workshop has a length of 60 meters and a depth of 23.8 meters. The main structure of the workshop is composed of 3 rows of load-bearing wall of mixed structure with 2 rows of 20 trusses laying on them. Each load-bearing wall has continuous brick arches in lower part, which convert to columns of mixed structure in upper part. The 3 rows of continuous brick arches included in 3 rows of load-bearing wall each has 21 arches.
The existence of these 3 rows of continuous brick arches have resulted in the sharp contrast between the interior and exterior impression of the factory building. From the outside, the casting factory appears to be plain and dull with pedestrian square windows on plastered walls. While inside, 3 rows of brick arches have been offering a strong sense of rhythm in form, and the corbeling structure and arch coupons built with exposed brickwork showing a tectonic aesthetics unique to masonry construction.
The north and south rows of the 3 brick arches are completely concealed from the facade, negating their expressive function of architectural forms. Whereas their significant difference from the upper walls indicates that the form of masonry structure is not considered for supporting the roof loads, either. So it can be inferred that they are related to the special needs in the industrial production process.
▼“铸造车间”主体结构示意,main structure of the casting workshop
经过查阅文献和访谈,设计团队确认,这些砖拱结构体是在上世纪50年代末至60年代初,因钢筋混凝土材料匮乏,而以连续砖拱吊车梁代替常规的混凝土结构吊车梁的工程措施。作为特殊时期的一种工业建筑结构做法,反映了当时的生产条件和社会面貌,而具有其历史价值。
Through documentary researches and interviews, FANAF confirmed that these brick arch structures were formed out of engineering measures of replacing conventional concrete structure crane girders with continuous brick arch ones, due to the lack of reinforced concrete materials in the late 1950s and early 1960s.
As a pattern of industrial building structure in the special period, it reflects the industrial and social conditions at that time and thus possesses its own historical value.
▼项目整体结构建造时期分析,structure constructed at different times
设计问题
Problems Encountered
金基集团总部占据了整个“铸造车间”东西向21跨砖拱中8跨所对应的区域,其西侧8跨、东侧5跨区域另有所属。在设计团队接手该项目之前,“铸造车间”已经经过一轮改造。既有改造的目标是将“铸造车间”改造为“美术馆”,并已经在原厂房内植入了由钢筋混凝土框架结构支撑的夹层楼板,将原厂房的大空间划分为上下两层。夹层标高与砖拱砌体顶部平齐,这样,除了通高的大厅以外,砖拱砌体只能在夹层以下的底层中可见。
现在,业主要求将原本作为“美术馆”的大空间改造为总部办公空间,包括用于办公、接待和展示的各种尺度的空间。因而,建筑设计所面临的主要问题,就成了:如何在既有的改造后的底层空间中,因使用要求的改变,重新限定出小尺度的空间,并使这种空间限定与保留的砖拱发生关联,从而同时使砖拱的建造的美感得以表现。
The project occupies the area corresponding to 8 of the 21 arches in a row. The other parts of the casting workshop belong to others.
The casting workshop had already undergone a transformation early before FANAF took over the project. The aim of the former renovation was to transform the industrial building into an art gallery. A sandwich floor supported by reinforced concrete frame structure had been implanted in the original factory building, dividing the large space into upper and lower floors. The elevation of the sandwich floor was equal to the top of the masonry structure of brick arch, so that the brick arch could only be seen from the lower floor below the sandwich floor as well as from the two-story high hall.
Whereas now the client requests that the large space originally used as the art gallery be transformed into the business area of its headquarters, including spaces of various scales for office, reception and display uses. As a result, the main problems encountered during architectural design should be: How to redefine the small-scale spaces in the existing renovated lower floor according to the change of use and requirements. And how to associate the space definition with the retained brick arch so that the elegance of the brick arch construction can be fully presented as well.
▼既有改造之后的结构示意及项目工作范围,structure after the former renovation, and working area of the project
概念
Design Concept
从厂房结构中提取出结构“单元体”进行尺度转换分析:
Take a structural unit from the structure of the workshop to make analysis of dimensional adaptation.
▼结构“单元体”,structural unit
类型一:置入“拱”形要素
在原有砖拱之间设置的“拱”形要素,通过“拱”形要素的变形、错位等形式来限定和划分空间,使原有砖拱在空间中被关联和延续。
Type 1: Arch Form Element
Imbedding arch form elements between the brick arches, defining and dividing spaces with transforming, shifting etc. of arch form elements, making brick arches related and continued.
▼空间转换类型一,spatial adaptation type 1
类型二:置入“内胆”
在既有空间中置入独立的盒体,盒体如同“内胆”,形成内部的小环境,具有良好的隔声等物理性能,配备独立的空调系统,在开放的办公空间中营造相对私密的功能空间。
Type 2: “Internal Envelope”
Setting “internal envelope” into the workshop, forming a small environment inside with good insulation performance and its own air-conditioning system, making a private functional space in an open working space.
▼空间转换类型二,spatial adaptation type 2
▼方案概念图示,conceptual diagram of project
方案
Project Plan
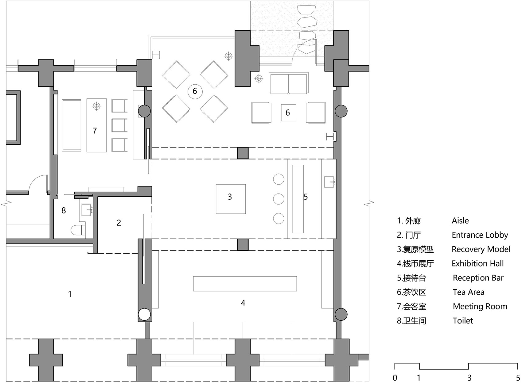
3道砖拱砌体把项目所在区域划分成南北两区。方案将一系列小空间设置在北区,其中盥洗室和VIP接待室将较为公共的博物馆和较为私密的高管办公区分隔开,并限定出与大厅之间的过渡空间。
博物馆被设置在北侧东端,朝北向园区公共空间开敞,并利用既有的出入口直接联系园区主要公共流线。博物馆内部设置的“拱”形要素将空间划分为三部分,分别对应了不同的展示和接待等内容。
Three rows of brick arches divide the project area into two: the north and the south. A series of small spaces is located in the north area in the project, among which washing room and VIP room is set between museum (more public) and Executive working area (more private) defining the buffer space connecting to the hall.
Museum is located in the east end of the north area facing the public space in the park, and is related to the main circulation of the park through an existing entrance. Interior arch form elements divide the museum into three parts each corresponding to exhibition, reception and other functions.
▼整体分为南北两区,北区东侧为博物馆区域,project is divided into two: the north and the south; museum is located in the east end of the north area
▼博物馆内部设置的“拱”形要素将空间划分为三部分,interior arch form elements divide the museum into three parts.
▼博物馆展示区域,exhibition area at the museum
高管办公区包括4个筒形拱顶限定出的办公室,和1个作为小会议室的盒体。盒体与吧台等服务设施形成高管办公与南侧开放式办公之间的共享区域。
Executive working area includes 4 offices defined each by one barrel vault, and one “internal envelope” as a small meeting room. The “internal envelope”, bar and other serving facilities forming the sharing space between the executive offices and the open working space.
▼北区西侧为高管办公区,通过盥洗室和VIP接待室与博物馆分隔开。executive working area at the west end of the north area. Washing room and VIP room is set between museum and executive working area.
南区大致延续了既有改造后的空间尺度。东侧保持了通高的门厅,包括通往夹层的垂直交通。西侧设置为开放式办公空间,办公桌的布局与砖拱对应。
The spatial dimension of the south area is roughly kept. The east end includes the existing hall and stairs to the upper level. The west end serves as an open working area where desks are arranged in relation to the brick arches.
▼整个南区为办公区域,包括通高门厅与开放办公区。
South area is used as offices, including a large hall and open working area.
关于流行手法的拱券——拱券作为一种设计手法在近些年建筑或室内项目中经常被使用到,已然成为了一种流行的手法。
我们排斥纯粹的流行手法,但是由于本项目场地中旧有拱券的存在,新植入的部分采用了拱券的形式,才更好地与旧有拱券形成一种完整而又清晰的关系,拱券在这里是一种合适的选择。
最终,项目既提供了符合业主使用需求的多种尺度、氛围和功能的高品质空间,又充分呈现出“砖拱吊车梁”工业结构的建构之美,使南京城市中一处具有特殊价值的工业遗产得以彰显。
Arch as a reinvigorated commonplace – Arch has been used so extensively in architectural and interior projects recently that it’s almost fallen from popular to commonplace. Though distancing the extraneous popular patterns, we were inspired by the time-honored arches within the site that only more and new arches could engender a complete while clear-cut relationship, and it proved appropriate.
In conclusion, the project provides high-quality spaces of various dimensions, atmosphere and functions, highly presents the tectonics of the “Brick Arch Crane Girders”, and manifests an industrial heritage with unique value in Nanjing.
▼拱券形成的临窗休息区域,leisure area in arch form
▼拱券设计手法充分呈现出“砖拱吊车梁”工业结构的建构之美,
arch as the design approach highly presents the tectonics of the “Brick Arch Crane Girders”
▼空间细节,space detail
▼剖透视,sectional perspective
▼平面图,plan
▼剖面,section
项目名称: 南京江南造币博物馆及金基集团总部办公
项目地点:南京国家领军人才创意产业园8号楼
室内面积: 520平方米
改造设计: 反几建筑
设计团队:万军杰 金鑫 章振东 张旭 李崇昊
项目运营:高璐 金鑫
设计周期: 2017年7月- 12月
施工周期: 2017年12月-2018年8月
历史资料:反几建筑,杨侃(南京大学建筑学博士)
模型锻造:南京峰尚雕塑艺术有限公司
铸造厂家:南京神匠环境艺术有限公司
软装配合: 反几建筑、南京金基集团董办、设计部
金属工艺指导:王克震
业主单位:南京金基集团
撰文:杨侃 万军杰
后期摄影: ingallery金啸文,赵奕龙
Project title: Jiangnan Mint Museum in Nanjing
Project site: No. 8 Building, Nanjing National Innovation Park of Leading Talents
Interior area: 520sqm
Renovation: FANAF Architects
Design team: Wan Junjie, Jin Xin,Zhang Zhendong,Zhang Xu,Li Chonghao
Project operation:Gao lu,Jin xin
Design cycle: Jun.-Dec.2017
Construction cycle: Dec. 2017- Aug. 2018
Historical research:FANAF Architects & Yang Kan (PhD in Architecture from Nanjing University )
Model blacksmithing:Nanjing Fengshang Sculptural Art Co., Ltd
Cast manufacturing:Nanjing Shenjiang Environmental Art Co., Ltd
Soft decoration: FANAF Architects, Board office & Design Department of Nanjing Golden Pedestal Corporation
Metalwork guidance:Wang Kezhen
Client:Nanjing Golden Pedestal Corporation
Author:Yang Kan Wan Junjie
Photography: ingallery Jin Xiaowen & Zhao Yilong
客服
消息
收藏
下载
最近
































