查看完整案例

收藏

下载
© 日野摄影工作室
我们从BA的品牌发展史出发:将BA与法式面包的相遇、融合、发展三个阶段,对应地标相连接。从法国到昆明再到重庆的轨迹,成为本次设计的线索。提出“山山而川 · 浪漫而来”的设计概念:以连绵的山川连接时空,以浪漫主义态度发酵品牌特质。
勉强设计事务所
BA是一家新法式面包为产品核心的连锁烘焙品牌。
▲项目概览
© 日野摄影工作室
本次项目位于重庆龙湖时代E馆,也是BA在山城的首家旗舰店。品牌选址重庆市中心商业街区,希望向更多新顾客提供美味的产品与高品质的消费体验。我们从BA的品牌发展史出发:将BA与法式面包的相遇、融合、发展三个阶段,对应地标相连接。从法国到昆明再到重庆的轨迹,成为本次设计的线索。提出“山山而川 · 浪漫而来”的设计概念:以连绵的山川连接时空,以浪漫主义态度发酵品牌特质。
▲店面
© 日野摄影工作室
▲商店内部
© 日野摄影工作室
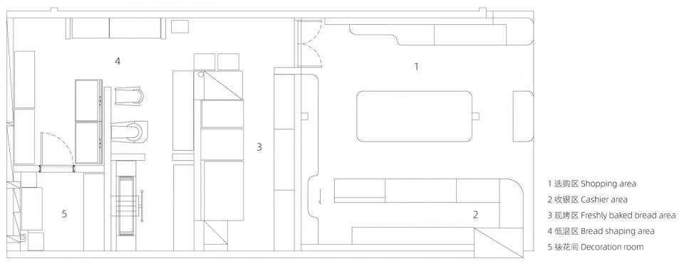
布局:空间整体为环形动线布局,满足本店每日高出货量。并为顾客提供完整的产品选择可能性,让面包与顾客的距离更近。
▲环形动线布局
© 日野摄影工作室
▲货柜细部
© 日野摄影工作室
造型:室内空间以交汇的穹顶造型为主体,构成一处具有仪式感的空间。店内墙面采用天然石材干挂铺装。让天然的素材与人为的造型设计相融合,把自然的原生魅力与热爱生命的浪漫主义态度融入空间。面包与山川的这次相遇,形成了饱满而又沉浸的五感空间。
▲交汇的穹顶造型
© 日野摄影工作室
细节:空间中的天然石材成为面包最好的烘托,配合灯光布置让产品更加立体醒目。品牌的视觉像音符一般跳跃于墙面之上,仿佛指挥着从后厨到前场这一场生生不息的面包之歌。
▲面包展示架
© 日野摄影工作室
▲天然石材成为面包最好的烘托
© 日野摄影工作室
如BA主理人所言“这是一场法式浪漫与中国山地文化的融合,演绎优雅不失野性的独特魅力”。
项目图纸
▲平面图
© 勉强设计事务所
项目名称:「BA」新法式烘焙 品牌空间设计
项目时间:2022.04—2022.06
项目地点:重庆市渝中区龙湖时代天街E馆1F
项目面积:110㎡
设计方:勉强设计事务所
项目设计:黎俊波 唐文琦 高兴 王慧
空间摄影:日野摄影工作室
客服
消息
收藏
下载
最近














