查看完整案例

收藏

下载
Cuckoo住宅位于越南岘港,是Tropical Space在2018年为一家四口(父母和两个孩子)设计的一座带有咖啡店的住宅。当地黏土砖作为住宅材料为使用者带来一种熟悉感,建筑的造型让人想起布谷鸟钟。
The Cuckoo House is a house for 4 people (parents and 2 kids) combining with a coffee shop located in Da Nang, Vietnam and designed by Tropical Space in 2018. The project is built by the local clay brick which brings a familiar feeling to the user and has the architectural shape reminding about the Cuckoo Clock.
▼住宅外观,exterior view of the house
▼建筑造型让人想起布谷鸟钟,the architectural shape reminds about the Cuckoo Clock
▼住宅采用当地黏土砖,塑造一种熟悉感,the project is built by the local clay brick which brings a familiar feeling to the user
Cuckoo住宅上部通过缓冲区域相连的三个体块放置在另一个矩形体块底座上。矩形底座是一个带有花园的咖啡店,两者形成一个室内外相融合的空间。
▼体块与基座设计图解,diagram of the blocks and base
▼建筑形式为三个通过缓冲区域相连的体块放置于一个矩形体块底座上,three blocks which is connected by the buffer layers place on another rectangular block
The Cuckoo house includes three blocks which is connected by the buffer layers. These blocks place on another rectangular block which is function as a base. This base block is the coffee shop with the garden as outdoor area and the indoor space.
▼住宅底座为一个带有花园的咖啡店,the base block is the coffee shop with the garden
▼花园全景,garden panorama
▼连续的砖拱券形成独特的空间体验,a series of brick arches form a unique spatial experience
▼咖啡店一侧细长的户外空间,a slender outdoor space on one side of the cafe
▼咖啡店内部,interior of the coffee shop
▼室内店面与室外花园形成连通互动的空间,the interior shop and exterior garden are connected with each other
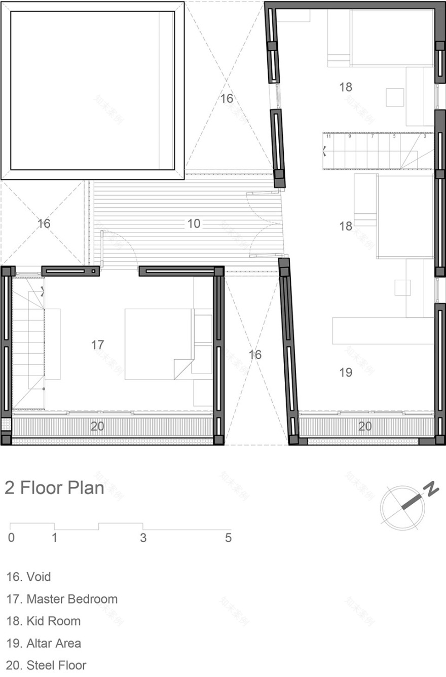
底座上方的三个体块是住宅的独立功能区域,通过局部遮盖的缓冲区域连接。体块A是两层的主卧空间,楼上是卧室,楼下是洗手间和步入式衣帽间。体块B也有两层,楼上是儿童房,楼下是起居室。体块C内部包括厨房和用餐空间。
▼住宅三个体块设计图解,diagram of the three blocks
Three blocks above are separated functional spaces of the house and linked by the buffer layers which is un-fully covered. Block A is the master bedroom including two floors. The upper floor is the bedroom and the other one is bathroom and walk-in closet Block B also has two floors. The upper floor is the kids’ bedroom and the bellow is the living room. Block C accommodates the kitchen and dining table.
▼入口平台到露台的通廊将二层空间串联起来,corridor from the entrance to the terrace connects all the rooms on the first floor
▼起居室,living room
▼三层卧室内镂空砖墙洒下斑驳光影,bedroom on the second floor and the hollowed brick wall dappled light and shadow on the floor
▼窗户及镂空砖墙细节,detail of the window and hollowed brick wall
习惯使然,人们的活动大多数时候都发生在住宅功能空间中。Tropical Space将限定空间的墙壁分隔开,形成吸引人们离开自己房间聚集在一起的缓冲过渡空间。这些缓冲区域可以灵活使用,将住宅室内外联系起来,让家庭活动既私密又开放。同时,这些区域还将柔和的微风引入住宅内部的各个角落,让室内在热带夏季时分也依旧格外凉爽。
▼建筑师将限定空间的墙壁分隔开,形成吸引人们离开自己房间聚集在一起的缓冲过渡空间,architects detach walls which are used to defined the place and offer the buffer space to urge people leave their rooms and join together
▼缓冲区域让家庭活动既私密又开放, buffer layers could make the family activities could be both private and open
Like a habit, most of people’ daily activities usually take place in functional spaces, Tropical Space detaches walls which are used to defined the place and offer the buffer space to urge people leave their rooms and join together. These buffer layers can be used flexibly, connecting the indoor and the outdoor of the house which could make the family activities could be both private and open, Meanwhile, it allows the breeze go through all corners of the house and make it chill in the tropical summer.
▼住宅夜景,house night scenes
▼住宅功能体块夜景,night view of the house function blocks
▼咖啡店夜景,night scene of the coffee shop
▼设计图解,diagram
▼首层平面,ground floor plan
▼二层平面,first floor plan
▼三层平面,second floor plan
▼屋顶平面,roof plan
▼东立面,east elevation
▼南立面,south elevation
▼1-1 剖面,1-1 section
▼2-2 剖面,2-2 section
客服
消息
收藏
下载
最近












































