查看完整案例

收藏

下载
我尝试所有方面的可能性,包括技术、形式、材料和功能等方面,但我最关心的仍是人的情感因素。—— 娜娜·第赛尔
久居城市的现代人,拥有着各自不同的人生轨迹,但对于“家”的向往都是相似的,在回归各自居住空间后,卸下疲惫、洗净铅华后才是最真实的自己。
不器空间设计通过对居住者内心世界的洞察,明确了内在精神追求,从色调、层次、明暗、尺度及材质等角度,去营造沉稳、静谧的空间记忆,予以居住者一种舒适、自由的居住体验。
01 OVERTURE OF HOME 家的序曲
源于对城市精英圈层的深层次理解,在这 400m²住宅的室内设计中,设计师把家庭成员之间的互动、以及社交、私密性作为设计重点。采用不同材质去构建生活公区、个人兴趣区、睡眠私区,各区域之间相对独立又完美融合,带来了未来生活方式的创新体验。
整个空间的材质选择遵循功能和搭配的和谐相处,充满质感的木饰面、天然肌理的微水泥,以及朴素的石材,形成时光静默的画面感,让人产生一种回归生活最初的纯粹。
P. 01
P. 02
P. 03
P. 04 徜徉在阳光中的客厅沙发区,方寸之内洒满了生活的诗意,清晨时饮咖阅读或午后三两好友的甜点闲叙,不经意间感受无限美好。
P. 05
P. 06
P. 07
借助功能布局、动线调整,将客厅、餐厅、水吧以及厨房等活动尺度最大化,紧邻水吧的长方形餐桌,与独立完善的厨房贯通,契合当下家庭生活与社交需求。各生活场景的自由开合,家庭成员独处或是聚合,视线内均能通透开阔,完美成就了家庭生活与社交欢聚的主场。
P. 08
P. 09
P. 10
P. 11
02PLEASANT
JOYFUL
惬意愉悦
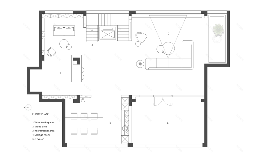
负一层是整个奢宅的第二会客厅,纳入影音区、品酒区、茗茶区、休闲区等多元化场景模式,延展出生活中的更多可能性,创造惬意、愉悦的感官氛围和兴趣体验。
P. 12
P. 13
P. 14
设计上不去框定个人兴趣区域,可家庭互动、休闲娱乐,或兴趣收藏,亦或是个人独处,留出一处纯粹自我的心灵天地,背靠沙发感受阳光,让目光聚焦于独我的世界。
P. 15
P. 16
P. 17
P. 18
03DRAW
DAILY
LIFE
绘写日常
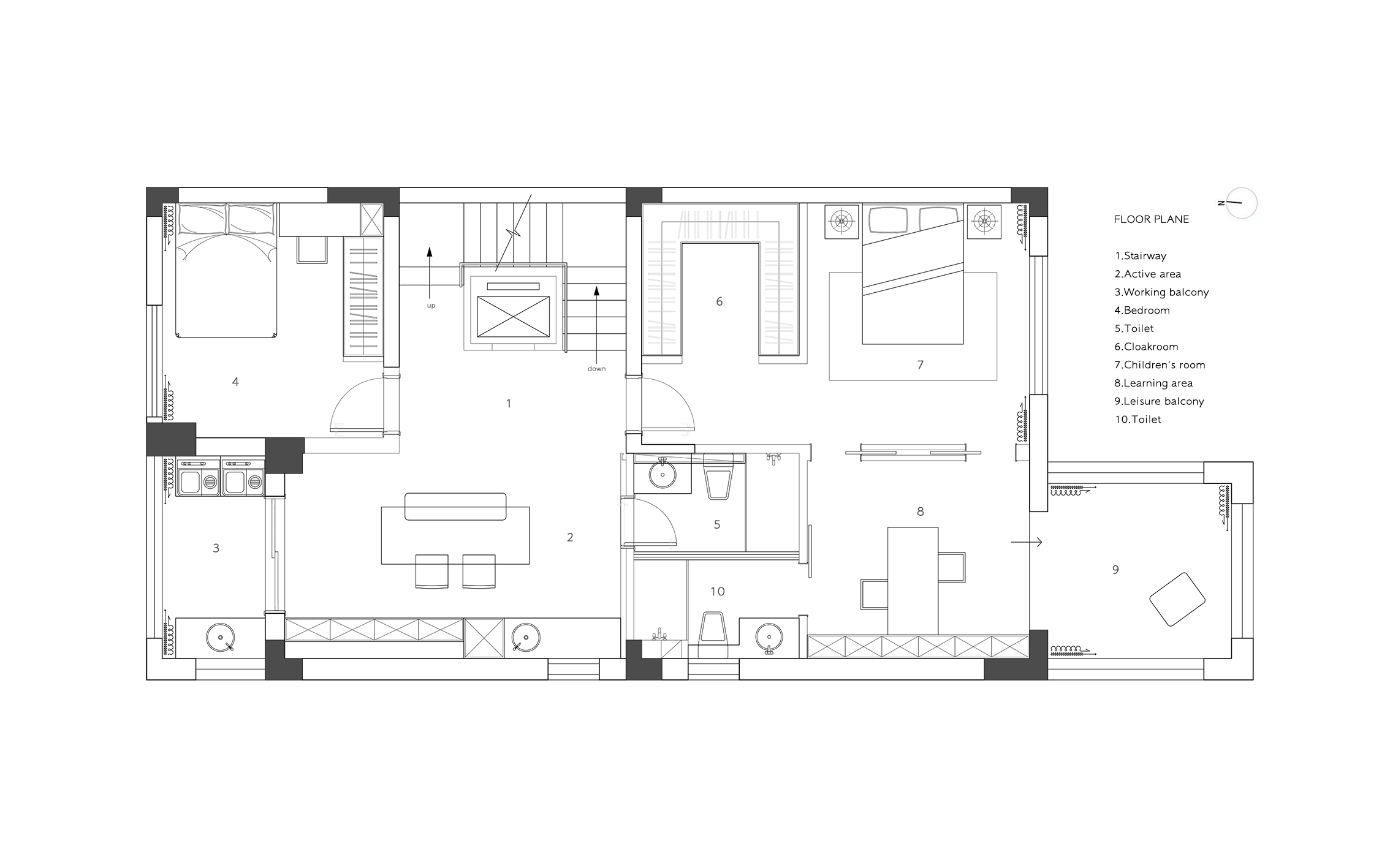
基于不同的房屋条件,并充分考量居住者未来与空间的共处与互动,将二、三层作为家庭成员学习工作及休息区。
P. 19
P. 20
P. 21 以大面积留白,将空间还原至极简状态。环视内外,整个空间以一种静谧的姿态,徐徐展开生活的日常画卷。
P. 22
P. 23
04ELEGANT
MELODY
每一位居住者对空间的诉求都不同,自然而然,每间卧室所适配的格局、材质也会有所差异化。留白处理的主卧空间,给人一种静谧的安定感。天花采用斜顶设计,与光影的交叠,形成了舒适的美学感官体验。漫步于其中,卸下疲惫,享受身心放空。
P. 24
P. 25
P. 26
P. 27
P. 28 主卧的亮点之一,体现在采用循环动线,使得衣帽间与卫浴区之间的动线切换更加便捷自如。
P. 29
P. 30
P. 31
卫生间设计了充足的储物空间,简约的大理石材质结合镜子的视觉延伸,营造出空间的通透感。每一处细节的精心雕琢,实现了审美与实用的平衡。
P. 32
P. 33
P. 34
P.35
居所是一家人生活的主场,链接着过往记忆、当下时光与未来畅想,情感与温度是永恒的主题。在生活场景、互动画面的丰富下,描绘出渐入佳境的诗意新居。
• 05
ANALYSIS
DIAGRAM
分析图
滑动查看平面图 P.36
INFO
- 项目名称:生活旋律
- 设计机构:不器空间设计
- 项目面积:400㎡
- 项目地址:江苏 苏州
- 项目摄影:wm studio
- 文案撰写:LJID
DESIGN STUDIO
不器,不拘于形,形之有度。
不器空间设计是一家以原创为主的新生代创意型设计公司。坚持新工艺的不断研发和实景 1:1 落地,通过科学性的市场调查,详细的数据分析,为每个不器家梳理生活与设计的关系。
客服
消息
收藏
下载
最近













































