查看完整案例

收藏

下载
2019年3月20日,欧洲第一家水下餐厅在挪威Lindesnes正式营业。该项目位于挪威海岸线的最南端,来自南北两个方向的洋流在这里交汇。海洋生物在这里的咸水中大量繁衍,为场地赋予了天然的生物多样性。“Under”不仅仅是一间水下餐厅,它还以海洋生物研究中心的身份对野生物种以及挪威南端嶙峋的海岸线表达着敬意。
Europe’s first underwater restaurant will welcome guests in Lindesnes, Norway on March 20th, 2019. Located at the southernmost point of the Norwegian coastline, where the sea storms from the north and south meet, the project is situated at a unique confluence. Marine species flourish here in the both briny and brackish waters to produce a natural abundance in biodiversity at the site. The Snøhetta-designed restaurant also functions as a research center for marine life, providing a tribute to the wild fauna of the sea and to the rocky coastline of Norway’s southern tip.
▼建筑鸟瞰,aerial view ©André Martinsen
在挪威语中,“under”具有“below”和“wonder”的双重含义。这座34米长的单体建筑一半沉入大海,底部被支撑在5米深的海床上。结构设计旨在使建筑随着时间的推移与海洋环境形完美融合,粗糙的混凝土外壳将逐渐具备与人工鱼礁类似的功能,使海洋中的帽贝和海藻都能够栖居其中。厚实的混凝土外墙直接倚靠在崎岖的海岸线上,能够承受不同级别的压力和冲击。餐厅的巨大窗户犹如一架水下潜望镜,可以观察到海底在不同季节和天气条件下的变化。
▼剖面图,section
In Norwegian, “under” has the dual meaning of “below” and ”wonder”. Half-sunken into the sea, the building’s 34-meter long monolithic form breaks the surface of the water to rest directly on the seabed five meters below. The structure is designed to fully integrate into its marine environment over time, as the roughness of the concrete shell will function as an artificial reef, welcoming limpets and kelp to inhabit it. With the thick concrete walls lying against the craggy shoreline, the structure is built to withstand pressure and shock from the rugged sea conditions. Like a sunken periscope, the restaurant’s massive window offers a view of the seabed as it changes throughout the seasons and varying weather conditions.
▼34米长的单体建筑一半沉入大海,底部被支撑在5米深的海床上,half-sunken into the sea, the building’s 34-meter long monolithic form breaks the surface of the water to rest directly on the seabed five meters below ©IVAR KVAAL
▼厚实的混凝土外墙直接倚靠在崎岖的海岸线上,the thick concrete walls of the building lying against the craggy shoreline ©Inger Marie Grini/Bo Bedre Norge
餐厅每晚可招待35-40名客人,用餐空间受到半米厚的混凝土墙的保护。餐厅的经营理念是采用优质的本地食材,尤其是可持续野生食材来为客人创造难忘的美食体验。原本来自挪威著名餐厅Måltid的丹麦籍厨师Nicolai Ellitsgaard担任Under餐厅的主厨,并带来了一个包含16人、拥有顶级米其林餐厅工作经验的国际团队。
The restaurant seats 35-40 dinner guests every night, in a dining room protected by half a meter-thick concrete walls. Its culinary focus is to create a fine dining experience based on high quality, locally-sourced produce, with a special emphasis on sustainable wildlife capture. Danish expatriate Nicolai Ellitsgaard from acclaimed restaurant Måltid in Kristiansand is the Head Chef, bringing an international, 16-person kitchen team with experience from top Michelin restaurants.
▼餐厅室内概览,interior view ©IVAR KVAAL
Snøhetta的创始人兼建筑师Kjetil Trædal Thorsen表示:“Under餐厅是我们所做的边界实验的自然成果。作为挪威南部的新地标,它展示出了代词与介词的一种前所未有的组合,挑战了人在环境中停留的必要条件。在这座建筑中,你会发现自己可能处于水下、海底,或者陆地与海洋之间,这会让以一种全新的视角和方式来认知世界,不论是在水面之上还是水面之下。”
“Under is a natural progression of our experimentation with boundaries, says Snøhetta Founder and Architect, Kjetil Trædal Thorsen. “As a new landmark for Southern Norway, Under proposes unexpected combinations of pronouns and prepositions, and challenges what determines a person’s physical placement in their environment. In this building, you may find yourself under water, over the seabed, between land and sea. This will offer you new perspectives and ways of seeing the world, both beyond and beneath the waterline”.
▼连接入口的桥梁,a bridge to the entrance ©IVAR KVAAL
Lindesnes以极端的天气变化闻名,一天之间可能会经历数次从风平浪静到风雨交加的过程。然而,当客人们到达场地,进入安静的橡木门厅之后,便会立刻忘记户外的无常天气。丰富的室内空间营造出温馨而友好的氛围。以织物覆盖的天花板借鉴了海上落日的色彩,随着客人走下楼梯,室内的色彩变化也隐喻着从陆地深入海洋的过程。精致的天花板纹理进一步为室内带来宁静的感觉。
▼剖透视图,sectional perspective
Lindesnes is known for its intense weather conditions, which can change from calm to stormy several times a day. Upon arriving at the site, the visitor’s impressions of the unruly outdoors quickly dissolve as they are ushered through into the hushed, oak-clad foyer. The rich interiors create a warm, welcoming atmosphere inside the restaurant. As a metaphor for the journey of descending from land to sea, textile-clad ceiling panels reference the colors of a sunset dropping into the ocean, accompanying one’s passage down the stairs. The subtle elegance of the finely woven ceiling panels lends a serene ambience to the building.
▼位于夹层的酒吧, mezzanine bar ©Inger Marie Grini/Bo Bedre Norge
▼从上至下,室内的色彩变化隐喻着从陆地深入海洋的过程,textile-clad ceiling panels reference the colors of a sunset dropping into the ocean, accompanying one’s passage down the stairs ©Inger Marie Grini/Bo Bedre Norge
▼用餐空间,dining area ©Inger Marie Grini/Bo Bedre Norge
▼家具细部,furniture detail ©Inger Marie Grini/Bo Bedre Norge
▼纵向海景窗,a vertical window towards the sea ©IVAR KVAAL
▼从楼梯望向全景窗,view to the window from the stair ©IVAR KVAAL
▼材料细部,material ©IVAR KVAAL
在5米深的位置,宽11米、高3.4米的水平窗户带来壮观的全景水下视野,将餐厅中的客人与外面的野生动物联系起来。
At the seabed, five meters below sea level, lies the panoramic eye of the building. An eleven-meter-wide and 3.4-meter-tall horizontal window offers a visual gateway to the sea and connects the guests to the wildlife outside.
▼宽11米的水平窗户带来全景水下视野,an eleven-meter-wide horizontal window offers a visual gateway to the sea ©IVAR KVAAL
▼沉浸式的空间体验,an immersive spatial experience ©IVAR KVAAL
▼楼梯细部,detailed view ©IVAR KVAAL
▼室内墙面细部,interior wall surface ©IVAR KVAAL
该项目的另外一个重要部分是其对于海洋研究的积极影响。餐厅将欢迎跨学科研究团队在立面内外安装摄像机等各类测量工具来研究海洋生物和鱼类行为,观察并记录餐厅周围的物种数量、行为习惯和多样性。研究的目标是收集可被编入机器研究工具的数据并定期检测重要海洋物种的种群动态,从而对官方的海洋资源管理创造新的契机。
An equally important part of the project is the building’s facilitation of marine research. The restaurant will welcome interdisciplinary research teams studying marine biology and fish behavior, through cameras and other measurement tools that are installed on and outside the facade of the restaurant. The researchers’ aim is to document the population, behavior and diversity of species that are living around the restaurant, through cameras and live observation. The goal of the research is to collect data that can be programmed into machine learning tools that monitor the population dynamics of key marine species on a regular basis, thereby creating new opportunities to improve official marine resource management.
▼餐厅将欢迎跨学科研究团队研究海洋生物和鱼类行为,the restaurant will welcome interdisciplinary research teams studying marine biology and fish behavior ©IVAR KVAAL
主厨Nicolai Ellitsgaard和他的团队将定期与海洋生物学家对话,以便确定应该在何时、以何种方式进行捕捞,才能够达到最佳的可持续性。他们希望依靠建筑本身来获取餐厅菜单上的食材。厨师团队和研究人员还将共同合作,使更多鱼类聚集到窗户边缘,以便海洋生物学家进行更加密切的研究,同时也为餐厅的客人带来有趣的景观。
Head Chef Nicolai Ellitsgaard and his team are in regular dialogue with the marine biologists to understand how and when to harvest from the sea in the most sustainable way. They hope to be able to harvest ingredients from the building itself that can be put on the menu of the restaurant. The kitchen and the researchers also collaborate to attract fish to the window, allowing the marine biologists to study the species more closely while also providing an interesting view for the restaurant guests.
▼厨师团队希望依靠建筑本身来获取食材,Head Chef and his team hope to be able to harvest ingredients from the building itself that can be put on the menu of the restaurant ©Fotograf Stian Broch
Under是一场由对比构成的叙事:陆地与海洋、水上与水下。该项目突显了陆地与海洋之间微妙的生态平衡,并提醒我们以可持续的方式进行负责任消费。通过关注陆地和海洋生命的共存,Under为我们对周围关系的理解提出了一种新的方式,不论是在水面之上、水面之下,还是生活在海洋周围。
Under is a story of contrasts; the contrast between the landscape and the sea; above and below. The project underscores the delicate ecological balance between land and sea and draws our attention to sustainable models for responsible consumption. By focusing on the coexistence of life on land and in the sea, Under proposes a new way of understanding our relationship to our surroundings – above the surface, under the water, and alongside the life of the sea.
▼夜景,night view ©IVAR KVAAL
▼海面视角,view from the sea ©IVAR KVAAL
▼平面和印刷品设计,print and graphic design ©Snøhetta
▼场地平面图,site plan
▼结构拆解图,structure diagram
▼入口层平面图,entrance level plan
▼夹层酒吧平面图,mezzanine bar plan
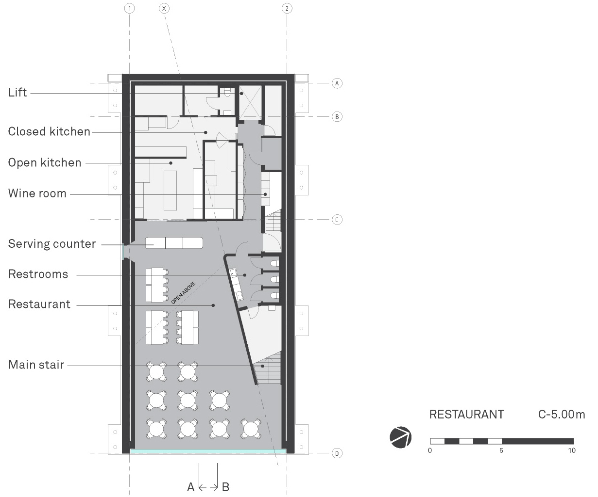
▼餐厅层平面图,restaurant plan
▼立面图,elevation
▼剖面图,section
客服
消息
收藏
下载
最近














































