查看完整案例

收藏

下载
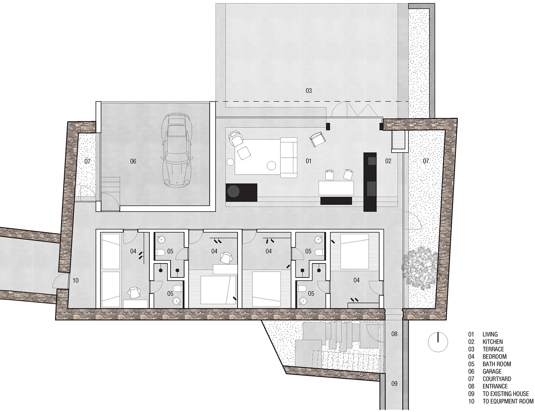
项目坐落在北京的北侧,长城脚下。项目现有结构最初建于上世纪中叶, 作为地下仓库使用,储藏该村出产的水果。仓库完全由天然石材建造,体积规模为21x11x4 米的长方形。
The property is located in a mountain area near the Great Wall, north of Beijing. Originally built in the middle of last century as underground storage for fruit trees for the village, the existing structure is built entirely of natural stone and consists of a rectangular volume of 21 x 11 x 4 meters.
▼建筑外观,exterior view
业主在用地南侧拥有一栋房子,地形高于本项目,可以俯瞰仓库屋顶。设计的委托范围是将该仓库改造成4间卧室的住宅,也可以被认为是旧宅的扩建。
The client owns a house on the south side of the property, in an elevated position overlooking the roof of the underground storage. The scope of the design was to extend the existing house by turning the storage into a 4 bedrooms residence.
▼平面图,plan
仓库朝北,部分低于周围地形,部分嵌入地形。为了给新住宅创造一个宜居的环境,需要针对这些特殊条件提出一个解决方案。设计策略主要集中在主要方向:增强储物空间和石墙的特征,将可能多的光线引入室内空间,并保留客户现有住宅的全景。
The existing storage is constructed north facing, partially underground in a basin lower than the surrounding. To create a livable environment for the new residence, a design solution for these particular conditions was required. The design strategy focused on three main directions: enhance the identity of the storage and its stone walls, allow as much light as possible to the interior space and preserving the panoramic view from the existing house owned by the client.
▼住宅部分嵌入地形,the building volume is partially underground in a basin lower than the surrounding
▼石墙的特征得到增强,the identity of the stone walls has been enhanced
现有的天然石墙在很大程度上被保留,设计充分暴露天然石墙以体现其自身不可取代的存在感,新的抛光混凝土结构和白色抹灰内墙与其产生强烈对比。只有在北侧,原本的天然石墙被一个大的玻璃幕墙所取代,土壤被拆除,与主立面对应地形成了一个宽敞的露台,延长了起居室与用餐区的长度。同样在北侧,车库是一个木材包裹的体量,被镶嵌在整体的体量里。
The existing natural stone walls are preserved to a large extent and are fully exposed as a strong presence in the house in contrast with the new polished concrete structure and white plastered interior walls. Only in the north side the natural stone wall is replaced by a large glass façade and the soil removed to create a generous terrace in front, which occupies the entire length of the living and dining area in the inside. Also in the north side, the garage is inset into the building as a wood cladded box.
▼设计充分暴露天然石墙以体现其自身不可取代的存在感,the existing natural stone walls are preserved and are fully exposed as a strong presence in the house
▼新的抛光混凝土结构和白色抹灰内墙与石墙产生强烈对比,the stone walls are in contrast with the new polished concrete structure and white plastered interior walls
▼室内夜间概览,interior view at night
在开放式起居室,定制的开放式壁炉和黑色厨房柜台形成了2个视觉焦点,而车库的木材完成面柔软了起居室的背景。
In the open-plan living area, the custom-made open fireplace and the black kitchen counter set 2 focal points while the wood cladding of the garage provides a warm background to the soft seating area.
▼起居室概览,living area overview
▼下沉的沙发区域,the sunken seating area
▼定制壁炉和黑色厨房柜台构成了起居室的两个焦点,the custom-made open fireplace and the black kitchen counter set 2 focal points in the living area
新屋顶的设计最大限度地引进了自然光。现有的屋顶被两个混凝土楼板取代,这两个混凝土水平向的元素与石墙相互独立,被设置在两个不同的高度。北部较低的屋顶覆盖客厅和车库,同时也是屋顶露台。它短于现有的石墙长度,因此房子的东部和西部自然形成了两个花园。这些花园从不同的角度增加了光线的自然。
The new roof was designed to maximize the natural light input to the house. The existing roof was replaced by two concrete slabs, which are detached from the stone wall and set at two different heights. The lower northern roof covers the living room and the garage and it is designed as a roof terrace. It is shorter than the existing stone wall length and creates two gardens in the east and in the west of the house. These gardens increase the natural of light from different angles.
▼既有屋顶被两个水平的混凝土楼板取代,设置在两个不同的高度,the existing roof was replaced by two concrete slabs, which are detached from the stone wall and set at two different heights
▼花园,garden
南部较高的屋顶向西转移,允许通过通往较低屋顶的露台,避免向东院投射阴影。屋顶在不同的高度上对周边梯田式的地形做出回应。两个屋顶之间的缝隙使更多的自然光进入建筑的中心部分,并在温暖的季节改善自然通风。
▼剖面图,section
The higher roof in the south is shifted to the west to allow a passage to the lower roof terrace and avoid to project shadow to the east courtyard. The different heights of the roofs are responding to in the terraced degradation of the plot and the surrounding. The gap in between the 2 roofs allows more natural light to penetrate in the central part of the building and it is improving the natural ventilation during the warm seasons.
▼两个屋顶之间的缝隙使更多的自然光进入建筑的中心部分,the gap in between the 2 roofs allows more natural light to penetrate in the central part of the building
较高的屋顶下,南部是卧室。由于他们高高的天花板和高耸的窗户,我们试图形成让使用者能产生享受沉思的感觉。每间客房均设有私人浴室。卧室由一条通道连接,通过三个台阶与相邻的生活区相连。在卧室的旁边,项目的东南角,一条隧道连接着新房子和现有的住宅建筑。由于新旧住宅被一条区间道路分隔开,因此这条连接新旧住宅的通道被转移到了地下。
Below the higher roof in the south part of the new house are located the bedrooms. They enjoy a contemplative feeling thanks to their high ceilings and high-rise windows. Each room has a private bathroom. The bedrooms are connected by a passage which is elevated by three steps to the adjacent living area. Next to the bedrooms, in the southeast corner, a tunnel connects the new house with to the existing residential building. As the belonging plots are separated by a side road, this passage passes through a tunnel under the road.
▼卧室位于较高的屋顶下,bedrooms are arranged below the higher roof in the south part of the new house
▼每间客房均设有私人浴室,each room has a private bathroom
因此,从业主现有住宅的露台上可以看到两个漂浮的绿色屋顶以及长城。
As a result for the view from the terrace of the existing house is enriched by two floating green roofs in balance with the panoramic scene to the Great Wall.
▼露台视角,view from the terrace
▼坡道与屋顶,the ramp and the roof
▼模型,model
▼场地平面图,site plan
▼设计分析图,design concept
客服
消息
收藏
下载
最近








































