查看完整案例

收藏

下载
这是一所建筑师为自己和家人打造的住宅,保留了场地中既有的浮雕、岩石和原生树木,将家庭生活与当地的自然环境融为一体。住宅的入口处设有由7cm的厚木板构成的平台,可以用做户外的家庭起居空间。
The house was built for the architect and his family, preserving relief, stones and native trees, creating functional spaces that integrate domestic life with the nature of the place. The entrance of the house is done through a deck of 7cm thick wooden planks of demolition. This space doubles as an outdoor living room and is where the family spends most of the time.
▼建筑外观,exterior view
建筑的大部分由碳钢结构筑成,可以实现较大的跨度,从而减少隔墙数量、扩大窗户面积,使室内空间与花园和周围的优美景观形成对话。
The carbon steel structure used in most of the building made possible large spans with spares of reduced sections, allowing large window openings and creating open spaces in dialogue with the garden and the beautiful landscape of the region.
▼碳钢结构带来较大的跨度,the carbon steel structure made possible large spans with spares of reduced sections
▼架高的走廊,the elevated corridor
通往阁楼和露台的楼梯由再生钢材和粉木板构成。硬木材质的旧门、梯子、木制地板、浴室台面、木制家具和定制的黄色吊灯共同为以工业材料建造的住宅赋予了家庭的温馨氛围。
The access stairs to the mezzanine and terraces are made of profiles of recycled steel and pink peroba planks on the steps. Old doors made of solid hardwood, hardwood ladders used, cover system employing wooden floors, bathroom countertops, wooden furniture and yellow-colored luminaires, made exclusively for the project, contribute with domesticity for the construction with industrial materials.
▼室外平台,outdoor terrace
▼旧门、木制地板、木制家具和定制的黄色吊灯为住宅带来温馨氛围,old doors, wooden furniture and yellow-colored luminaires contribute with domesticity for the construction with industrial materials
住宅的地面铺设以抛光的混凝土板,这种材料通常被用于工业建筑和加油站,因其具有较高的抗冲击性和耐磨性,以及干净而光滑的表面。不仅如此,抛光的混凝土薄板还具有可观的经济性,并且能够对阳台和露台起到防水的作用。混凝土墙壁也保持了裸露状态,通过10cm的装条板框架进行模塑,不仅减少了人工,还使建筑与自然融为一体。
The flooring in most of the house is the concrete slab itself that was polished in the act of concreting – usually used in industries and gas stations because of its high impact resistance, abrasion and its smooth and hygienic finish.This option results in: fine finish, considerable economy and thin slabs – polishing was the only waterproofing of the floors of balconies and terraces. The concrete is also exposed in walls and slabs, molded in the formwork with 10cm battens, thus exploiting its properties, eliminating human labour and material stages and integrating the building with nature.
▼客厅,living room
▼餐桌兼活动空间,dining table as an activity space
▼室内细部,interior detail
▼儿童卧室,children’s bedroom
屋顶由金属支撑结构和硬木表面构成,上面覆盖着一层沥青并衬以木瓦。钢制的立柱内填充以“自压实”的混凝土,作为支撑玻璃的框架,有助于使建筑变得更加轻盈和透明。以砖石砌筑的墙壁为轻盈的结构提供了基础,抬高的体量能够避免潮湿和动物的侵扰。石墙的材料来自于一百多年前的旧墙,并由当地工匠重新砌筑。
The roof is composed of metal structure and hardwood floor, covered by asphalt blanket and lined with “shingle roof”. The pillars are made of steel pipes filled with “auto adensável” concrete and are recessed against the glass edges contributing to the lightness and dematerialization of the structure. The lightweight structural set of the house rests on masonry stone walls that compose the foundation by lifting it off the floor in order to avoid moisture and animals. The stones were dismantled from a wall over a hundred years old and redone by a local craftsman.
▼得益于砖石砌筑的基座,抬高的体量能够避免潮湿和动物的侵扰,the lightweight structural set of the house rests on masonry stone walls that compose the foundation by lifting it off the floor in order to avoid moisture and animals
▼景观和绿化由房屋主人亲自完成,使场地中既有的一些植物与房屋和谐相融
Landscaping was done intuitively by residents, seeking to incorporate pre-existing native species that at some points cross the slabs.
▼花园细部,garden detail
弧形的房顶朝向太阳升起的方向,固定的玻璃板和可滑动的铝框玻璃门能够将全天的阳光引入室内,这对于像Petropolis这样的多山城市来说有着至关重要的健康意义。
The curved roof rises in the direction of the rising sun, which during the day runs through the house through iron-fixed fixed glass panels and sliding aluminum and clear glass sliding doors. Especially in the rooms facing north, the incidence of sunshine is vital to health in a mountainous city like Petropolis.
▼宽阔的玻璃窗和玻璃门能够将全天的阳光引入室内,the large glass panels and glass sliding doors provide the house with all-day sunlight
住宅内还增设了额外的游戏室,以及建筑师为其艺术家妻子打造的工作间,实现了建筑的功能性与观赏性的融合。开放空间的理念以及对材料自然而合理的运用,共同为住宅赋予了简约而实用的宝贵特征。
The house has gained attachments as a playroom and an atelier for the artist Katharina Welper, architect’s wife, complementing the integration between architecture and landscaping. The concepts of an open space, the use of materials in their natural form and integration with nature seek to inspire in the family simplicity and a functional and integrated lifestyle.
▼位于独立体量中的游戏室,playroom in an independent volume
▼室内概览,interior overview
▼窗景,view
▼室内细部,detailed views
▼屋顶露台,roof terrace
▼从泳池望向住宅,view from the pool area
▼设计手稿,design sketch
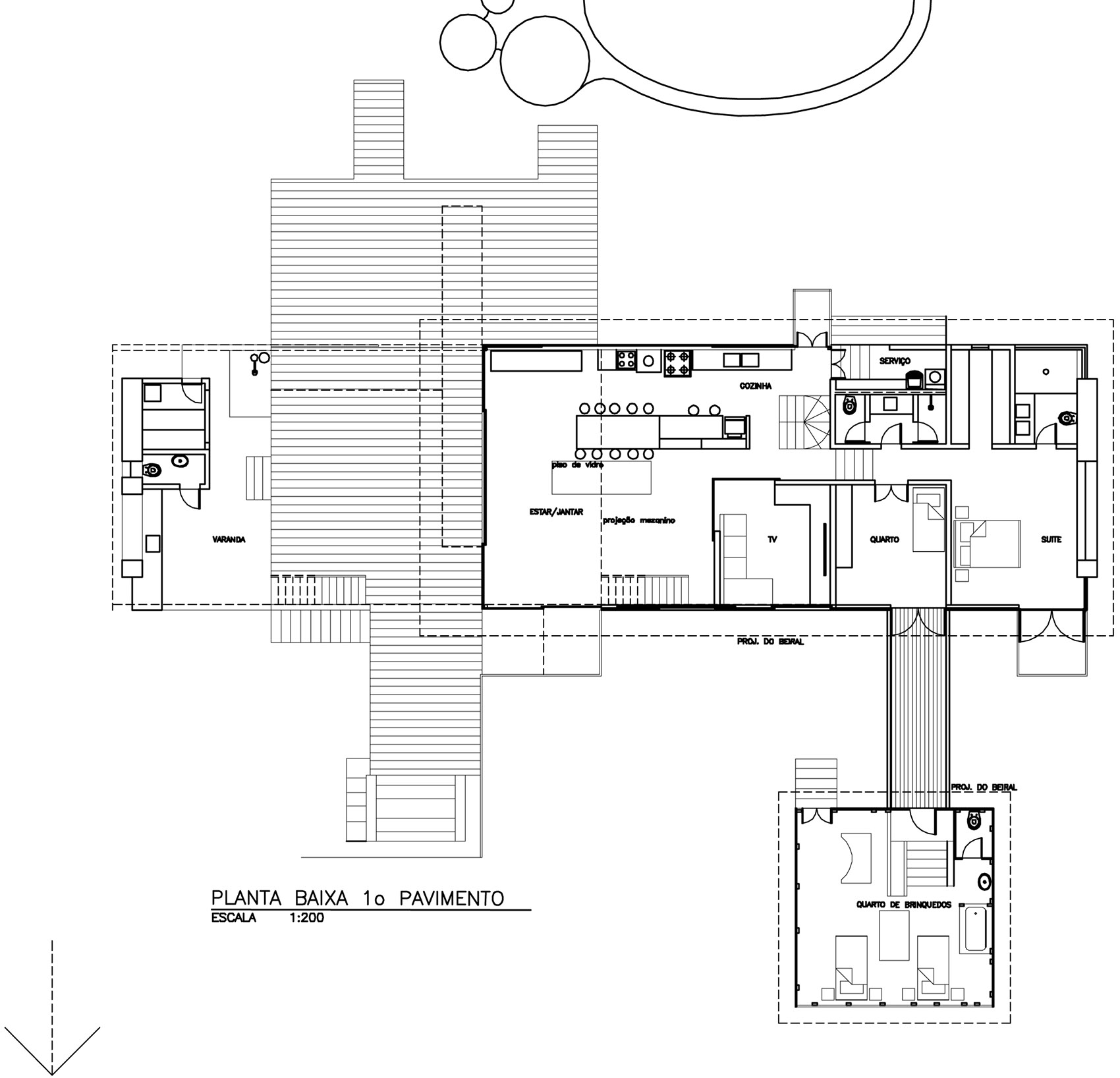
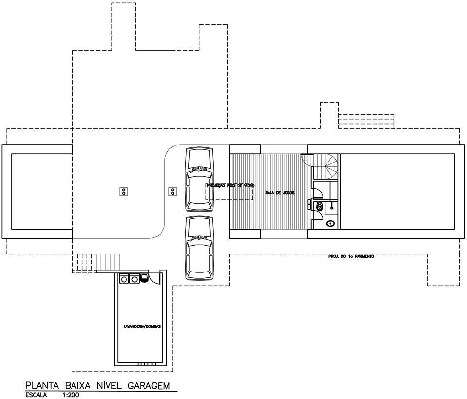
▼首层平面图,ground floor plan
▼主立面图,main facade
▼剖面图AA,section AA
客服
消息
收藏
下载
最近









































