查看完整案例

收藏

下载
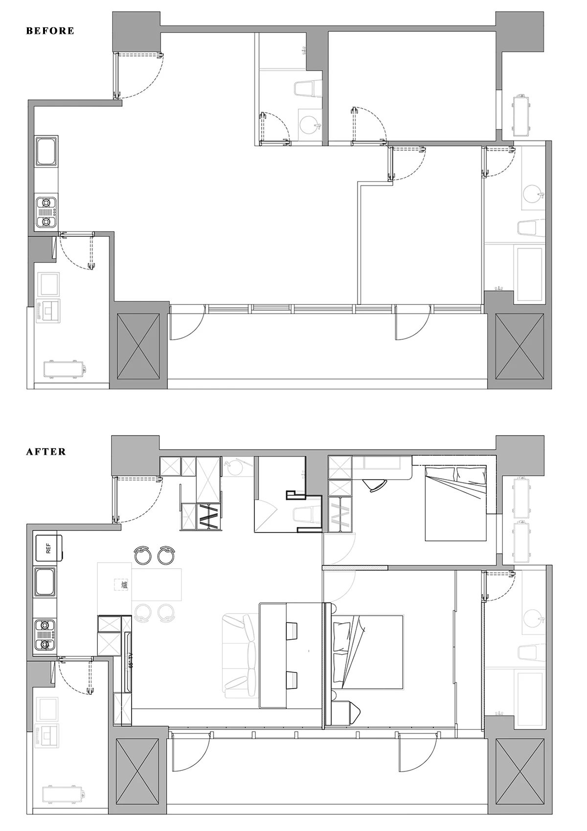
这间99㎡的住宅位于新北市,屋主倾向素雅白净的质简风格,期待能有用于居家办公的开放式书房。同时需要增加中岛强化厨房的功能,并希望拥有一间储藏室。
平面布局图
“把空间留给空间”是设计者的信仰也是实践的态度,纯色的白与黑在场域内自由流动。原生般的木纹质材,温柔了全室气息。
玄关同时承载着屋主期待的储藏室功能,以不落地的悬浮姿态,轻巧揭开布局的开端, 隐藏在滑门后的则是一间收纳力惊人的储藏室。
客厅视角
客厅墙面饰以天然矿石环保涂料,铺以石塑地板,以轻浅木纹晕开了暖煦光感,同时具备耐刮擦、防潮的特性。
天花板以流线型修饰,最大程度上减少了锐利视感。整面电视墙收纳力拉满,由木地板延伸而上覆盖约三分之一的木皮,让视觉有了绵延效果。
落地窗搭配的是白色系的木百叶,将漫进屋内的光束悉数捕捉,构成一幅安稳淡然的窗景。
为满足屋主期待的开放式书房,设计师在客厅立下半墙,后置一字型书桌,饰以圆角修饰转折之处,减少了碰伤的风险。
定制的客厅沙发与半墙同宽。客厅与书房一起形成了洄游动线,方便家中每位成员穿行而过。
值得一提的是餐厅特制了可伸缩式餐桌,不用时藏进中岛内,使公区更精简、洗练,亦可腾出更多活动空间,享受更大尺度的客餐厅范围。
主卧延续了公区素雅白净的风格,在软包、百叶、格栅中编排出秩序美感。床尾的主卫入口与衣物收纳区隐于格栅后,私密性拉满。
卫浴区将洗手台移出,方便独立使用。卫浴玻璃采用了自控调整的模式,在透明与雾面中随心选择想要的状态。
客服
消息
收藏
下载
最近

















