查看完整案例

收藏

下载
北京前门鲜鱼口胡同里的一栋建筑,发生了一次历史性地变革。受宝马和共享际委托,大观把鲜鱼口老胡同里的一栋小楼翻新修整,打破以往传统办公室的模式,把车库、加油站、汽车修理厂与相同元素金属融为一体,打造了一个以宝马X2汽车为主题,共享际来负责运营的办公共享空间。与此同时,也为这条百年历史的商业老街带来了新的活力。
A historic change has taken place in a building in Xianyukou Hutong, Qianmen, Beijing. Commissioned by BMW and 5Lmeet, DAGA renovated a small building in the old alley of Xianyukou. It broke away from the traditional office model, integrated garage, gas station, automobile repair shop with the same elements of metal, and created a public sharing space with BMW X2 as the theme, which is responsible for the operation of 5Lmeet.
In the meantime, it also brings new vitality to this century-old commercial street.
▼由胡同进入前台接待区,entering the reception area from the Hutong
BMW X2作为BMW X家族中最“炫酷”的新成员,全金色的车身设计,因此在主材料选择上,我们大面积运用了金属材质。以金属银和金黄两种色彩的主要材质基调配合使用,并在隔断、家具、天花等多处都运用了大量金属材料,强化简约的未来感和科技感的汽车主题。
从建筑西侧的胡同进入,映入眼帘的是一个炫酷的金色空间,把汽车品牌的“X”和传统建筑大门的门簪为空间的设计元素。
BMW X2 is the most “cool” new member of the BMW X family. It has a full gold body design. Therefore, in the selection of main materials, we have made extensive use of metal materials. Major material tones of metallic silver and gold are used together, and a large number of metal materials are used in partitions, furniture, ceiling and other places to strengthen the simple future sense and technological sense of automobile theme.
Entering from the Hutong on the west side of the building, what you see is a cool golden space. We regard “X” of automobile brand and door hairpin of traditional building gate as space design elements.
▼接待区, the reception area
4米长不规则的曲面金色吧台,设计灵感源于BMW X2的流线型的金色车身概念,流畅而富有变化。金色的金属板在酒光之中,在昏黄的灯光映衬下,闪闪发光,像是诉说时光里的那些激情浪漫。
混凝土的墙面与金黄色的质感形成强烈的对比,新与旧的碰撞、粗狂与细腻的碰撞、速度与激情的碰撞。
The design of the 4 m long irregular curved golden bar is inspired by the streamlined golden body concept of BMW X2, which is smooth and changeable. Golden metal sheets glisten in the light of wine and dim light, it’s like talking about the passion and romance of time.
The concrete wall makes a strong contrast to the golden texture. The collision of new and old, rough and delicate, speed and passion.
▼混凝土和金属元素的搭配兼顾了粗犷和细腻之感,the matching of concrete and metal elements gives consideration to both rough and delicate feeling.
▼金属酒架,metal wine rack
酒吧的一侧是一个被金色包裹着的盒子,金色明亮的幕帘延伸到整个空间,闪烁着金色的光芒,这个金色幕帘的柔和与镜子的反射激发了人们的触觉和感官。
幕帘拉上时,人们可以举办私密性的活动表演;打开幕帘,可以作为瑜伽健美操的运动健身场所。通过幕帘这种半透明的金属,可以和外面的空间合并在一起,也可以分开,成为彼此独立的空间。
On one side of the bar is a box wrapped in gold. The bright golden curtain extends to the whole space, gleaming with golden light. The softness of the golden curtain and the reflection of the mirror stimulate people’s sense of touch and sense organ. When the curtain is closed, people can hold private activities and performances; when the curtain is opened, it can be used as a gymnasium for Yoga Calisthenics. Through the translucent metal curtain, it can be merged with the outer space or separated into separate spaces.
▼路演室金色盒子,golden box of road studio
会议室是整个空间的另一个全金色的空间,金属板之间相互不停地反射,在天花上灯光的映衬下,有一种无限延伸的空间感受。
仿佛坐在BMW X2里,顺着箭头指示的方向不断前行。
The conference room is another all golden space in the whole space. Metal plates reflect constantly each other, against the ceiling lights, there is an infinite extension of space feeling. As if we are sitting in BMW X2, and we keep moving in the direction indicated by the arrow.
▼金色会议室,golden conference room
BMW X2强调的是叛逆、打破束缚、与众不同。与此相呼应的,大观认为鲜鱼口的办公空间也应该是明亮的、炫目的、科技的、极简的。不同于很多办公空间的平淡无味,整个空间灯火通明,意在让人一进入,就置身于金色中,打破对人们对普通空间类型的传统定义,在办公的环境中注入活力,捕捉汽车的魅力。这里不仅是可以办公的空间,更是人们的感官实验场。
BMW X2 emphasizes rebel against, breaking bondage and being different. Corresponding to this, DAGA believes that the office space in Xianyukou Hutong should also be bright, dazzling purpose, technological and minimalist.
Unlike many dull and tasteless office spaces, the whole space is brightly lit. The goal is to put people in gold as soon as they enter, which breaks the traditional definition of ordinary space type, vitalizes the office environment and captures the charm of the car.
This is not only the office space, but also the people’s sensory laboratory.
▼自动门,automatic door
开放办公区以银色金属板作为空间的主材料,演绎了生动的灰色。银色金属板可以朦胧地反射周边的环境,随着光线、人流、视线的变化,金属板表面会呈现不同的色彩。人在空间中移动,可以感受到这些颜色变化,但总体上它又呈现出一种冷灰的基调。
灰色可以是任何颜色,它其实是最复杂的颜色,越复杂越生动。在办公区域中,灰色不再是简单的白加黑,而是五颜六色的汇合。
The open office area takes the silver metal plate as the main material of space, which deduces vivid gray. Silver metal plates can dimly reflect the surrounding environment. With the change of light, people and sight, the surface of the metal plate will take on different colors. When people move in space, they can feel these color changes, but in general, it presents a tone of cold ash.
Gray can be any color. It’s actually the most complex color, the more complex, the more vivid. In the office area, gray is no longer a simple white and black, but a confluence of colors.
▼开放办公区,open office area
由汽修厂的升降台为设计灵感,在开放办公区的中央设计了一个上升的办公空间,LED的天花灯膜使空间看起来可以向上延伸,成为整个办公空间的焦点。
Taking the elevator of the automobile repair plant as the design inspiration, a rising office space was designed in the center of the open office area. The ceiling lamp film of LED makes the space seem to extend upward, which becomes the focal point of the whole office space.
▼汽车升降台办公室,office of automobile elevator
深入空间内部,大面积的银与金没有带来丝毫的距离感,温和柔软的棕色沙发和孔雀绿的地毯,为纯粹的空间内注入暖意。细究材质,在光感的不锈钢材质与质朴的混凝土墙面交错中,粗中有细致的水磨石地面以及天然的鹅卵石,带来空间中和谐的一抹“温度”。
If we go deep into the interior of the space, large areas of silver and gold will not bring a sense of distance. Mild and soft brown sofa and peacock green carpet inject warmth into pure space.
If we study the material carefully, in the crisscross of light-sensitive stainless steel and plain concrete walls, rough and meticulous terrazzo floor and natural pebbles will bring harmony in space with a touch of “temperature”.
▼洽谈交流区,communication region of negotiation
▼交流区细部,detailed view of communication area
二层水吧区利用原建筑屋顶的结构,设计成一个坡屋顶的金属感十足的加油站。天花上白色灯管设计从BMW X2令人目瞪口呆的速度中获得灵感。
Using the structure of the original building roof, we designed a two-storey water bar area as a metal-filled gas station with a sloping roof.
The design of white ceiling lamps was inspired by the stunning speed of BMW X2.
▼水吧,water bar
空间一层二层延续银色金属板和半透明材料PC板材质配以皮质沙发,极简,没有一点多余的东西,就像BMW X2的本身所体现的个性,动感与硬朗,给人一个充满速度感的空间。
The first and second layers of space are made of continuous silver metal plate and translucent material PC plate, matched with cortical sofa, which is very simple and there is nothing superfluous. Like the personality embodied in BMW X2 itself, dynamic and tough, giving people a space full of speed.
▼二层办公走廊,office corridor at the second floor
墙面采用新型半透明材料PC板(聚碳酸酯板),这种材料的特征为轻盈、通透,而且具有一定的反射能力。室内的灯光透过PC板,使整个空间像一个个发光的盒子。
We take new translucent material PC board for wall surface (polycarbonate board). The material is characterized by lightness, transparency, and it has a certain reflectivity. Through the PC board, indoor lighting makes the whole space like a glowing box.
▼墙面采用新型半透明材料PC板,
we take new translucent material PC board for wall surface
以BMW X2金色外壳元素为主线,以反其道而行的精神营造空间对比感,通过一条金色的隐秘楼梯,把人们带入金色时尚的路演空间和以汽修厂为主题场景的办公区域。
Taking BMW X2 golden shell elements as the main line and the spirit of the opposite way to create a sense of spatial contrast, through a golden hidden stairs in order to bring people into the golden fashionable road show space and the office area who takes the automobile repair plant as the theme scene.
▼金色金属板楼梯在柔和的灯光氛围下从地下一层连通至二层,
golden metal plate stairs are connected from the ground floor to the second floor
in a soft lighting atmosphere.
▼楼梯间细部,stair well
▼洗手间区域细部,toilet area detail
▼B1轴测图,axon of the ground floor
▼1F轴测图,axon of the first floor
▼地下一层平面图,B1 plan
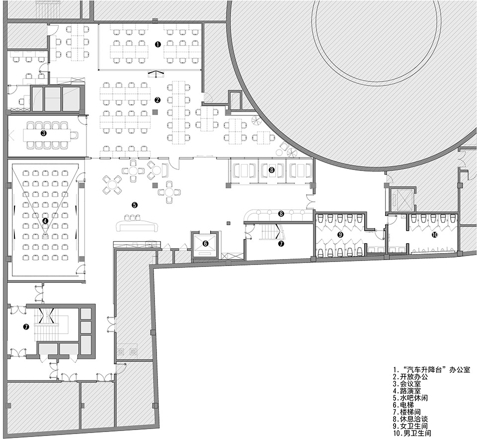
▼一层平面图,1F plan
▼二层平面图,2F plan
项目名称:BMW X2 PLAYGROUND @ 5Lmeet
设计公司:DAGA Architects大观建筑设计
设计团队:申江海、黄景宁、马炜煊
软装设计:共享际
项目类型:室内设计与改造
建筑面积:约1800㎡
设计时间:2018年4月
建造时间:2018年5月-9月
摄影师:五透
Project Information
Project name: BMW X2 PLAYGROUND @ 5Lmeet
Design company: DAGA Architects
Design team: Shen Jianghai, Ren Xiaowei, Xu Yunfei, Huang Da, Huang Jingning, Ma Weixuan
Soft loading design: 5Lmeet
Project type: Interior design & renovation
Covered area: about 1800㎡
Date of design: April 2018
Date of construction: May-September 2018
Photographer: Wu Tou
客服
消息
收藏
下载
最近








































