查看完整案例

收藏

下载
以咖啡和鸡尾酒著称的Grind餐厅在格林威治开设了一家新店,这也是其首次在伦敦1区以外的地方营业。充满现代感的色彩和细节将Grind的品牌精髓注入一栋历史悠久的建筑,为餐厅中别致的音乐、设计、咖啡、美食和鸡尾酒提供了迷人的背景。
Coffee-and-cocktail restaurant brand Grind has taken its inimitable offering outside of London’s Zone 1 for the first time with a relaxed and accessible venue providing a new all-day destination in Greenwich. Contemporary colour and detailing infuse the heritage building with the essence of Grind, setting the scene for its unique mix of music, design, coffee, food and cocktails.
▼餐厅外观,exterior view
这家新店旨在充分发挥自身的影响力,将Grind一贯的都市气息带入伦敦的城郊区域,吸引当地居民和来自各地的游客。该场地是Biasol为Grind设计的第12个项目,也是其中最具挑战性的一个项目。餐厅坐落在著名的格林威治市场对面的一栋遗产保护建筑内,曾经是Jamie’s意大利餐厅的所在地。为了保证新餐厅的良好声誉,设计团队谨慎地清除了旧餐厅的所有痕迹,仅完整保留了建筑本身的结构。
Greenwich Grind is designed to make an impact, bringing the inner-city Grind experience to the laidback London suburb and appealing to locals, visitors and tourists alike. The venue is Biasol’s 12th project for Grind and the largest and most challenging site to date. Located opposite famous Greenwich Market, Greenwich Grind is in a handsome heritage-listed building formerly home to Jamie’s Italian restaurant. In order to create a new venue with an equally strong reputation, we removed all trace of the previous restaurant, keeping the structural footprint intact.
▼外卖区入口,view to the entrance of the deli/takeaway area
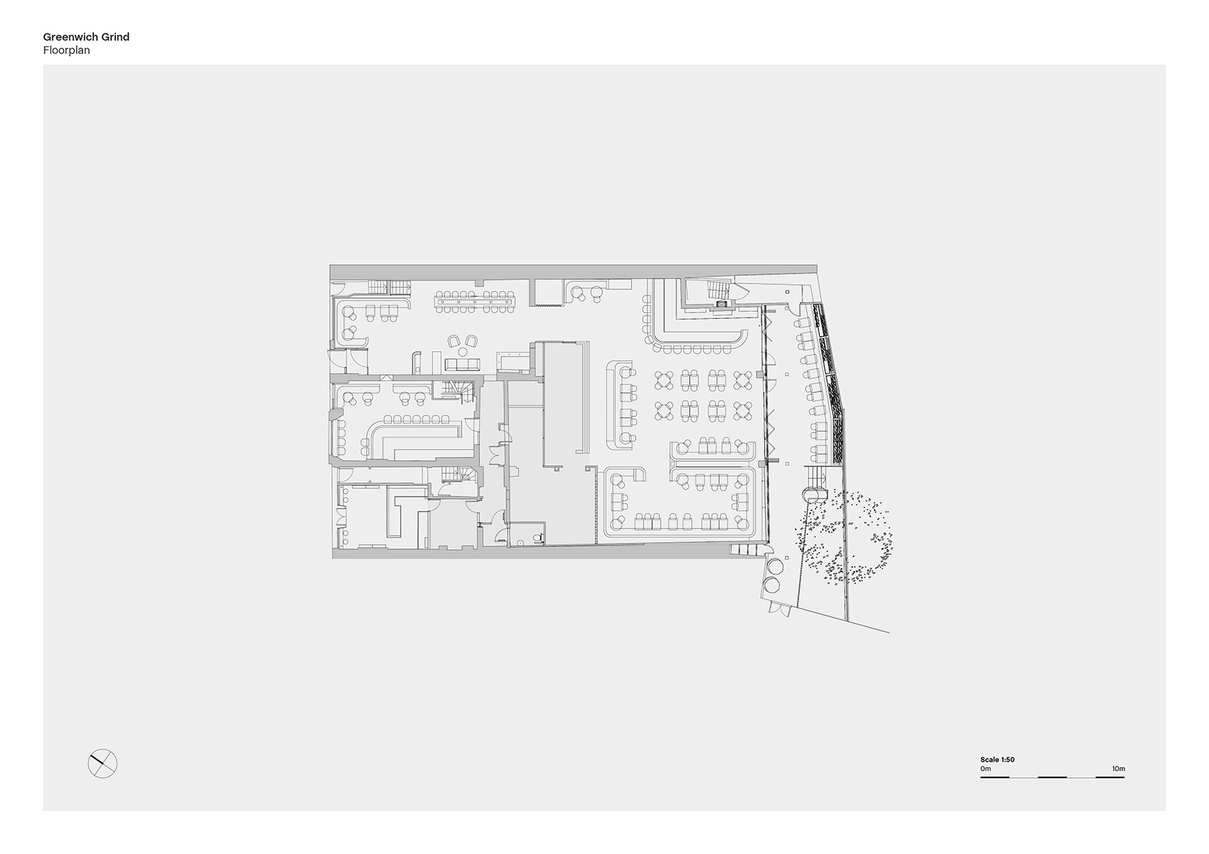
场地被划分为熟食/外卖区、鸡尾酒吧和用餐区三个空间,并将每个空间流畅地衔接在一起。这些空间在独立运作的同时相互配合,虽然拥有不同的美学特征,但共同构成了完整和谐的Grind餐厅体验。
The venue is divided into three spaces – deli/takeaway, cocktail bar and dining room – with an easy flow and operational connection between each. The areas function independently and together, each with distinct but complementary aesthetics for a holistic Grind experience.
▼餐厅平面图,floor plan
随叫随走的熟食/外卖区拥有专属的入口,为客人提供早餐和午餐,是一个设计有趣而大胆的空间,墙壁和天花板装饰以Grind标志性的粉红色。鸡尾酒吧是一个以绿色为主调的温馨空间。绿松石色的墙壁为吧台和窗边的精致座椅提供了背景。餐厅的正前方空间环绕着浅粉色的软垫长椅,带来舒适的就座体验。
The grab-and-go deli/takeaway has its own entrance. Open for breakfast and lunch, it’s a fun, bold space with Grind’s signature pink on the walls and ceiling. The Green Room is an intimate cocktail bar with a deep-turquoise-blue backdrop and elegant stools around the bar and window. Pale-pink banquettes wrap around the front of the restaurant providing lounge seating for bar and restaurant guests.
▼熟食/外卖区的墙壁和天花板装饰以Grind标志性的粉红色,the deli/takeaway with Grind’s signature pink on the walls and ceiling
▼货架细部,detailed view
▼鸡尾酒吧,the Green Room
▼绿松石色的墙壁为吧台和窗边的精致座椅提供了背景,an intimate cocktail bar with a deep-turquoise-blue backdrop and elegant stools around the bar and window
▼餐厅的正前方空间环绕着浅粉色的软垫长椅,pale-pink banquettes wrap around the front of the restaurant providing lounge seating for bar and restaurant guests
▼霓虹灯和混凝土墙壁,neon light on concrete surface
全天营业的餐厅设有各种类型的座位,包括共享餐桌、普通餐桌和长椅区。主要的用餐空间朝向一个露天区域,并带有一个玻璃屋顶的中庭空间。葱郁的绿色植物带来温室般的氛围,呼应了格林威治地区绿树成荫的环境。
The all-day restaurant for dine-in customers stretches the full length of the site with a variety of seating, including a communal table, dining tables and banquettes. The main dining room opens to an alfresco dining area, featuring a glass-atrium roof, whilst an abundance of greenery creates a conservatory-like space, evoking the leafy Greenwich area.
▼主要的用餐空间朝向一个露天区域,the main dining room opens to an alfresco dining area
▼吧台区,bar area
▼带有玻璃屋顶的中庭空间,dining space with a glass-atrium roof
▼植物掩映下的空间,space with an abundance of greenery
建筑的砖墙、混凝土墙和微妙的仿旧饰面共同带来丰富的纹理,材料、色彩和细节的处理简单而有自信。粉色的霓虹灯牌、磨砂大理石桌面和黑白马赛克地板无不为餐厅增添着独特而迷人的气质。
The building’s brick walls provide texture, as do the concrete-render walls and subtly distressed finishes. Materials, colours and detailing are simple and confident, with signature pink neon signage, honed marble tabletops and black-and-white mosaic flooring – with inlaid branding to capture those Instagram-worthy moments.
▼色彩和细节的处理简单而有自信, materials, colours and detailing are simple and confident
Grind餐厅将重新定义伦敦的餐饮社交场景。全天候的服务搭配独特的音乐、美食和饮料,在优美的玻璃屋顶下被完美地呈现出来。
Greenwich Grind is redefining the London food-and-beverage social scene. Offering something for everyone, the all-day, everyday destination brings Grind’s unique blend of music, design, coffee, food and cocktails under one beautiful glass-atrium roof.
▼黑白马赛克砖面,black-and-white mosaic flooring
▼室内立面图,interior elevations
客服
消息
收藏
下载
最近






























