查看完整案例

收藏

下载
这间书屋位于圣保罗,与现有主体建筑相连。设计师将其设计为一个可以工作、阅读、自我庇护的空间,并将书房空间延伸出一小部分,主要体块分为高度和长度都是2:1的两部分,设计师还在这个白色空间内使用了表面带有稻草纹理的木板。
Located in São Paulo, the library was designed in an existing space attached to the main house. The place, plus the program inspired us to create a working and reading space, a refuge, with a double right foot and a short stretch with a simple right right foot, guided us to create wood panels cuvered in straw in a room solely white.
▼书屋主体部分分为高度与长度均为2:1的两部分,the main space is divided into 2 parts with their height and length in 2:1
玻璃书架与墙面板采用同一支撑结构。木板做的门与墙面融合,保持连续性。设计师认为这种连续性能够塑造一个独立而内省的空间。通过这种方式,加强内部与外部的隔绝感。
Glass Shelfs are supported by the same structure of the panels. The doors are the wooden panels themselves, however, they are comouflaged in a way that doesn’t lose it’s continuity. We believe this continuity helps create a space of isolation and instrospection. In this way, the feeling of isolation from the outside world is steep.
▼木板门与墙面融合,保持连续性,the wooden doors keep continuity with the wall
▼玻璃书架与墙板共享同一支撑结构,glass shelfs are supported by the same structure of the panels
自然光线从两倍高空间的天窗中照射进来,人工光源与墙面板结合形成背射光。光源设置自动遥控系统,可以按照不同的需求调整如:阅读、工作。
The library has a natural light through openings in the space with double right foot. The artificial light that is integrated with the panels also back-lit.Has an automated remote control system that allows the creation of several scenarios: For reading, work, etc…
▼自然光线从两倍高度空间的天窗照射进来,the library has a natural light through openings in the space with double height
▼人工光源从后部照亮墙板,the artificial light that is integrated with the panels also back-lit
家具都是由设计师专门为书房设计的,如杂志架、抽屉和桌子。另外,设计师也挑选了一些其他设计师的作品如Giulio Cappellini,、Front Design、Werner Aisslinger和艺术家Anish Kapoor,它们一起完美地融入到项目中。
The furniture was developed by us exclusively for the library, as the magazine support, drawer and table. We also chose pieces by designers such as Giulio Cappellini, Front Design, Werner Aisslinger and works by the artist Anish Kapoor which fir perfectly into the project.
▼内部家具都是专门为书房设计挑选的,the furniture was developed or selected exclusively
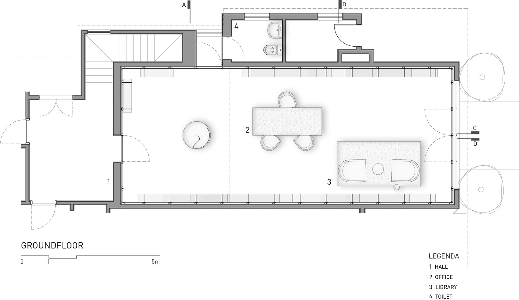
▼平面,ground floor
▼A-D剖面,section A-D
Location: São Paulo, Brazil
Project Start: 12/2016
Construction Start: 08/2017
Project Finish: 03/2018
Site Area: 60 m²
Status: Built
Project Type: Interior
Architecture: Pascali Semerdjian Architects
Team: Domingos Pascali e Sarkis Semerdjian, Linda Matolli, Lucas Florentino
Interior: Pascali Semerdjian
Contractor: JPB engineering
Lighting: La Lampe
Metal Works: Star Inox – Table structure
Carpenter: Exito Mais – Panels
Florring: Epoxy Painting ( No specific brand)
Marble: Galeria della Pietra – Onix
Finishes: Vidros Queiroz
Photography: Ruy Teixeira
客服
消息
收藏
下载
最近




























