查看完整案例

收藏

下载
该啤酒厂位于布拉格住宅区的边缘,享有毗邻的高尔夫球场的景观视野,距离Praha – Horní Měcholupy火车站很近,可直接步行到达。Hostivar H2啤酒厂是Hostivar一号啤酒厂的兄弟厂,二者距离1km。
The brewery is located at the periphery of a Prague residential area with a view of the adjacent golf course. It is in direct pedestrian relation to the railway station Praha – Horní Měcholupy. The Hostivar Brewery H2 is the younger brother of Hostivar Brewery 1 that lays about 1 km away.
▼啤酒厂外观,exterior view
建筑平面布局呼应了酒厂的不规则造型。啤酒厂的一层外立面采用木制覆层,而在二层,则使用黑色金属板覆层。在某些重要的部位,立面采用玻璃材料,以打开酒厂的视野,使客人们能够看到餐厅或者酿酒的空间。餐厅的露台朝向花园,夏季来临时,啤酒厂便可以为客人提供一个小酒吧和室外花园就餐区。
▼啤酒厂外观,具有不规则的造型,exterior view of the brewery with the uneven shape
▼啤酒厂外观,一层采用木制覆层,二层采用黑色金属板覆层,exterior view, the brewery has wood cladding on the first floor, while black sheet metal cladding on the second floor
▼啤酒厂外观,局部采用玻璃立面,人们可以看到酿酒空间,exterior view, in key moments the facade is glass to provide a view of the brewery space
The shape of the floor plan is influenced by the uneven shape of the parcel. The brewery’s facade had wooden cladding, replaced with black profiled sheet metal cladding. In key moments the facade is glass, opening the view into the restaurant or the brew house. The restaurant terrace is oriented into the garden where in summer we can find a small taproom and outdoor garden seating for the guests.
▼啤酒厂外观,exterior view
▼啤酒厂外观,拥有一个朝向花园的餐厅露台,exterior view, the brewery has a restaurant terrace which is oriented into the garden
啤酒厂一层的大部分空间都是酿酒空间。与酿酒空间相邻的是一间餐厅和厨房。建筑师将餐厅的入口嵌入了啤酒厂的主建筑体量的墙壁之内,可通过一个类似于大堂的空间到达。餐厅内部由两层空间组成。一层空间的主要特点是一个银色金属板覆层的吧台和一个圆柱形火炉空间。客人们可以通过一个钢制螺旋楼梯达到餐厅的二层。深色的木制饰面从上至下覆盖着餐厅两层空间的一侧墙体,使其独具特色。与此相反的是,建筑师在其他墙面上使用了白色穿孔石膏板,有助于吸音,从而打造出一个拥有良好的声学环境的用餐空间。
▼餐厅一层室内局部,设有圆柱形火炉空间,partial view of the restaurant 1F with the stove fire place
▼餐厅一层室内局部,设有通向二层的钢制螺旋楼梯,partial view of the restaurant 1F with the steel spiral staircase leading to the restaurant 2F
▼餐厅一层室内局部,采用白色穿孔石膏板墙面,有助于吸音,partial view of the restaurant 1F with the white perforated plasterboard surface of the walls that helps with the acoustics of the space
▼餐厅一层银色金属板覆层的吧台,the bar with silver profiled sheet metal cladding on the restaurant 1F
On the ground floor, there is most of the brewery’s operations. Directly linked with it is the placement of the restaurant and its gastronomy processes. The restaurant entrance is from a lobby, embedded into the mass of the building. The restaurant’s interior consists of two floors. The bar with silver profiled sheet metal cladding and stove fire place dominate the ground floor. Access to the gallery on the second floor is by a steel spiral staircase. A distinctive element of the interior is the dark wooden cladding that runs through both floors. In contrast to which there is the white perforated plasterboard surface of the walls that helps with the acoustics of the space.
▼餐厅二层,墙面采用深色木制饰面,restaurant 2F with the dark wooden cladding
▼餐厅二层局部,partial views of the restaurant 2F
▼通向餐厅二层的钢制螺旋楼梯细节,details of the steel spiral staircase leading to the restaurant 2F
餐厅与半室外的供暖露台直接相连,这个露台采用玻璃围合结构,并配有塑料卷帘,当有需要的时候,可以将拉下卷帘,将露台与外部环境分隔开。
The restaurant is directly connected with the heated terrace which is partially glass, with areas that can be separated from the exterior by a plastic roller blind.
▼半室外供暖露台,采用玻璃围合结构,the heated terrace which is partially glass
▼从供暖露台看餐厅入口,restaurant entrance viewing from the heated terrace
在啤酒厂的二层,设有大规模面包生产线、行政空间和酿酒空间。
On the second floor there is the mass production bakery, administrative spaces and space for the brewery.
▼酿酒空间,the brewery space
▼总平面图,site plan
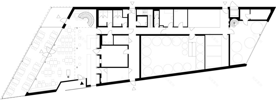
▼一层平面图,1F plan
▼二层平面图,2F plan
▼立面图,elevations
客服
消息
收藏
下载
最近




































