查看完整案例

收藏

下载
Canton East Tower Office Design
© 汤物臣·肯文创意集团
「万物皆有
裂痕
那是
照进来的地方」
Position | 项目地理位置
地点:广州琶洲保利馆
面积:228㎡
内容:2022 广州设计周贝克洛门窗展
Location: PWTC Expo, Pazhou, Guangzhou
Site Area: 228㎡
Content: 2022 Guangzhou Design Week Bucalu Window - Door Exhibition
Exhibition Duration: 4 days
2023 年 3 月 3 日,以“热爱 PASSOON”为主题,为期四天的 2022 广州设计周在广州保利世贸博览馆、广州国际采购中心和南丰国际会展中心三大展馆同时拉开帷幕。疫情过后的广州设计周首个开展,观众迎来了爆发式增长。
On March 3, 2023, the four-day Guangzhou Design Week with the theme of Love PASSION kicked off at the three major exhibition halls. After the COVID-19, Guangzhou Design Week was held for the first time, and the audience ushered in explosive growth.
Design Concept
THE LAND OF MYSTERY
在广州设计周的十几年间,我们发现许多展厅因为视觉混乱,导致视觉喧宾夺主,甚至与自身品牌毫无关联,无法传达品牌自身的理念,且缺乏整体体验,没有展览导向性。
In the more than ten years of Guangzhou Design Week, we found that many showrooms were visually chaotic and even had nothing to do with their own brand, and could not convey the brands own philosophy. And there is a lack of overall experience and no exhibition orientation.
△ 贝克洛展厅视频展示
应对本次设计周中贝克洛门窗展厅的需求,我们提出需要“反传统”“差异化”,以“秘林之境”为空间策划主题,打造一场沉浸式体验展览,展示的不止产品,还有对品牌价值观的输出,对产品在场景运用中的探讨,和对空间艺术性的表达。
In response to the needs of the Bucalu showroom in this design week, We propose anti-traditional and differentiation. With the theme of The land of mystery as the theme of space planning, create an immersive experience exhibition, showing not only products, but also the output of brand values, the discussion of products in the use of scenes, and the expression of space artistry. The Secret Garden
△ 犹如秘密花园
当你推开花园的门,阳光洒进花园,为心灵带来春天,心底的花朵也终将悉数开放;而当你合上花园的门,天地为你寂静,你所有的小情绪都只会在你的几尺之间流动,尽享宁静时刻。
When you open the door of the garden, the sunlight shines into the garden, bringing spring to the soul, and the flowers in the heart will finally full bloom; When you close the garden door, everything will silent for you, and all your little emotions will only flow between a few feet of you. Enjoying the moment of tranquility.
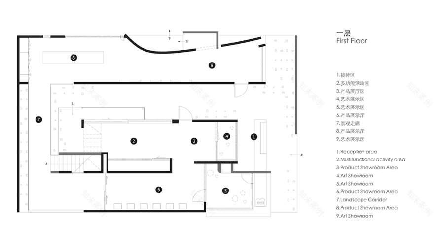
△ 展厅一层展示区
△ 平面图 Plan
我们通过对空间走道、产品展示区、景观装置的合理规划,在二层增至一个 VIP 接待区,形成一个相对独立且私密的空间,形成一个游走的体验动线,让观展人带着探索欲体验展厅。通过游走路线串联各个体验空间,犹如身处在秘密花园。
Through the reasonable planning of the space walkway, product display area, and landscape installation, we increased to a VIP reception area on the second floor, forming a relatively independent and private space. Form a moving experience line, allowing visitors to experience the showrooms with a desire to explore. As if you were in a secret garden.
森林印象
△ 仿如置身于森林之间
敬畏出于知识的升华、超越。自然本身是变易的,未来是开放的,人与自然组成的系统也是变化的,我们的每一行动都将塑造我们的大自然——盖亚。
Awe is born out of the sublimation of knowledge, of transcendence. Nature itself is fallible, the future is open, the system composed of man and nature is also changing, and every action we take will shape our nature - Gaia.
展厅外立面用了材料装置营造犹如置身森林的感觉,通过森林的营造,创造空间景观和体现环保概念。贝克洛十年实践节能百分之 20-30,相当于每年每户种植 4 棵树。
The façade of the exhibition hall is made up of material installations that create a sense of being in a forest. Through this form of expression, a spatial landscape is created and the concept of environmental protection is reflected. Bucalu achieved 20 ~30 percent energy savings in ten years, equivalent to planting 4 trees per household per year.
边界之间
边界之间,意在打破规则、定义、概念背后的多重维度,通过艺术去探讨“边界之间”的不确定地带。将无形定格成有形,释放无相至万象,触及现实和虚拟的边界。
In between means in breaking rules, definitions and concepts. Exploring the uncertain terrain of “in between” through art. Turning the intangible into the tangible, touching on the borders of the real and the virtual.
△ 通过游走路线串联各个体验空间
物理边界:引入大型建筑的设计手法,通过空间构成、光影营造、虚实建构的模式,让大家沉浸其中,打造出一个既有封闭性同时又有开放性的渗透空间,强调出品牌对于材质、空间、人居环境的多种思考,从而激发人们的探索和参与的意愿。
Physical: The design approach of large-scale architecture is introduced to immerse everyone through spatial composition, light and shadow creation, and virtual and real construction. It emphasises the brands diverse thinking on materials, space and habitat. This will inspire people to explore and participate.
感官边界:打破原有传统陈旧的展陈方式,强调用户的体验感与互动性。参观者的体验方式包括光影、景观、气味、质感、声音。从感官体验去感受品牌产品性能特点,强化展厅和品牌之间的联系。
Senses: The exhibition is a break from the traditional display style, emphasising the user experience and interactivity. The visitors experience includes light, shadow, landscape, smell, texture and sound. The brands performance characteristics are experienced through the senses. Strengthen the link between the exhibition hall and the brand.
建筑边界的意义往往是赋予空间形状,并组织建筑内外的运动和体验。我们应本着以人为本,以光为媒,扎根自然,共寻城市里的森林。
The significance of the boundary of a building is to give it spatial shape and organise the experience inside and outside of the building. We should put people at the centre, light as a medium, rooted in the nature, and find the forest in the city together.
在建筑的边界之外,还有森林和光。
Beyond the borders of the buildings, there are forests and light.
项目信息
ABOUT THE PROJECT
秘林之境(贝克洛门窗广州设计周展厅):
项目名称 | 广州设计周-贝克洛门窗展厅
摄影 | 黄早慧
客服
消息
收藏
下载
最近




































