查看完整案例

收藏

下载
空间_
家,有着抽象的、精神上的意义。
除维系自然的亲密感之外,也是我们内在心灵的安放之所,体现着居住者个人独特的性格、审美与情致。
空间以柔和的白色与灰色为基调,加入木纹营造素雅静谧的空间感受,打造浑然天成的隐雅氛围。
通过“减少”设计元素,去强调自然生活的深刻意义
当光影的描摹变为具象的时间记忆,当框架的纵横交错变为固定的场域理解,我们对家的印象被分散在日复一日的时间波动中。
去细细揣摩每一件材质的肌理,感受脚底毛绒地毯与冷冽瓷砖的不同,感受手中摩挲的木与金属,听布料与皮质沙发摩擦的簌簌声响,打量阳光下,灰尘缓缓沉积的样子……这些,都是关于家的记忆沉淀。
人在其中行走的痕迹被轻易捕捉
结构呈现着棱角分明的线条,将空间切割出极富层次的锐利感,然后在软装的选择中,通过柔和的曲线与温润细腻的材质,恰到好处地达成平衡,空间蕴着内敛的力量,呈现着现世安稳的畅意美感。
透明的内外界限。
探讨空间所能给予人的精神内蕴
阳光漫入,经雪柳的枝条,打散成细碎的光影,翩然跃动,似一幅动态的图景,诠释生活最自然温情的样貌。
主卧联通更衣室,形成套房式结构,半敞开的关系引起流动性的线性表达,大面积木纹的使用,更是将空间的属性,引领向自然且温和的角度。
既敞开地表达了无界的场域思考,又满足互为渗透的家庭空间使用习惯。
当内敛的东方意蕴,传递入现代都市的起居生活,简而有致,叠中有透,是国人始终追寻的美感表达。
将处世哲学渗入结构肌理之中
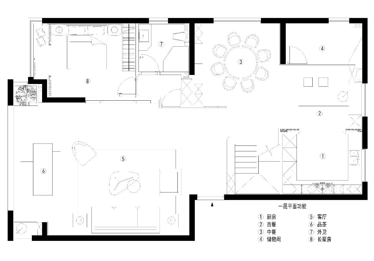
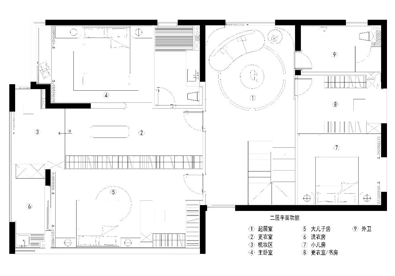
项目平面图
项目信息
项⽬名称 | 素绘
设计公司 | 温州原界装饰工程有限公司
项⽬地点 | 浙江·温州
项⽬⾯积 | 270㎡
主案设计 | 王瑜
设计时间 | 2022.04
完⼯时间 | 2023.03
项目摄影 | 吴昌乐
主要材料 | 岩板、橡木、艺术漆
主案设计
王瑜 Peter
高级室内设计师 从业20年
温州
原界装饰工程有限公司
专业从事高端住宅 别墅顶级空间设计
“设计创造的不仅是空间或陈设,
而是要为主人创造一种舒适的环境及体验”
客服
消息
收藏
下载
最近











































