查看完整案例

收藏

下载
今天分享的这套公寓位于乌克兰基辅,由两层空间组成,共200㎡,设计师十分注重设计细节,用纯粹的材质和温馨的色调打造出空间的静美与艺术感。
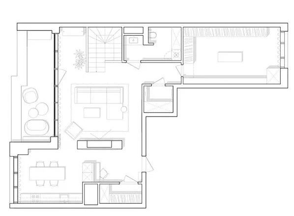
▲顶层平面图
▲首
平面图
室内
玄关与客厅相互连接的过道上,用一幅艺术挂画自然衔接,原木画框与室内的木色相互呼应,将原色的美感彰显得淋漓尽致。
客厅的基调简约而高级,搭配布艺沙发和浅灰色地毯,给人舒适轻松的氛围感,石材纹理的茶几和砖红色边几的搭配,又显得格外有艺术感。
客厅的灯具也十分别致,选型新奇而有个性,天花造型格外精致,边顶设计与线条的勾勒相互融合,凸显出空间的高级感。
墙上的壁灯简约而时尚,球形灯泡和黄铜材质相结合,十分具有现代感。
客厅背景墙用瓦楞原木整体打造,并与置物架的设计相互结合,既具有层次感又不乏美感,整个区域在木色的渲染之下,显得非常纯粹和温馨。
空间的一隅摆放着一把墨绿色的绒布单椅,显得优雅而高贵,与墙上的壁炉相互映衬,营造出一种宁静而平和的空间气息。
餐厨空间相对独立,无论是材质还是灯具的选配,都延续整体空间的调性,浅灰蓝的色调与原木的结合,使整个区域显得格外独特。
通往首层的楼梯十分别致,涂料饰面的墙体与原木扶手相结合,显得纯粹而自然,木材的纹理清晰可见,将居者原始本色的生活态度彰显出来。
楼梯的踏步悬挑固定,减轻其体量感之余,又可以将光线尽量地引到楼下空间,功能性与美感兼具。
到达首层后,设计师设计了一个艺术廊道,将各个卧室空间有序地分布,宽敞的过道颇显大气感,尊享性十足。
大型艺术挂画的点缀,让整个区域的氛围感顿时提升,色彩的调和衔接自然,抽象的画风,给空间赋予了情感色彩。
此层共有三个卧室,其空间调性和谐而统一,既有自己的个性,也具备相似的氛围感和艺术感,材质与色彩也相互呼应。
主卧的背景用浅调的灰蓝墙布打造,别致的图案造型使整个空间显得十分耐人寻味,原木的肌理感又彰显出自然纯粹之感,给人一种轻松的感觉。
全身镜用黄铜金属作框,就像是挂在墙上的艺术品一样,时尚而个性,球形的艺术吊灯又与公区的灯具选型相互呼应,过渡十分自然。
主卧带有独立卫浴空间,给居者提供便利性之余,也强化了空间的使用价值。
台盆区与马桶区的墙面用白色小砖饰面,显得复古而经典,柜体则用原木打造,深浅色调相互对比,空间氛围十分温馨。
浴缸区则用粉色小砖饰面,天花、墙面和地面一体打造,颇具空间仪式感,在灯光的渲染下,显得现代感十足。
次卧的设计也别具一格,硬装造型延续整体空间的基调,家具的选配和色彩的运用又独具特色。
卧室的空间也做了适当的分区,书房区与睡眠区相互独立,空间之间相互共享,显得大气而实用。
应用相同色系的灰蓝调渲染出空间的纯粹与静美,再搭配艺术落地灯和时尚单椅,让整个空间具备其本身的语言符号,在光线的晕染下,显得格外高级。
空间的气息也显得非常清新,应用稍浅的灰蓝调艺术涂料和原木材质相结合,再延续整体的圆弧形元素,植入到挂饰和灯具之中,显得十分的和谐和纯美。
窗台边设计飘窗区域,既方便收纳置物,又结合了榻榻米的功能,打造出舒适而实用的休闲空间。
另一个次卧则用更加清新的色调来打造,采用纹理细腻色泽温润的原木,将柜体和床头背景整体打造,给人一种温馨自然的质感,同时又与深蓝色的床体形成鲜明的对比。
书桌区的打造也十分考究,悬挑的柜体现代感十足,一侧的墙面背景设计更是别出心裁,抽象的几何线条勾勒出美感,给人充分的视觉享受。
卫浴空间的设计也加入了一抹纯致的克莱因蓝,给人耳目一新的感觉,在白色小墙砖的映衬下,显得更为别致和时尚。
烤漆的柜体
表面与
墙砖的反射相互
结合,又平添了一份现代质感。
墙面造型没有多余的修饰,显得干净而整洁,整体色调浑然一体,让空间显得十分干练,静美与纯粹的质感再次被体现。
设计:
Yevheniia Dubrovska, Valeria Rezukova
地点:
乌克兰 基辅
客服
消息
收藏
下载
最近


























































