查看完整案例

收藏

下载
Paloma办公楼的建筑设计概念主要有两个指导方针,即合理设计室内空间与建筑场地之间的关系:在本案中,室内空间通向基地周边的外部环境,而场地的限制也要求本项目能够为该区域创造一个地标性建筑。这些充满挑战的环境设计要求使建筑师将建筑空间结构以及疏散路径尽可能地设计在建筑外侧,从而充分利用基地的尺度特点。建筑师希望强调该办公楼的高度,同时通过模块化的外立面来消减其比例大小。因此,由所有立面单元的网格状图案所组成的韵律感创造出一个动态连续的网格,同时隐藏了每层空间的高度和楼板。最终,这些模块化的立面单元成为了一系列沐浴在阳光下的私人壁龛。
▼建筑外观,Paloma办公楼是该地区的地标性建筑,exterior view, Paloma Offices building is a landmark for the area
There are two main guidelines for the architectural concept of Paloma Offices: the connection between the interior space that flows into the surrounding exterior and site constraints that generate the need to create a symbol for the area. The challenging requirements of the context led us to design the structure and escape paths towards the outer sides of the building, taking full advantage of the plot’s dimensions. We aimed to emphasize the building’s height, concealing its proportions by dividing the façade into modules. The rhythm of the cell grid pattern creates a dynamic continuous mesh, without indicating the height of each floor. As a result, the cells become sun protected private niches.
▼建筑外观,使用模块化的外立面,其韵律感创造出一个动态连续的网格,exterior view, the building uses modular facades and their rhythm creates a dynamic continuous mesh
这时,办公楼的外立面就成为了一个观景台、一个宜居的空间,一座室外楼梯环绕着建筑外立面,盘旋向上。画廊的顶部则是一个更大的开放式露台,在这里人们可以欣赏到广阔的城市景色。沿着室外楼梯行走,人们可以欣赏到沿途的景色,这种观景的模式就好比拼图一般,随着流线的前进,人们可以将所有的景观碎片拼凑成一幅美丽的城市全景图。
The façade becomes a belvedere, an inhabited space through the exterior staircase that embraces the building. The gallery culminates with a larger open terrace that offers extensive views of the city. All the fragmented views collected along the route are pieced together like a puzzle in this complete panorama.
▼外立面局部,一座室外楼梯环绕着建筑外立面,盘旋向上,partial exterior view, an exterior staircase embraces the building
▼外立面局部,模块化的外立面消减了建筑的比例大小,隐藏了每层空间的高度,partial exterior view, modular facades conceals buildings proportions without indicating the height of each floor
▼外立面局部,绿色楼梯为外立面增加了颜色点缀,partial exterior view, green staircase adds color to the building
此外,为了使建筑更加醒目,建筑师在外立面上增加了颜色作为点缀,这些颜色就好比滤镜一般,使建筑在其环境中脱颖而出。颜色不仅可以作为室外空间的遮挡和掩饰,甚至还可以改变建筑的外观。
We attempted to solve the issue of poor illumination on the site by introducing a filter: color. Color can obturate, camouflage or even transform the exterior.
▼从下向上看建筑,外立面富有韵律感,looking up the rhythmical facades
▼建筑下层空间,底层空间略微向内倾斜,lower levels of the building, the exterior facades are slightly inclined inward
▼建筑下层空间,绿色的室外楼梯盘旋向上,丰富了建筑外立面的造型,lower levels of the building, the green exterior staircase spirals upwards, enriching the facade
另一方面,本项目的基地位于两条环境不同的重要街道之间。在这种情况下,“前”“后”立面变成了一个相对的概念。办公楼上层空间的露台就像是潜望镜,将不同的城市景观送到了人们的眼前,从这个角度来讲,这座高而窄的建筑的基本朝向是非常合理的。值得一提的是,Paloma办公楼已经成为了该地区的地标性建筑。
On the other hand, the plot is located between two streets of different importance. In this situation, “front” and “back” become relative terms. The cardinal orientation of this tall and narrow building is justified by the upper terrace that acts as a periscope. The Paloma building becomes a landmark for the area.
▼绿色的室外楼梯细节,details of the green exterior staircase
▼屋顶平台夜景,可在此欣赏广阔的城市景色,night view of the roof terrace which offers extensive views of the city
▼室外楼梯夜景细节,details of the night view of the exterior staircase
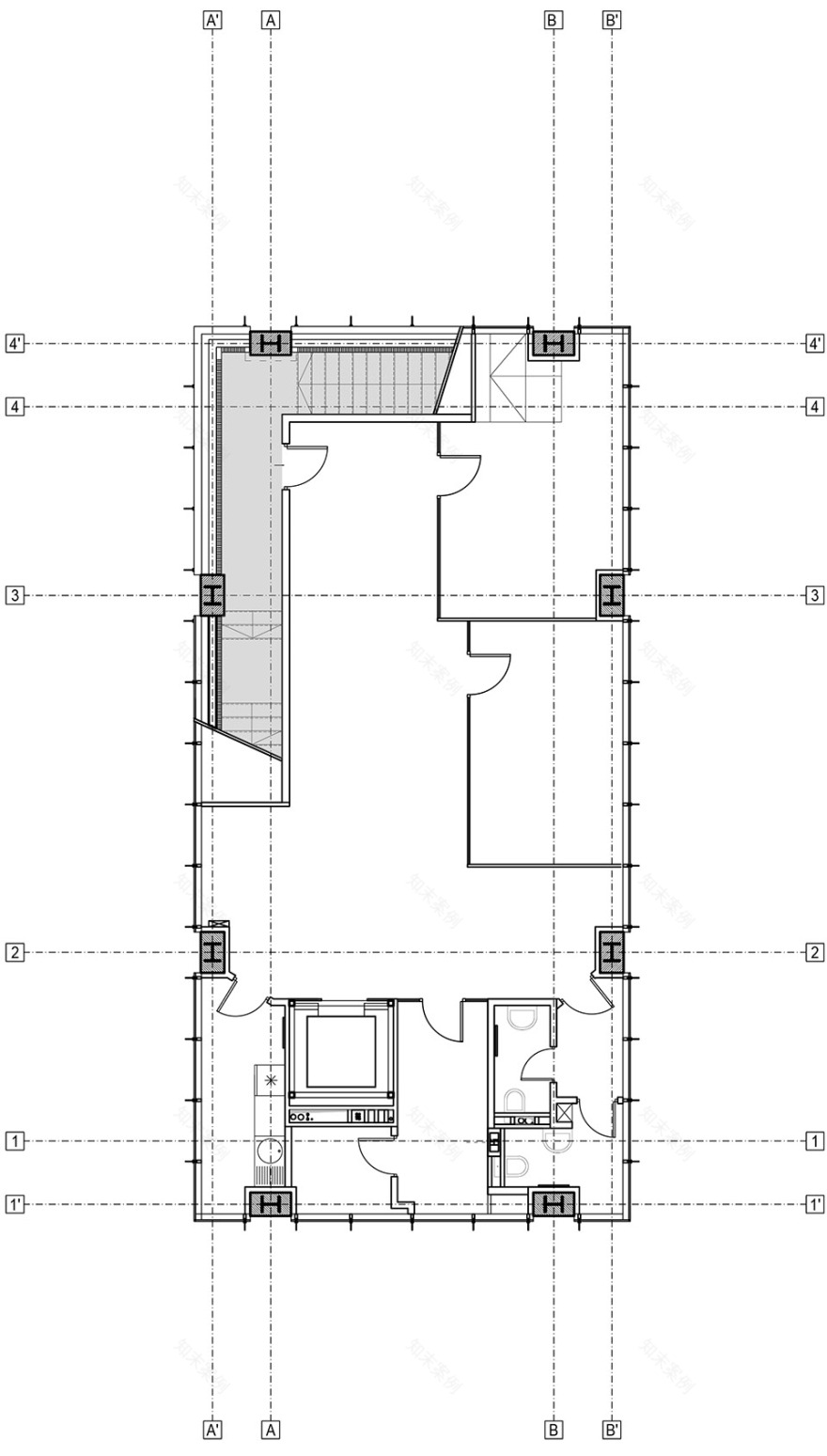
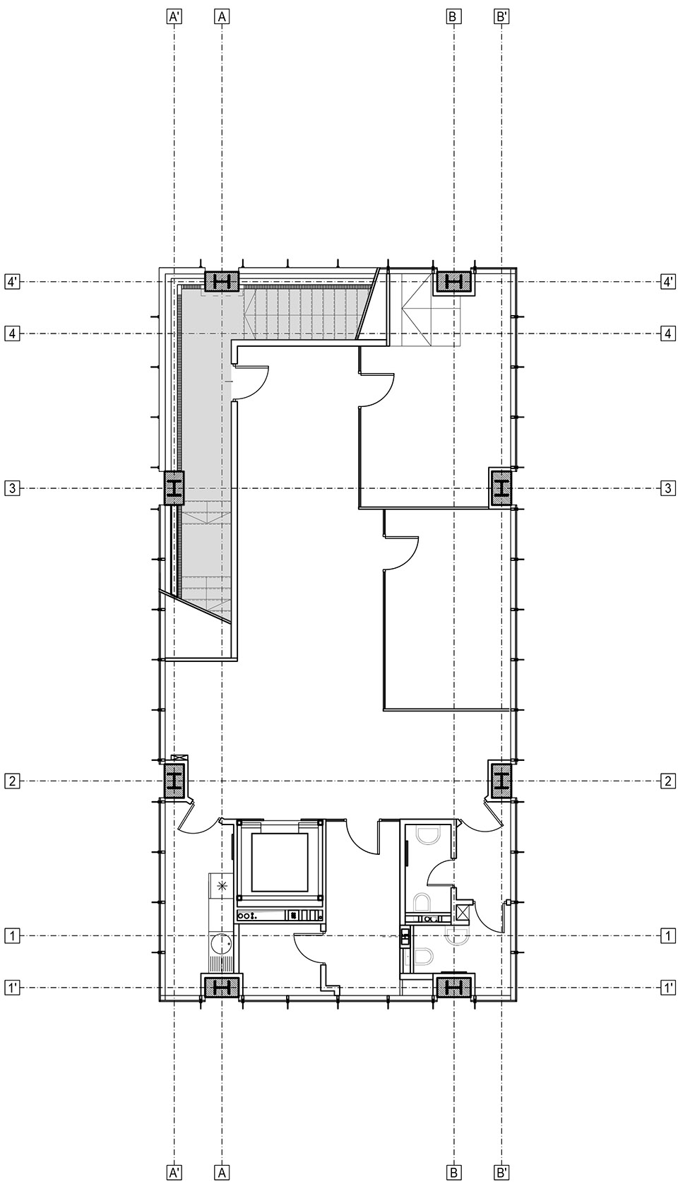
▼平面图,floor plan
Architecture: CUMULUS (arch. Liviu Zăgan, arch. Costin Beekman,
arch. Alexandra Nicolau)
Photography: Andrei Mărgulescu
Area: 845 mp
Location: Soldat Gheorghe Matac Street, no 31, 2nd county, Bucharest
Status: built 2017
客服
消息
收藏
下载
最近


















