知末
知末
创作上传
VIP
收藏下载
登录 | 注册有礼

110㎡三居室,很有品味!

2020/04/04 06:00:48
查看完整案例
微信扫一扫
收藏
下载
110㎡三居室,很有品味!-0
雅致空间
Natalia Kurlygina
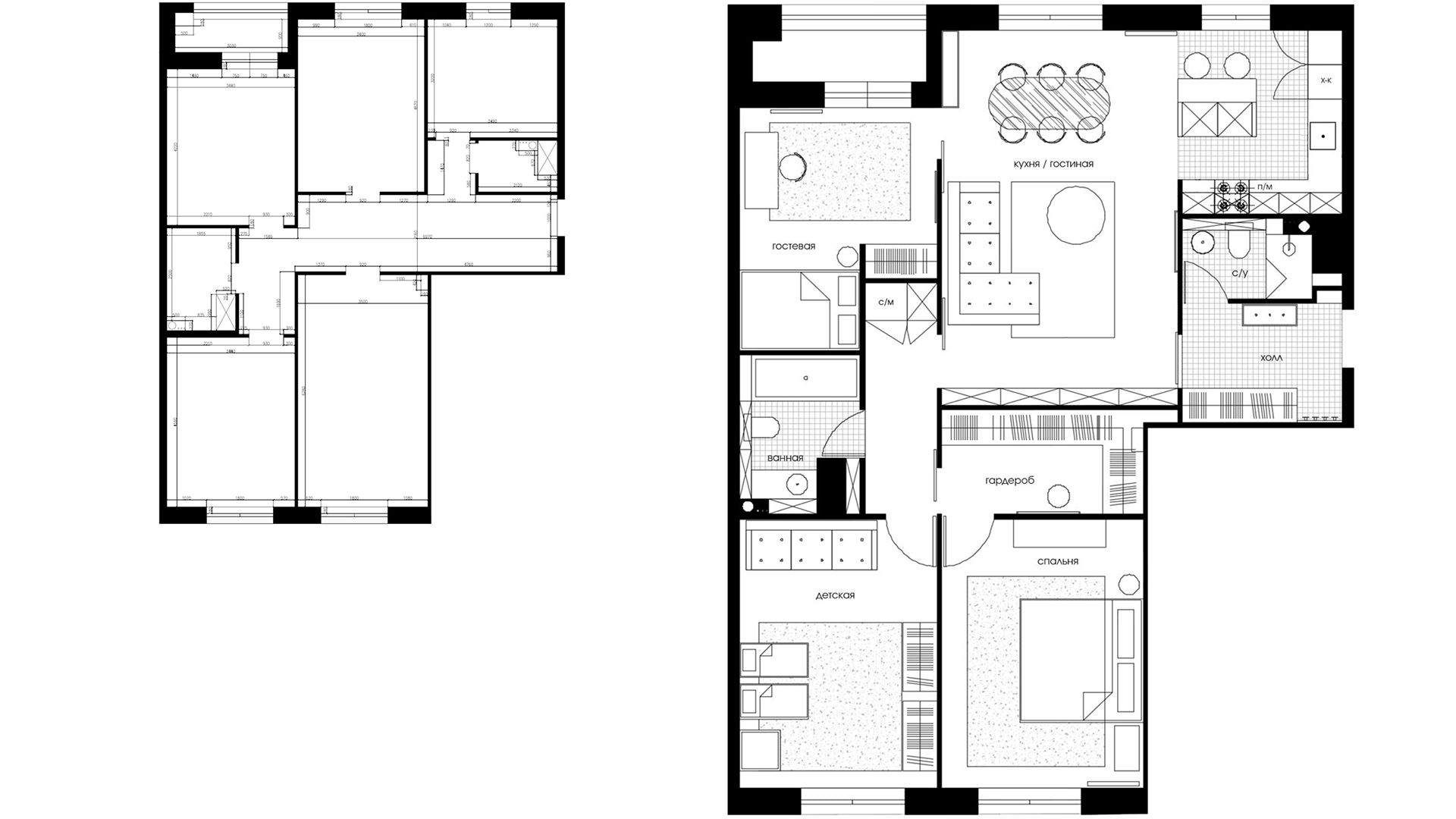
新作,面积110㎡
,业主一对有两个小孩的年轻夫妇。设计师的任务是最大限度的使室内空气和光线充足,这使得光线甚至可以进入最黑暗的区域——走廊和大厅。
110㎡三居室,很有品味!-5
空间布局
110㎡三居室,很有品味!-7
形成了
110㎡三居室,很有品味!-9
110㎡三居室,很有品味!-10
110㎡三居室,很有品味!-11
110㎡三居室,很有品味!-12
110㎡三居室,很有品味!-13
在厨房、走廊和浴室的地板上,铺设了大理石磁砖。天然橡木地板与清晰的树木纹理有助于创造一个舒适的空间。有许多存储系统,但都是内置和合并的墙壁颜色。
110㎡三居室,很有品味!-15
110㎡三居室,很有品味!-16
110㎡三居室,很有品味!-17
110㎡三居室,很有品味!-18
110㎡三居室,很有品味!-19
110㎡三居室,很有品味!-20
110㎡三居室,很有品味!-21
110㎡三居室,很有品味!-22
110㎡三居室,很有品味!-23
南京喵熊网络科技有限公司 苏ICP备18050492号-4知末 © 2018—2020 . All photos and trademark graphics are copyrighted by their owners.增值电信业务经营许可证(ICP)苏B2-20201444苏公网安备 32011302321234号
客服
消息
收藏
下载
最近