查看完整案例

收藏

下载
望岛
MOK DESIGN
一半是山,一半是海,岛湾相抱、鸥影翩翩。山石、海岸、滩涂,日落跌进海里,望无名之岛。售楼处设计以海为主题,海浪艺术装置从金属接待桌中“跃出”,给人临礁望海之感,涛声拍浪,仿佛暗藏风起鱼跃,给空间注入无限生气。搭配的玻璃屏风保证场所的通透质感,灯光下螺旋阶梯引导着入门顾客的视线,山海望境在此徐徐展开......
“三口之家”
“三代之家”
“藏繁于简”
△点击观看视频△
取 · 精致优雅的格调
舍 · 烦闷忙乱的步调
Abandon the boring and busy pace
Refined and elegant style
*01 曲直 动静
2401 户型以“环境”与“自然“共存为核心,回溯威海卫的历史沿革,将“威震东海”之“直”揉进“海纳百川”之“曲”,解码为空间的直线与家具的弧线,连结空间的动与静,重塑对快城慢趣、享受闲暇生活的定义,带来高贵宁静的视觉享受。
客厅是生活核心,为了与大自然形成链接,透过天然微水泥的纹路质感搭配高级翡翠绿石材,隐约的与木地面自然结合起来,打造出一片自然悠哉却不失优雅的环境。ALKY CHAIR(山丘椅)如一块起伏的山丘屹立于此,线条流畅,立体整洁,雪球钓鱼灯犹如海上明月,丰富的线条形成深浅过渡的层次,依“山”傍“海”,有“风”清“月”朗,只缺一好友,一壶酒,空间故事细腻呈现,带来现代人浪漫高贵的品质生活。
大地色基调的质感皮革餐椅和圆滑餐桌,与最柔和的自然光结合,在云朵般金属吊灯的映照下,开启一场华丽低调的盛宴。
在茶室的规划中,设计师将日本的“囲炉裏”设计、首尾相扣的自在钩与飘窗相结合,茶釜在上、饮茶者在下,宁静与“冥想”相互链接,思想的厚重,心绪的轻盈,将此处空间自然分为上下两层,形成颇富趣味的禅意空间。
多功能书房的书架,打破常规设计,采用颇具“类型学意味的构造,通过不同朝向的黑色镂空方块进行组合,在空间中形成无序变化,增加意外感的同时,仿佛向来者展示主人的“思想”,让书房呈现出近似展厅的视觉效果。
*02 简奢 雅致
走入主卧空间,宁静和谐的气氛扑面袭来,洞石与原木元素搭配平整的天花,圆弧的天花床头尾端渐渐滑下,丰富的光影层次来自“垂落”的优雅丝带灯饰,为平静生活带来浪漫私密的空间感受。
这里延续着大地色调的气息,墙身上的简约线条,像是林中竹木,为现代人提供一份向往自然,舒缓身心的睡眠环境。
儿童房同样纳入大地温和色系、木质元素和弧线来构建纯真与舒适的空间。日食壁灯与客厅的“月”相呼应,从那边升起,在这里落下,渲染出一种连贯空间的童话氛围。
木制洞洞板收纳墙成为卧室的点睛之笔,其可塑性为室内立面带来无尽可能,工作室般的氛围也强调了对儿童动手能力和创造性的培养。
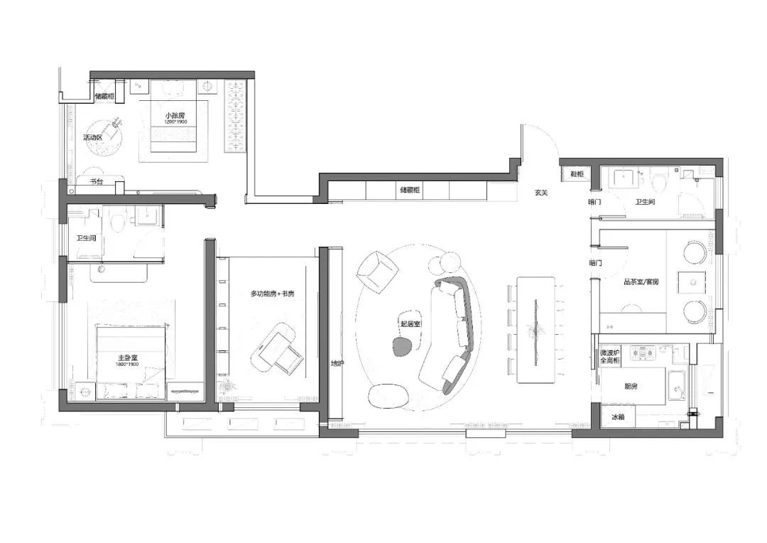
两室、一厨、两卫的布局,满足着三口之家的需要,客厅、书房、茶室的巧妙布置,也体现了山东社交型家庭亲密而闲适的生活模式,为其高端的生活方式加上了雅致的注脚。
2401 户型平面图
*03 消解 重构
2403 户型的改造中,设计师消解了原户型中厨房墙身,使其成为开放式空间。这种 LDK 的功能布局,将客厅、餐厅、厨房融为一体,各个厅室排列组合,为空间增加了实用性和纵深感。
爱马仕橙的沙发结合自然石材电视墙和极简壁炉,将奢侈品低调又高品质的风采在家中完美演绎。斟上一杯雷司令,慵懒地躺在壁炉边的沙发上,阳光透过白色的轻纱洒在指间,静静享受这难得的时光。
镜后咖啡色亚克力墙面延续了空间的橙色,结合灯带塑造渐变效果,散发高奢品质。
餐桌上方首饰形态的几何吊环灯与黄铜餐桌脚椅脚,像是在等待一位神秘威海女子前来就坐,物的形态拥有人的优雅,也感染了空间的内涵。厨房则使用极简的灰作为空间主色调,尽显明亮开阔。
*04 演绎色彩
色彩和材质不仅奠定了空间的主基调,映射着主人的生活方式,也给人以空间情绪的反馈。2403 的户型设计通过色彩和材质,演绎别具一格的“三代之家”魅力故事。
长辈房中,莫兰迪灰使卧室散发安静稳谧的格调,不同形式的金属灯具赋予整个室内跳跃优雅的性格特质。
主卧
细节上,梳妆台前的化妆镜与底部大理石的搭配下,暗藏一个缩小版的首饰盒彩蛋,设计的灵气在这个巧妙的安排中完美呈现,赋予空间迷人的魅力和趣味。
不同于公区热烈的橙及卧室静谧的灰,儿童房采用清透而不失高级的蒂芙尼蓝,玩味十足的储物架,采用小房子的形式搭建,可爱之余也丰富了空间的整体结构。
2403 户型为 3、30、60 的不同年龄层打造出理想的三代生活场所,使人感受出威海近山水又亲人情的城市特质,各具特点又融合统一的高级格调,使装饰的高级感脱离平面,融于空间,显于色彩。
2403 户型平面图
项目名称:威海望岛名郡
项目地点:中国·威海
项目业主:山东明海集团有限公司
设计范围:售楼处软装设计、样板间全案设计
设计单位:MOK Design
设计团队:Eddie Mok(莫兆铭),Sandy Lee (李燕芳),Felicia Goy(倪银敏),Bill Ho(何彪元),Victor Chui(徐伟強),Ryan Yuan(元兆瑞),邓夏云
项目面积:2401 户型 129㎡,2403 户型 102m²
项目摄影:李孝曾/ 艺间访建筑空间摄影
莫兆铭建筑设计有限公司 MOKesign 由香港著名设计师莫兆铭先生成立于 1992 年,总部位于香港。2018 年,公司秉承“坚持创新,享受设计”的理念,善于发掘及把握项目本质,累积设计项目遍布全球 10 多个城市,囊括多个国际设计奖项。先后与香港太古集团、深业集团、新福港地产、华润置地、鸿坤集团、万豪集团等知名企业达成深度合作。
客服
消息
收藏
下载
最近













































