查看完整案例

收藏

下载
Rory Gardiner
丛林掩映
Ludwig Godefroy Office
阿尔费雷斯之家最初的设计概念来源于森林中的保护性庇护小屋和其浪漫的坠落姿态。设计者希望让房子看起来像一个跌倒在树丛中的立方体。
▲与世独立的房子
© Rory Gardiner
▲项目概览
© Rory Gardiner
设计该项目基于以下三个要点:第一,项目回应了在森林中建造一个与世独立的房子的想法,同时重视了业主对安全感的强烈需求;这是一栋像金库一样的房子,由混凝土建造而成,保护并照顾着其中的居住者。由此便得到了一种混合的表达方式——一方面,房屋表达了项目浪漫的部分,另一方面,堡垒一样的建筑结构提供了简单直接的保护作用。
▲丛林掩映的小屋
© Rory Gardiner
房子的首层几乎是不通透的,窗户都被设置在了非常高的地方,人们无法从室外触碰到它们,这是为了获取通向天空和周围的松树林的视野。
▲被设置在高处的窗
© Rory Gardiner
第二,该项目的用地非常紧凑,这是为了避免由于地形原因而导致的复杂且昂贵的地基成本,设计者的想法是增加房屋的高度——在房顶建造第二个首层,作为树木间悬浮的露台。屋顶露台是上午使用的区域,原有的首层在下午使用。小屋像是一个不稳定的盒子掉落在自然的斜坡上,其南端伸出悬挑结构,北端则是下沉式的。
项目重新塑造了一个悬挂在自然地形之上的房屋。其结构表达了这一矛盾的特点,小屋轻盈的质感与堡垒混凝土的厚重感之间产生了强烈的对比。
▲从室外看向房屋内部
© Rory Gardiner
▲小屋入口
© Rory Gardiner
▲入口处的悬挑结构
© Rory Gardiner
第三,房屋享受到从树木间洒下的阳光,并与周围雄伟的松树树冠建立了某种联系。遵循其用地 9 x 9 米的逻辑,项目意图垂直向上发展,而非水平,这样一来,能够允许人们触摸到那些高大松树的树枝。
▲内部的双层高度
© Rory Gardiner
房屋的结构从其双层高度的一半处被重新设计,使房子的内部拥有大教堂般的尺度和感觉,光线透过高耸屋顶处的天花板和天窗洒到屋子内的每个角落,紧接着弥散在整个内部空间,弥补了首层缺少窗户的遗憾。
▲厨房和餐厅
© Rory Gardiner
▲卧室空间
© Rory Gardiner
▲卧室空间细部
© Rory Gardiner
▲浴室和更衣区
© Rory Gardiner
▲新建的露台
© Rory Gardiner
▲房屋的材料与结构细节
© Rory Gardiner
项目图纸
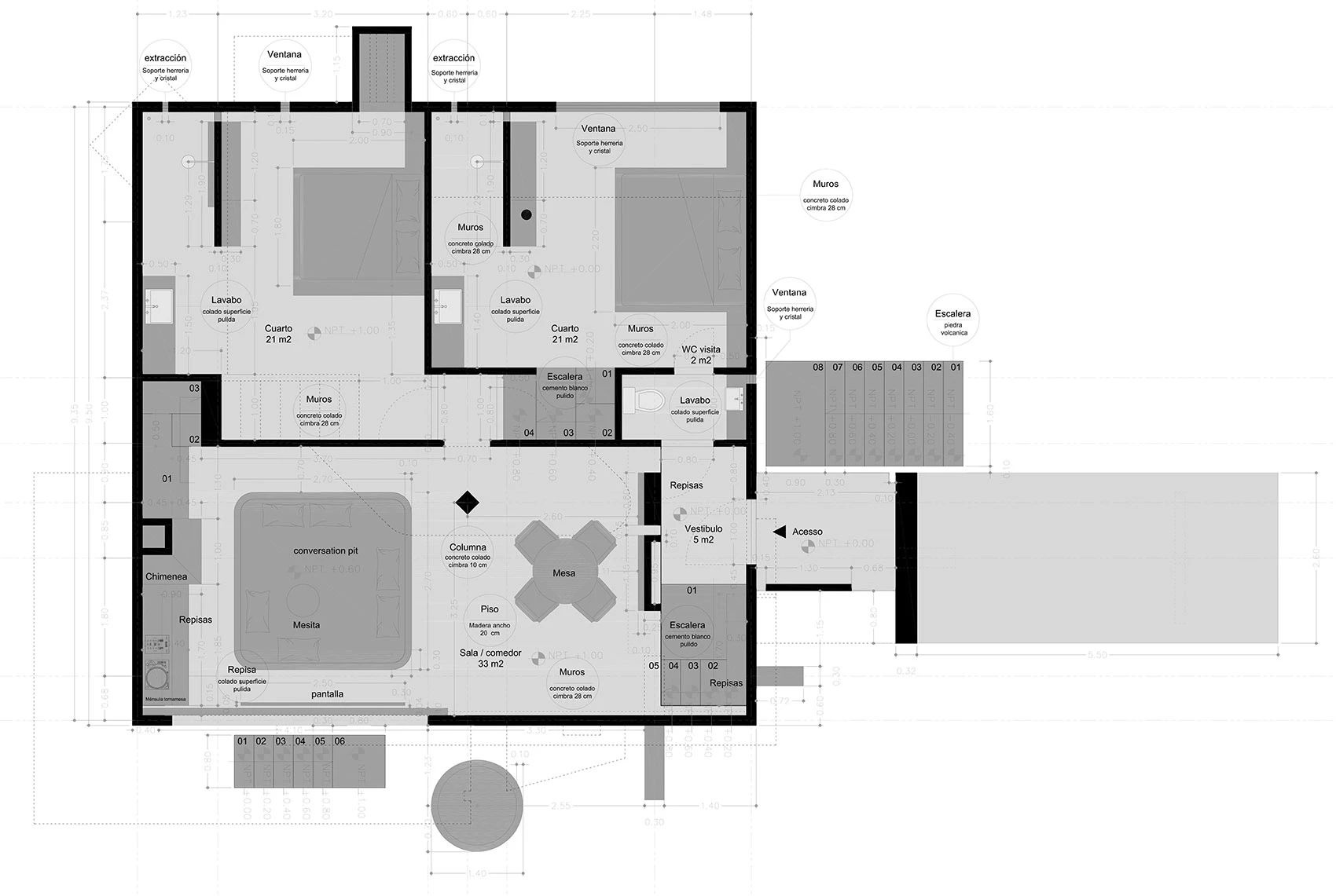
▲平面图
© Ludwig Godefroy Office
▲平面图与设计细节
© Ludwig Godefroy Office
▲立面图
© Ludwig Godefroy Office
▲剖面图
© Ludwig Godefroy Office
House area: 150 m2
Built year: 2022
客服
消息
收藏
下载
最近



























