查看完整案例

收藏

下载
城市打拼,回乡建房,早已不是什么新鲜事。只是这类房子,大多成了在乡里炫耀成就的空舍。而这次似乎和以往不同,初次接触业主的观念认知就与设计团队高度契合。这是一栋真正要“住”的房子,业主过去在广深打拼多年,但对家乡和田园生活的强烈向往,让她毅然选择回乡常住。几轮沟通后,金丰决定前往江西勘察场地。
It is not uncommon for China’s new generation of rural migrant workers to save up for a self-built house in their home village. Ironically, most of the houses become vacant after being constructed, just acting as a flashy symbol of wealth in neighborhood. However, this project is different, as it is meant for daily dwelling and living. The owner, who has a career in Guangzhou and Shenzhen, returned to her hometown in southern Jiangxi Province, yearning for the familiar flavor of food and life in her childhood.
▼住宅外观,exterior view
项目场地位于赣南山间的村落边缘,满眼的绿色使金丰看到周围环境的那一刻起,就决定接下这个案子。背靠山林,静怡安宁。站在场地中央,山林树影斑驳,一座独守山麓的静谧白屋在设计师的脑中浮现。
The site is situated at the edge of the village, adjacent to a forest park. Backed by the mountain, endowed with greenery, its peace and quietness inspired the designer Jin Feng, and the silhouette of a reclusive white hillside house appeared in his mind.
▼白色的住宅背靠山林,静静地伫立在场地上,the white house is backed by the mountain
在设计中考虑业主的生活习惯、关注工程预算、跟踪设计落地是极其重要的内容。在为期一年半的建造过程中,金丰与设计团队从实地勘察、平整土地、庭院布局、结构施工直到内装陈设、细部优化全程跟踪指导。在施工阶段,选材均来自当地,施工人员多为村里赋闲在家的农民工,给方案施工落地提出了很多挑战。
He insisted on practicality, took into account the owner’s living habits, emphasized engineering budget, and followed up the whole process including on-the-spot investigation, leveling of land, courtyard layout design, structural construction, as well as interior decoration and detail optimization.
▼住宅露台一侧外立面细节,details of the facade where the terrace is located
▼住宅阳台一侧外立面细节,details of the facade where the balconies are located
“乡建如果只是一味的关注个人生活而忽视环境,我认为是不可取的,设计应当对自然有一份责任。”金丰说。
“Discharges and waste disposal have affected the water sources in the village and even the forest. If village construction only pays attention to individual benefits and ignores the environment, I think it is not advisable. The design should have a responsibility to nature.” Jin Feng said.
从业多年、南征北战,金丰发现许多乡村中,最大的问题是没有完善的基础设施规划与建设。“没有统一的垃圾和粪便处理设施,随意的污水排放与垃圾丢弃甚至已经影响到了村里的水源。”
为此,在设计之初,金丰就考虑了房屋整体的化粪池及垃圾发酵系统。系统的设计能够有效解决乡村生活的排污问题,发酵池产生的肥料,还可反哺家中菜园。这样的系统规划,在当地并不多见,金丰积极的说服了业主,最终完成这套系统后,项目使用的便利性被大大提高,同时也能更好地与周边自然环境融合共生。
The biggest problem in village construction is that there is no well-established infrastructure planning. Accordingly, Jin Feng considered the septic tank and waste fermentation system for the whole house at the very beginning. The systematic design approach effectively solved the problem of sewage discharge, and the fertilizer produced in the septic tank can be used for the vegetable garden.
▼住宅入口立面细节,details of the entrance facade
功能至上,关心业主需求,以实用为前提是设计师不变的坚持。设计团队根据业主一家的生活习惯,在首层将餐厅作为入户后的空间中心,与西侧配备了储藏间的大厨房一起,成为业主展示厨艺的完美“舞台”。
Based on functionality, Jin Feng constructed the space with simple geometric blocks. Considering the living habits of the family members, dining room is set as the space center on the first floor. Combined with the large kitchen on the west side, it provides a perfect “stage” for the owner’s love of cooking.
▼首层餐厅,入户后的空间中心,the dining room as the space center on the first floor
▼餐厅细节,整墙欧松板不仅是背景结构,也划分了餐厅和起居室,details of the dining room, a large strand board functions as a background structure and also a partition
“居住空间是跟着我们的生活习惯发生改变的,你不可能回避你已经是一个现代人的事实”。谈及设计金丰说。房子是生活的容器,这座白色房子,也反应了业主的现代生活理念。
“Although the project is in the countryside, the living space is changing with our living habits. We can’t deny the fact that we are already part of modern society.” Jin Feng said.
▼起居室,使用清水砖墙作为内装饰面,living room, featuring large areas of the white concrete brick walls
▼整墙欧松板细节,与仿混凝土地砖对比,平衡了工业基调,details of the strand board, contrasting with the imitation concrete floor tiles, balancing the industrial tone
▼一层游戏室/客卧,game room / guest room on the first floor
▼通向二楼的楼梯,the stairs that lead to the second floor
▼一层楼梯细节,details of the stairs on the first floor
清水砖墙既是主体结构又是粗犷豪放的内装饰面,性价比优越。简洁利落的线条将各功能区有序分割,容纳更丰富的现代家庭生活。整墙欧松板既是背景结构也形成空间界面,与仿混凝土地砖和明装线管相互映衬,以温暖的纹理平衡着硬朗的工业基调。
The interior space features large areas of concrete brick walls, which were painted in white, with low cost. A large striking oriented strand board functions as a background structure and also a partition. It contrasts with the imitation concrete floor tiles and exposed wires, balancing the cool industrial tone with its warm wooden texture.
▼二层卧室,bedroom on the second floor
本案的极简气质与乡村已有的业态差异化,使得设计价值最终释放,超越了邻里的狭隘界限,将“怪异”化解成“新鲜”直至释怀接纳。在如火如荼的乡建大潮中践行了一次理性的回归,为当代乡村生活方式提供了某种参照,在从众与自立之间找到了协调的比例,开掘出一面真实而深刻的心境自留地。
The minimalist characteristic of this white house differs from the existing appearance of the village. The design value was finally interpreted through transcending narrow boundaries of the neighborhood and turning the “weird” into “curious” till accepted. Practical and livable, paying attention to cost and caring for the environment, these are the principles for Jin Feng’s rational exploration of village residence construction in present China.
▼住宅夜景,night view of the house
▼一层平面图,1F plan
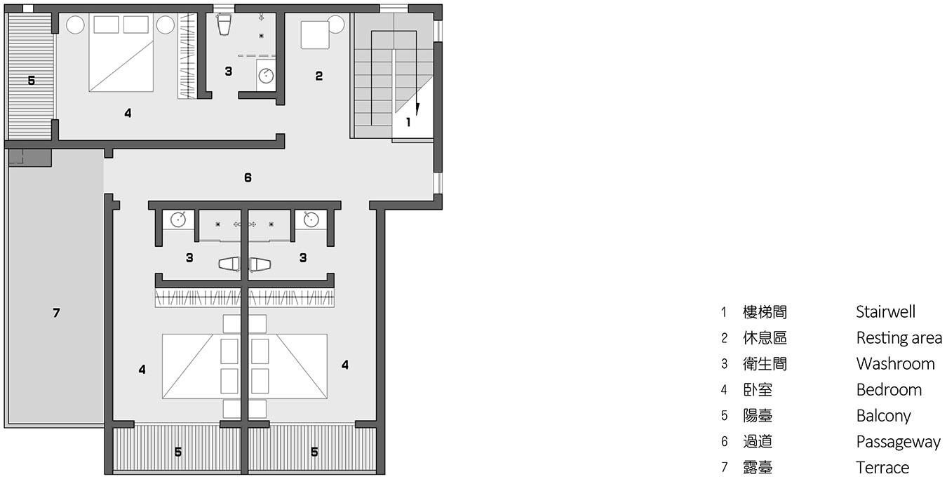
▼二层平面图,2F plan
▼能源循环利用分析图,energy recycling analysis diagram
项目地址:江西赣州
项目性质:私宅
建筑&室内设计:铭鼎空间艺术工作室
设计师:金丰
项目面积:300平方米
完工时间:2018年10月
主要材料:雷士照明,金大田门业,鹦鹉木地板
摄影师:欧阳云
文案策划:Sunshine PR
Project location: Ganzhou City, Jiangxi Province, China
Project category: private residence
Architectural & Interior design: Ming Ding Spatial Art Studio
Designer: Jin Feng
Project area: 300 m2
Completion time: October 2018
Main materials: lamps (NVC), doors (Jin Datian), wooden floorboards (PARROT)
Photographer: Ouyang Yun
Text: Sunshine PR
客服
消息
收藏
下载
最近




























