知末
知末
创作上传
VIP
收藏下载
登录 | 注册有礼

前水泵厂改造而成的高端工业风住宅项目

2023/03/25 16:21:00
查看完整案例
微信扫一扫
收藏
下载
前水泵厂改造而成的高端工业风住宅项目-0
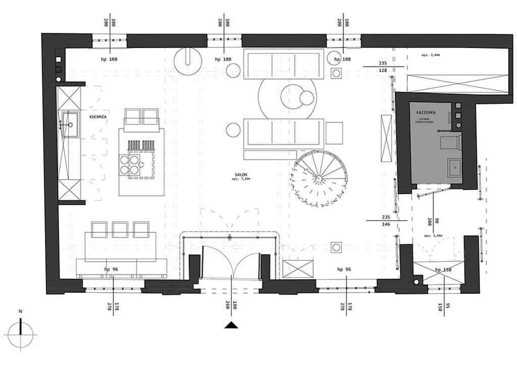
有机会在豪华的工业空间工作是几乎所有设计师的梦想。Sikora Interiors工作室的设计师将波兹南附近的这个阁楼视为他们的梦想项目。这座前水泵厂最近落入了当地开发商的手中,他们决定将其改造成住宅公寓大楼。这间阁楼位于独立的展馆之一,拥有自己的入口和令人印象深刻的空间。嗯,Sikora Interiors充满了明亮的现代设计、色彩缤纷的装饰、时尚的黑色厨房,这是非常成功的工业风改造项目!
前水泵厂改造而成的高端工业风住宅项目-2
前水泵厂改造而成的高端工业风住宅项目-3
前水泵厂改造而成的高端工业风住宅项目-4
前水泵厂改造而成的高端工业风住宅项目-5
前水泵厂改造而成的高端工业风住宅项目-6
前水泵厂改造而成的高端工业风住宅项目-7
前水泵厂改造而成的高端工业风住宅项目-8
前水泵厂改造而成的高端工业风住宅项目-9
前水泵厂改造而成的高端工业风住宅项目-10
前水泵厂改造而成的高端工业风住宅项目-11
前水泵厂改造而成的高端工业风住宅项目-12
前水泵厂改造而成的高端工业风住宅项目-13
前水泵厂改造而成的高端工业风住宅项目-14
前水泵厂改造而成的高端工业风住宅项目-15
前水泵厂改造而成的高端工业风住宅项目-16
前水泵厂改造而成的高端工业风住宅项目-17
前水泵厂改造而成的高端工业风住宅项目-18
前水泵厂改造而成的高端工业风住宅项目-19
前水泵厂改造而成的高端工业风住宅项目-20
前水泵厂改造而成的高端工业风住宅项目-21
南京喵熊网络科技有限公司 苏ICP备18050492号-4知末 © 2018—2020 . All photos and trademark graphics are copyrighted by their owners.增值电信业务经营许可证(ICP)苏B2-20201444苏公网安备 32011302321234号
客服
消息
收藏
下载
最近