查看完整案例

收藏

下载
北京华成智云软件股份有限公司总部位于北京诺德中心写字楼,建筑面积996㎡。现场建筑为框架结构,场地中心内部有四个一米见方的柱子。业主是从事安防事业的企业,建筑功能要求把企业的展示功能与办公空间结合起来。
Beijing Huacheng Zhiyun Software Co., Ltd. is headquartered in Beijing Nord Center office building with an area of 996 m2. The on-site building has a frame structure and there are four one-meter square pillars inside the center of the site. The enterprise is mainly engaged in the security business, and the design seamlessly combines the display function of the enterprise with the office space.
▼室内主要功能空间全景,view of the interior main space
建筑设计中围绕三个“无界”进行,第一个“无界”是功能无界。建筑功能主要有办公,产品展示,影像展示,产品互动展示等等。在功能布置中,将这些功能完全融合在一个空间体系内。围绕现场四个柱子设计一组互动展示空间,主要进行安防产品的互动展示,展示空间内设计若干展架将产品与互动端相结合,实现实时互动。独立办公室设计在主要空间的外围,独立又有一定的隐私性。展示空间的南北两侧分别是办公空间和产品展示墙。此三组功能将主要空间分割为三条线和一条主要通道,各种功能之间相互影响、相互呼应。办公空间与员工日常工作成为企业展示功能的一部分,同样展示空间也成为办公空间必不可少的延伸,可以通过展示空间内的展品与互动装置给员工带来灵感。
The architectural design is carried out around three “unbound concept”, and the first “unbound concept” is the unbound of functions. The building functions mainly include office, product display, image display, and product interactive display etc. In the functional arrangement, these functions are fully integrated into one space. A set of interactive display space is located around the four pillars of the site, mainly for interactive display of security products. Several display racks in the display space to bring products and interactive ends together to enable real-time interaction. The independent office is located outside of the main space and has a certain degree of privacy. The north and south sides of the exhibition space are office space and product display wall. These three functions divide the main space into three lines and one main passage, and the various functions interact and echo each other. The office space and the daily work of the employees become part of the corporate display function. The same display space has become an indispensable extension of the office space. It can inspire employees through the exhibits and interactions in the exhibition space.
▼建筑入口,the entrance
▼展览空间和办公空间融合在一个空间体系内,实现功能无界,exhibition space and office space are fully integrated into one space, realizing the unbound of functions
第二个“无界”是空间无界。此项目设计使空间的视觉与流线相融。互动展示空间为线型品字布局,品字布局的负型形成了员工的流线。通往独立办公室的主要通道两侧同样是互动展示空间与产品展示墙,独立办公室人员路线必经展示群组空间。通过这两种人本身的行为路线与功能结合的设计,把两种空间完全融合在一起。互动展示空间造型设计犹如画框、外实内虚的造型将前后左右的空间互相映衬、互相依附。空间高度以3米线以下进行设计,所有墙体高度、灯具吊装高度、门与玻璃的高度均为三米。三米线以上进行整体涂黑,把管线管道全部弱化于黑色天花内。墙身材料为混凝土漆,地面为混凝土自流平,两种材质在视觉上相融合。办公空间内穿插实木家具与柜门,体现出办公本身的人性化感受,与互动展示空间的灰色系相融合。
The second “unbound concept” is unbound of space. This project design blends the spatial visual effect and streamlines. The interactive display space is a linear triangulated layout, and the space between the triangulated layouts forms the streamline of the employees. The main passage leading to the independent office is sided with interactive display spaces and product display walls, and the route to independent office must pass through the group display space. Two different spaces are completely merged through the combination of the behavioral routes and functions of the two groups of people. The interactive display space design is like a picture frame, and the external virtual shape embodies the space of the front, back, left and right. The height of the functional space is designed to be three meters. All wall height, chandelier height, door and glass height are fixed at three meters. The space above three meters line are all painted blacked, including the pipelines which are weakened in the black ceiling. The wall material is concrete lacquer and the ground is self-leveling concrete. The two materials are visually consistent. The office space is interspersed with solid wood furniture and cabinet doors, reflecting the humanized feeling of the office itself and blending with the gray theme of the interactive display space.
▼互动展示空间和办公区实现空间无界,the exhibition space and office space realizes the unbound of space
▼展示空间北侧的产品展示墙,the product display wall on the north side of the exhibition space
▼走廊展示空间与互动展示空间实现空间无界,corridor exhibition space and the interactive exhibition space are integrated, realizing the unbound of space
第三个“无界”是时间无界。此项目设计遵循可持续发展的思路,企业根据自身发展的时间规律,在以后会把此空间完全变成企业博物馆。根据这点,建筑设计在现有时间段和未来时间段的使用功能都做了充分的考虑。现有的办公空间尺度既可以作为办公空间,也可以作为展示台空间,进行企业产品研发展示,只需将若干办公椅撤离就可以达到展示台的尺度要求。独立办公室各间的隔墙为独立轻钢龙骨双层石膏板墙体,未来可以将内部隔墙拆除,独立办公室就形成了一个独立完整空间展厅,可以展示高精安防研究产品和企业的保密产品展示。所以此项目设计将各个时间段的功能与形式需求进行融合,做出一个可持续发展的空间设计。
The third “unbound concept” is unbound time. The design of this project follows the idea of sustainable development. According to the natural principle of enterprise development, the company can completely turn this space into a corporate museum in the future. Therefore, the architectural design fully considers its function in both the current timeline and future timeline. The existing office space dimensions not only can be used as an office space but also as an exhibition space for enterprise product and display. By removing only a few office chairs, the office space can meet the scale requirements of the display stand. The internal partition walls between independent offices are independent light steel keel double-layer gypsum board wall. In the future, the internal partition wall can be removed and the independent office thus forms a complete independent space exhibition hall, which can display high-precision security research products and enterprise secret products. Therefore, this project design combines the functional and formal needs of each time period of the enterprise to create a sustainable spatial design.
▼现有的办公空间尺度也可以作为展示台空间,适应未来的要求,实现时间无界,the existing office space dimensions can be used as an exhibition space for future demands, realizing the unbound time
▼互动展示区细节,details of the interactive exhibition space
▼模型,physical model
▼平面图,floor plan
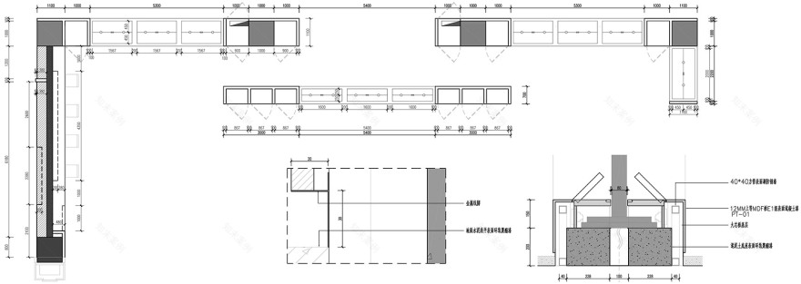
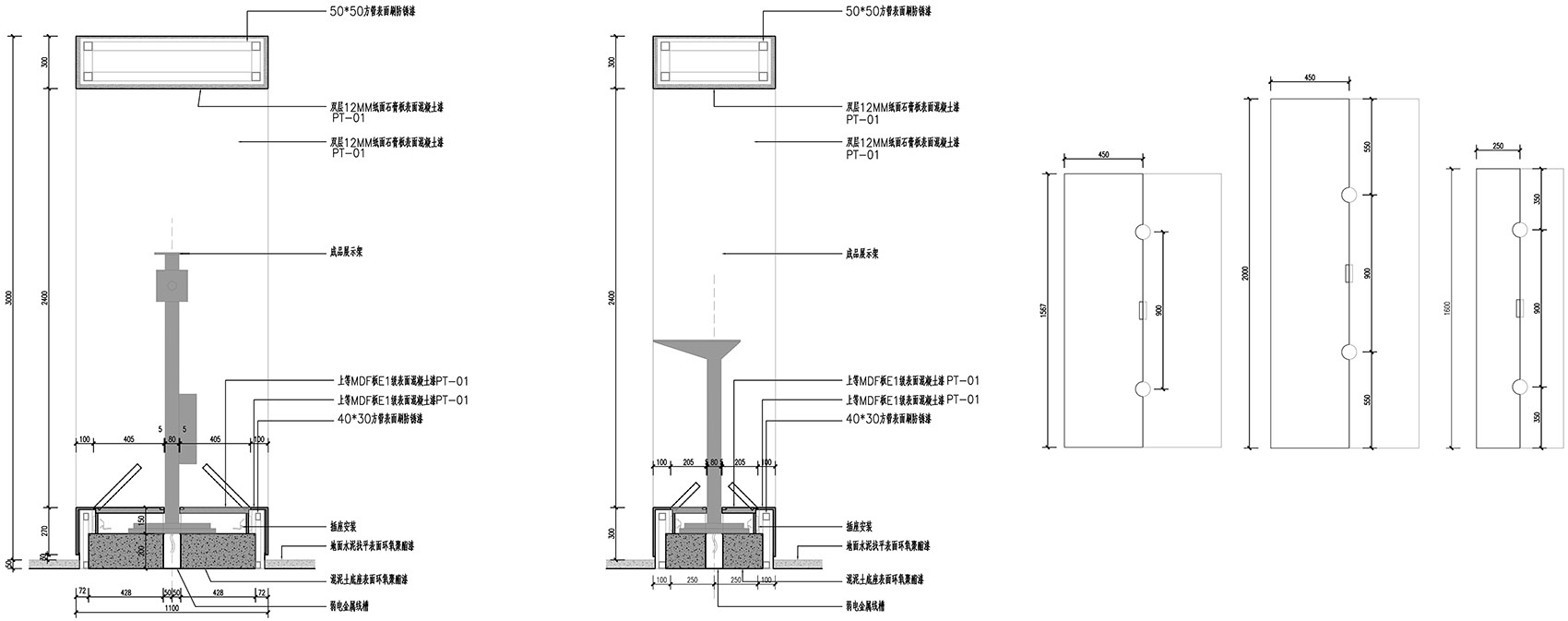
▼立面大样,facade details
客服
消息
收藏
下载
最近























