查看完整案例

收藏

下载
位于Arnhem Gelderland的省政厅改造项目获得了荷兰皇家建筑师协会颁发的年度最佳建筑奖,也引起了媒体与公众极大的关注。这个项目是对现有建筑的改造和扩建,要求在保持原有建筑纪念性特征的同时,创造一个可持续性的现代工作环境。建筑师、Team V Architecture负责人、本次项目建筑设计负责人Jeroen van Schooten 说:“House of Province的美丽之处在于,我们将设计融入到了各个层面,从城市尺度的规划到最小尺度的建筑细部。”
The renovated House of Province of Gelderland in Arnhem has received this year the Best Building of the Year Award by the Royal Institute of Dutch Architects and has great interest from the press and public. The project called for the renovation of the existing building and the construction of a new extension, resulting in the creation of a sustainable and contemporary work environment while maintaining the monumental character of the original building. “The beauty of the House of Province is how we have been able to incorporate design at every level, from the urban planning scale to the minutiae of the details,” says Jeroen van Schooten, who as architect and director of Team V Architecture is responsible for architectural design.
▼城市肌理与新旧省政厅,urban context、existing building and new extension of House of Province
省政厅的惊喜与连接纽带
The House of Province surprises and connects
设计通过围绕建筑的抬高广场,加强了建筑与集市广场和莱茵河的联系,并通过穿越建筑群的行人路线进一步加强了与公共区域的联系,其中一条人行路线穿过新建筑,使行人可以看到省政厅内的工作场景。新建筑与纪念性的省政厅之间通过镜面铝板建造的桥梁连接,桥面反射的光线模糊了建筑、桥、新与旧之间的界限。根据Van Schooten的说法,桥梁在整个设计中至关重要:“是省政厅的惊喜与连接纽带。”
The design enhances the relationship between the market square and the Rhine river by means of an elevated plaza which encircles the buildings. Further connections to the public realm are created by new pedestrian routes which run across the complex, one of which passes through the new building where passers-by can see the Province at work. Links between the new building and the monumental House of the Province are made by bridges of mirrored aluminum whose reflections obscure the boundaries between building and bridge, old and new. According to Van Schooten, the bridges are exemplary of the overall design: “The House of Province surprises and connects”.
▼设计通过围绕建筑的抬高广场加强了建筑与城市、莱茵河的联系,design enhances the relationship between the market square and the Rhine river by means of an elevated plaza which encircles the buildings
▼充满纪念性的原有建筑与新扩建建筑,monumental existing building and new extension
▼新旧建筑通过镜面铝板构成的桥梁进行联系,links between the new building and the monumental House of the Province are made by bridges of mirrored aluminum
▼桥面反射的模糊了新旧建筑的界限,reflections on the bridge surface obscure the boundaries between old and new buildings
▼穿越建筑群人行道进一步加强了建筑与公共空间的关系,further connections to the public realm are created by new pedestrian routes which run across the complex
▼新建筑内部的人行通道,the pedestrian route passes through the new building
创意屋顶
An innovative roof
建筑师使用ETFE膜材建造了一个充满创意的屋顶,将省政厅原有庭院改造成室内广场。Van Schooten 说:“屋顶设计希望尽可能减小对纪念性建筑的影响,因此我们与SIDstudio一起合作设计了一个由杆件和电缆组成的轻型结构。”屋顶结构杆件末端装有LED灯并且都指向庭院的中心点。“这形成了一个有趣的光影游戏:当你穿过中庭时,屋顶景象一直在变化。”新屋顶不仅塑造了一个纪念性的接待大厅,还能够帮助大大降低能源消耗。
The former courtyard of the House of the Province has been transformed into an indoor plaza by means of an innovative roof design using ETFE cushions. “The design of the roof was influenced by the desire to have as minimal an impact as possible on the monument, and therefore a lightweight construction of rods and cables was designed in collaboration with SIDstudio” says Van Schooten. The rods of the roof structure are orientated to the centre point of the courtyard and incorporate LED lighting at their ends. “It makes for an interesting play of light: as you walk through the atrium, the roofscape changes all the time.” The new roof not only provides a monumental reception hall, it also helps to significantly reduce energy consumption.
▼充满纪念性的建筑入口,monumental entrance
▼杆件、电缆和膜结构组成的屋顶将原庭院改造为室内广场,the roof constructed by ETFE cushions, rods and cables transforms the former courtyard to a indoor plaza
▼末端装有LED的杆件指向庭院中心点,robs are orientated to the centre point of the courtyard and incorporate LED lighting at their ends
▼创意屋顶结构细部,detail of innovative roof
历史价值
Historical value
“我们尝试利用和加强省政厅的文化历史价值,省政厅是五十年代著名的Gesamtkunstwerk,意思是这栋建筑可以看作是一件完整的艺术品。”新建筑中的部分元素来源于原本的建筑,如沙漏图案,此外建筑师还增加了一些新的元素。庭院中的蓝色楼梯就是一例,它既是问询台,又是座椅也是花坛。“蓝色钢材和沙漏是Gesamtkunstwerk的一部分。如果你环顾四周,你会发现这类特征无处不在。正是这些细节元素使得省政厅如此特别。”
“We have tried to use and strengthen the cultural-historical value of the House of Province, a famed Gesamtkunstwerk from the fifties, which means the building can be seen as one complete work of art.” Characteristic motifs from the monument, such as the hourglass pattern, return to the new building and new characteristic elements have been added. An example of such a new element is the blue staircase in the courtyard, which also serves as information desk, seating area and tree planter. “The blue steel and the hourglass are part of the Gesamtkunstwerk. If you look around, you will encounter it everywhere in the buildings. It is these kind of details that make the House of Province so very special”.
▼来源于原有建筑的元素:沙漏图案,the hourglass pattern which is from the existing building
▼庭院中的蓝色楼梯同时也是问询台、座椅和花坛,the blue staircase in the courtyard, which also serves as information desk, seating area and tree planter
公私合作关系
Public-private partnership
省政厅是由VolkerWessels Integraal领导的公私合作(PPP)项目,VolkerWessels Integraal负责设计、施工和为期20年的维护运营。设计团队由Team V Architecture, OTH architects, Karres and Brands Landscape Architects, Bureau Fritz, Bartels, SIDstudio, DGMR 与 Valstar Simonis组成。
The House of Province has been procured as a Public-Private Partnership (PPP), led by VolkerWessels Integraal, who are responsible for the Design, Construction, Maintenance and Operation for a period of 20 years. The design team was made up of Team V Architecture, OTH architects, Karres and Brands Landscape Architects, Bureau Fritz, Bartels, SIDstudio, DGMR and Valstar Simonis.
▼公共空间,public space
▼议会大厅,council hall
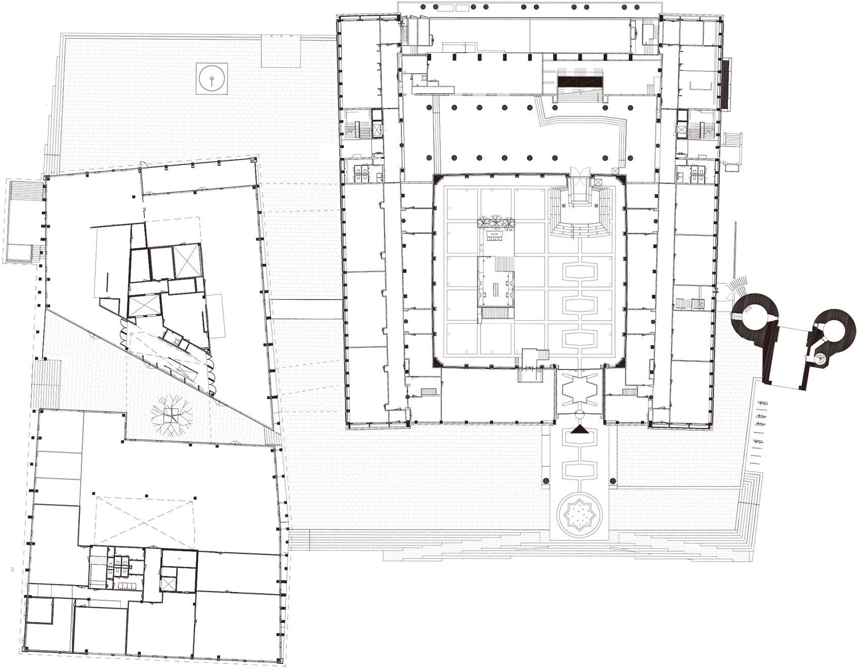
▼新场地平面,new site plan
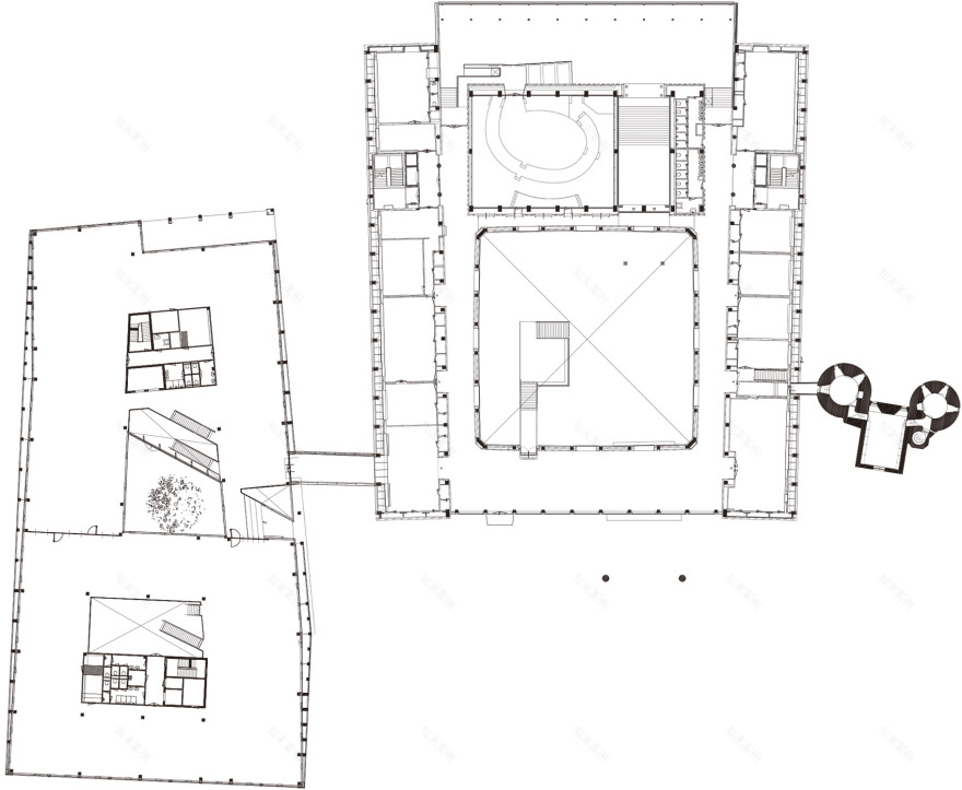
▼首层平面图,ground floor plan
▼杆件层平面,plan above roof lightweight structure
▼ETFE膜材层平面,plan of ETFE cushions
▼剖面,sections
▼结构细部,structure detail
Algemeen
Function: House of Province
Location: Markt 11, Arnhem, The Netherlands
Programma: House of Province, Council hall, meeting rooms, office spaces, restaurant and car park.
Gross floor area: House of Province-15.805 m² gfa (old) 17.593 m² gfa (new, incl. basement, atrium and walking bridges) New building-12.678 m² gfa (incl. car park) Sabelspoort-253 m² gfa Rijnstate office (demolished)-10.546 m² bvo
Client: VolkerWessels Integraal B.V.
Ontwerpteam
Architect: Team V Architecture
Advisor Construction: Bartels Ingenieursbureau SIDstudio
Advisor E + W Installations: Valstar Simonis
Installation technics: HOMIJ Technische Installaties B.V.
Advisor Building Physics: DGMR
Construction, management & maintenance: Bouwbedrijf Wessels Rijssen B.V Visser & Smit Bouw B.V.
Facility management: PCH Integrated Facility Management & Services B.V.
Project management: VolkerWessels Integraal B.V.
Interior design: OTH architects
Landscape architect: Karres en Brands Landschapsarchitects
Renovation project
Original function: House of Province
Original architect: J.J.M. Vegter, H. Brouwer
Year: 1950-1955
Style: Delft school / Traditionalism
Monument status: National monument
Awards
– Building of the Year 2018 by BNA (Royal Institute of Dutch Architects) nomination
– Heuvelink Award 2018 nomination
– Gulden Feniks 2018 nomination
客服
消息
收藏
下载
最近





































