查看完整案例

收藏

下载
徐家汇书院是魔法。徐家汇书院 Zikawei library: Basilica in library.
文字和思想能改变世界——《死亡诗社》
2023 年元旦,wutopia lab 历经 4 年设计的徐家汇书院正式开放。它成为上海这两个月最轰动的文化旅游地标,也是第一次在工作室官宣之前就满城尽知的项目。因此,这篇姗姗来迟的工作室官宣作文在某种意义上变成了总结。
我接手这个项目的时候,还不是徐家汇书院。大卫奇珀菲尔事务所完成的是一个书店的设计。后来书店退出,这个建筑在完成外立面和土建后空置。在经历了第二家书店的退出后,这栋建筑才被确定作为徐汇区图书馆新址并命名为徐家汇书院。
Wutopia lab 的魔法
Wutopia lab
不过大卫留下了三层通高并两侧有夹层的中庭。这个古典气质的中庭占据着中轴线的中心位置,无法回避。我需要避免被它诱导去建立一个古典的叙事结构,也不能无视它而完全建立一个新的叙事结构。
Robert Macfarlane
核反应堆铀废料的掩埋:人们把废弃铀芯块封在锆棒里,锆棒封在铜柱里,铜柱封在铁缸里,铁缸包裹在膨润土浆里,最后将它们存储在地下深处的岩层里,放入数千英尺深的片麻岩、花岗岩或岩盐之中。
我决定在徐家汇书院建立一个来源于中国传统的子奁盒的“中国套盒“结构。套盒的最外层是大卫薄薄的外立面。第二层是图书馆主要的功能区,比如咖啡、各种阅览区、演讲厅、展览厅等。第三层是回形走道,第四层是作为图书馆阅读大厅的中庭,而最里面则是作为套盒结构中最后保护的宝藏,即图书馆的核心心装置。这个叙事结构转化到空间上,可以把第 2、3 层看成一个 A 部分,第 4、5 层看成一个 B 部分。至于最外层的立面作为套盒外皮,里面的套盒则可以在设计上独立表达,而不必受其建筑语汇的影响。而第五层的宝藏不构成空间意义,但如果没有,中庭这层盒子就是空心的,那么套盒的象征意义就不存在。
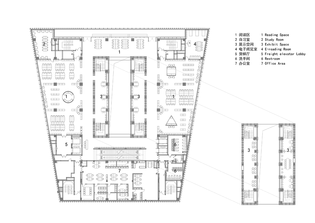
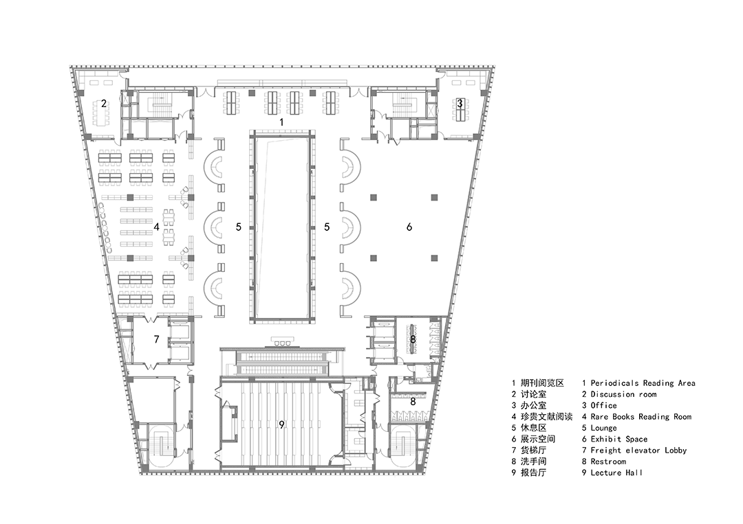
三层平面图
那么确立什么物件作为套盒所收藏的宝物呢?徐家汇书院一度要整合土山湾博物馆,所以把代表土山湾的牌楼放进来是合乎逻辑的。不过书院毕竟是图书馆,最后确认放入图书馆的标志——阅读桌。这是一张接近 30 米的、上海最长的阅读桌。它们两合在一起强化了中轴线,也成为中国套盒里最重要的宝藏。
Wutopia lab
收纳宝藏的 B 区展现出了神圣性。就此建筑师借用书院邻居天主教教堂的典型空间类型巴西利卡来神圣化中庭。将中庭天花设计成拱形而完成图书馆作为当代人知识圣殿的象征意义诠释。并把拱形形式语言在一楼复制形成连续的拱形空间进一步把室内叙事结构和外立面构造逻辑剥离而更符合中国套盒的叙事。而因为土山湾博物馆最后并没有纳入书院,也就无法把牌楼引入中庭。最后大家决策决定用 3D 打印的方式打印一个现代设计改写过的牌楼作为轴线的高潮。这样,西方的巴西利卡和东方的牌楼,传统的木结构和现代的打印技术作为一组巧妙地完成了命题作文,中西合璧,古今交融。从而把徐家汇作为中国现代科学的源头的象征意义在层层嵌套的中国套盒的结构中得到升华。
Basilica in library
徐家汇的魔法
Wutopia lab
开放性就需要中庭能在立面上向城市展示出来。所以在面临主立面广场这一侧,室内并没有布置复杂的功能,而宏伟温暖的中庭能够透过玻璃和柱廊显现出来,散发着光辉的中庭仿佛大海中安抚旅人的岛屿。
你在桥上看风景,看风景的人在楼上看你。
有关部门希望藏在柱廊后面的阳台能够挑出来。但这会破坏原来的立面。经过思考,建筑师仅仅在二楼的阳台两侧设计了一步小阳台。别小看这一小步,一步跨出去,仿佛凌空,而融合在这个城市风景之中。人生常常需要一小步,去改变什么。
一个开放的图书馆才能激活一个社区,才能让城市真正更新。徐家汇书院受欢迎的程度超过我想象,两个月 18 万人次包括许多从没来过图书馆的读者涌入图书馆,这是有史以来,第一次是一个公益场所成为城中第一最热的地标而带动了已经很久没有进入城中视野的徐家汇商圈,让其再次受到关注。这就是图书馆的魔法。这就是上海的魔法。
那你说宇宙有多大?
- 无限大。
——《美丽心灵》
点击播放
项目信息
ABOUT THE PROJECT
项目名称:徐家汇书院
室内设计公司:Wutopia Lab
主持建筑师:俞挺
项目经理:濮圣睿
前期项目建筑师:李明帅
后期项目建筑师:濮圣睿
图书馆阶段设计团队:亢庆贺、蒋雪琴、安安、陈骏、陈少芬、王晶
设计咨询:上瑞元筑设计顾问有限公司
书店阶段设计团队:金瑞、潘晖、潘大力、余婧
照明顾问:张宸露、蔡明洁、尉诗羽
空间标识设计:MEEM DESIGN(秀子,陈思雨)
展陈设计:上海美术设计有限公司
装置设计:上海一造科技有限公司
装置照明顾问:张宸露、杜雨轩、李文海
施工图设计:上海现代建筑装饰环境设计研究院有限公司
摄影:CreatAR Images
视频:CreatAR Images
出镜:iz
建设单位:徐汇区文化和旅游局、徐汇区图书馆
施工单位:上海现代建筑装饰环境设计研究院有限公司
项目地址:中国,上海市,徐汇区
建筑面积:18650㎡
设计时间:2017.5-2021.12
竣工时间:2022.12
Wutopia Lab
Wutopia Lab,由俞挺和闵而尼于 2013 年创立于上海,是一家以魔幻现实主义,创造日常奇迹的全球本土化先锋建筑设计事务所。
客服
消息
收藏
下载
最近




























