查看完整案例

收藏

下载
印度12.0住宅
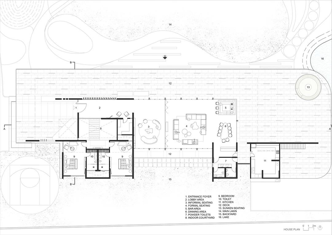
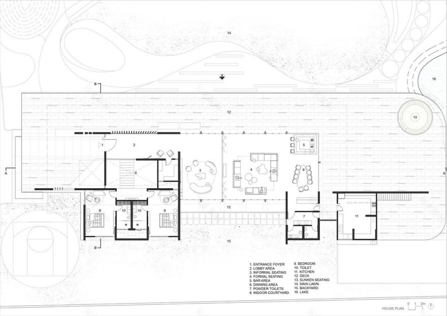
这座住宅将郁郁葱葱的绿色生态系统和舒适的室内空间结合在一起,通高的窗户可以滑动与折叠,所以只要将百叶打开,1500平方英尺的起居空间就能够转化为8000平方英尺的活动区域,其中还设置有一个院落,成为了半私密与私密区域的缓冲空间,同时也给室内带来了充足的自然采光和通风,这个空间虽然很小,但是在聚集与休息空间之间构成了平衡,同时也在各项活动中增添了所需的空腔。
住宅包含有3个体块,分别对应不同的功能,分别是公共体块、带有卧室的休息体块,以及厨房和服务区所在的服务体块,建筑的平面布局直截了当,一个宽阔的前厅,内部厨房有着参数化天花板,前厅的两侧都着特别的景观,其中一侧设置有木质百叶,构成了中央花园的观景视角,而另一侧院落则有着郁郁葱葱的植物。
通过前厅,使用者会直接来到起居室和家庭区域,这连接着餐厅和厨房,从而形成一个流畅的功能空间,干厨房也直接连接到独立的公共区域,这里有着湿厨,也叫做Maharaj厨房,这个区域的位置是独立的,因此它可以直接满足室外露台、下沉座椅区,以及派对草地的需求,并且不影响到主要的生活空间,因此,卫生间也设置于此,方便人们的使用。
室内应用了舒适且中性的色调,整体风格十分低调,地面铺设了定制的水磨石瓷砖,家具的设计也应用了柔和的蓝色和梅子色,内部的干厨房有着参数化天花板,它通过木材雕刻而成,这是整个简约空间中唯一的复杂元素,这个天花板由750块不同尺寸的木材面板制作而成。
起居空间应用了深色的面板、柔和的家具装饰品、哑光黑色的铝材,其目的是符合建筑的整体性特征,因此这里并没有多余凸出的设计,人们漫步其中时能够充分通过大玻璃窗感受到自然风景,两间卧室的布局相同,只是色彩有所区别,住宅的每个空间都通过铝制百叶窗来满足交叉通风,窗户还设置了纱网,防虫的同时也让新鲜空气在室内流通。
景观的设计构成了一整个生态系统,其中种植有约110种树木和150种灌木,设计的目标是保留物种多样性,避免对场地进行改造,除非能够促进植物的生长,项目场地略低于路面,在建造了一个大型雨水蓄水池之后,工人们将场地基准面抬高了一些,这样能够节省大量的开支,同时保留了植物的灌溉水资源,这个蓄水池大约能够节约4500万升水,因此鱼类、鸟类等物种都能在此生活,场地共包含有种植园、果园、蔬菜园、派对草地,以及森林,多个家庭的日常果蔬都来源于此,这也大大增加了场地的物种多样性。
客服
消息
收藏
下载
最近





































