查看完整案例

收藏

下载
建筑师:Formzero
建筑面积:340m²
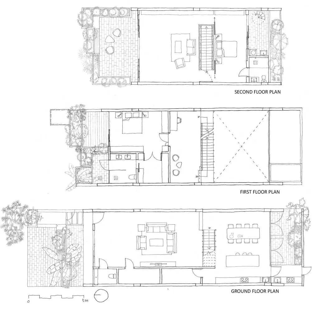
这是为一对热衷于种植食物的退休夫妇设计的住宅,充满植物的植物盒住宅看起来不太明确,因为它的外观像花园、农场或者住宅,期待着重新定义现代热带住宅。
植物盒住宅植物
其凹进的正面为邻里之间的互动提供了额外的公共空间。在边界之外,第一个种植箱是围绕一棵现有的茉莉花树。这个种植园提供城市家具,将这对夫妇和他们的邻居联系起来。
植物盒子住宅中的可食用植物
植物盒子室内
建筑被客厅和房子的中央楼梯分隔开,后部是一个双容积的厨房和用餐区,有一扇通高的玻璃窗,可以向外打开,朝向后面的绿墙。
绿墙
客服
消息
收藏
下载
最近










