查看完整案例

收藏

下载
茗筑水岸是一座位于南沙地区的国际一流滨水生态社区,择址岛尖核心腹地,坐落于灵山岛尖庙南路东侧,横四路南侧,坐拥双河涌约 500 米超长滨水岸线,有着一线的滨海风光,可以将水天一色的高端视觉体验真正融入生活。
Mingzhu Waterfront is an international first-class waterfront ecological community located in Nansha area. Located in the core of the island tip, it is located in the east of Jianmiao South Road and the south of Hengsi Road, Lingshan Island. It has a 500-meter-long waterfront shoreline of Shuangheyong and has a line of coastal scenery, which can truly integrate the high-end visual experience of the unified water and sky into life.
作为南沙五大国企集团之一的南沙开发建设集团,是南沙新区核心湾区的开发建设主体,助力南沙打造成为立足湾区、协同港澳、面向世界的重大战略性平台。
Nansha Development and Construction Group, one of the five state-owned groups in Nansha, is the main body of the development and construction of the core Bay Area of Nansha New Area, helping Nansha to build itself into a major strategic platform based on the Bay Area, cooperating with Hong Kong, Macao and facing the world.
步入接待区,优雅的大理石材质前台,勾勒出项目高贵奢华的氛围。结合在地文化和现代工业科技设计,其扬帆式造型,给予来者一种登舰起航,扬帆出海的既视感,提升空间的尊贵感。
Stepping into the reception area, the elegant marble reception desk Outlines the noble and luxurious atmosphere of the project. Combined with local culture and modern industrial technology design, its sail shape gives visitors a visual sense of boarding and setting sail to sea, enhances the sense of space dignity.
屹立在空间中心的时光酒廊,给整体带来强烈的视觉冲击感,力求让客户在踏入售楼部之始,便感受到尊贵休闲的生活体验。
Standing in the center of the space, the time lounge brings a strong sense of visual impact to the whole, and strives to make customers feel noble leisure life experience when they step into the sales department.
无数光线透过这个圆柱形玻璃柱体,在折射光线的照射下,空间的每个角落都变得更加灵动,同时也提升了视觉的美感。
Countless light rays pass through this cylindrical glass column, and the refracted light makes every corner of the space more flexible, while enhancing the visual beauty.
大海的波涛汹涌总是无法平静,原来月亮一直影响着它的潮起潮落,但是大海不断的流动改变着自己的形状来适应各种地形的变化,就像与时俱进共同进步,创造不一样的时代,发展创新努力奋进。
The sea at night is always choppy can not be calm, the original moon has been affecting its ebb and flow, but the sea constantly changing its shape to adapt to the changes of various terrain, like progress with The Times, create different times, development and innovation efforts to forge ahead.
帆在风的推动下造型各异,流晶“帆”系列作品意在定格帆的不同形态。该系列雕塑没有生硬的线条,依然饱含能量,就像海上每一个迎风背风的瞬间,都是竭尽全力、无所畏惧,乘风破浪抵达彼岸。
Sails vary in shape under the push of wind, and the sail series aims to frame different forms of sails. This series of sculptures is still full of energy without stiff lines. Just like every moment of leeward and windward at sea, they try their best to reach the other shore without fear.
回旋躺椅具有弧线流动的造型,给空间增加了一抹律动感,让驰骋大海的游艇内具有流动的线条之美,柔化了刚硬的梁与柱,象征空间筋脉的格局设计有了柔软的曲线,构筑当代室内空间的前景。
The circular lounge chair has a flowing arc shape, which adds a sense of rhythm to the space. It makes the yacht running in the sea have the beauty of flowing lines, softens the rigid beams and columns, and creates a soft curve for the pattern design symbolizing the space veins, building the prospect of contemporary interior space.
艺术楼梯不仅起到贯穿上下空间的功能,更是艺术的升华。项目中艺术楼梯设计沿用了游艇飞桥的概念,追溯动感艺术的生活质感,最大尺度打造场景化体验,呈现现代轻奢体验式空间。
Art staircase not only plays through the upper and lower space function, but also the sublimation of art. The art staircase design of the project follows the concept of the yacht flybridge, pursues the dynamic artistic life texture, creates scene experience at the largest scale, and presents the modern light luxury experiential space.
楼梯上的艺术吊灯结合游艇的航行中带起一片片上升的起泡,提取其形态,加以现代的手法,打造出犹如航行中上升气泡般的优雅形态。设计师利用亚克力与光源配合制成的模块化灯具,具有调光功能,用于直接或间接反射光,创造无限的配置选择。
The art chandelier on the stairs combined with the yacht sailing with a piece of rising bubbles, extract its form, to be modern techniques, to create an elegant form like rising bubbles in the voyage. Modular lamps made of acrylic in conjunction with light sources, with dimming features, are used to reflect light directly or indirectly, creating unlimited configuration options.
洽谈区充满活力的年轻座椅系统,与海洋游艇文化相辅相成,设计师精妙的构思,把层叠的半围合沙发互为格挡,强化尊享氛围。
The negotiation area is full of dynamic young seat system, complementing the ocean yacht culture. The designers exquisite conception, the stacked semi-enclosed sofa each other, strengthen the privileged atmosphere.
透过窗外就能感受的长达半公里的超长水岸线,宛如在海上行驶着的游艇,舒适静谧的空间,自然与光线似有似无的置于交互之间。
Through the window, you can feel the ultra-long coastline of half a kilometer, just like a yacht driving on the sea. The comfortable and quiet space, nature and light seem to be placed in the interaction.
健全的配套,高端的物业,精致的细节把控,驰骋的游艇激起海浪,犹如舞蹈家飘逸的裙摆,浪花携海风席卷而过,洁净的海洋气息涤荡出勃勃生机,触发访客对未知的求索之心。
The sound supporting facilities, high-end property, and exquisite details are controlled. The sailing yacht arouses the waves, just like the elegant skirt of a dancer. The waves sweep by with the sea breeze, and the clean sea breath is full of vitality, triggering the visitors’ heart of searching for the unknown.
在空间设计中融注当地自然人文风致,从游艇会奢华舒适的体验中获取灵感,将滨海风光与当下流行的“游艇文化”“向海文化”相结合,传达别具一格且安闲自在的体验。
In the space design, the local natural and cultural charm is infused, and inspiration is obtained from the luxurious and comfortable experience of the yacht club. The coastal scenery is combined with the current popular yacht culture and to the sea culture to convey a unique and comfortable experience.
原始形状的柔和形状中的几何元素随着正负空间非常规节奏的跳动而舞动,强化尊享氛围,彰显了高起点、高定位的设计思路。
The geometric elements in the soft shape of the original shape dance with the irregular rhythm of positive and negative space, strengthening the atmosphere of enjoying, highlighting the design idea of high starting point and high positioning.
在共享厨房操作台上,厨师挥舞着手中的工具,犹如演奏出一曲铿锵有力的交响乐,从色、香、味、声等多个角度刺激食客的感官,享受温馨共享的恣意生活。
On the shared kitchen operating table, the chef wields the tools in his hand, just like playing a sonorous symphony, stimulating the senses of diners from multiple perspectives such as color, fragrance, taste and sound, enjoying the warm and shared life.
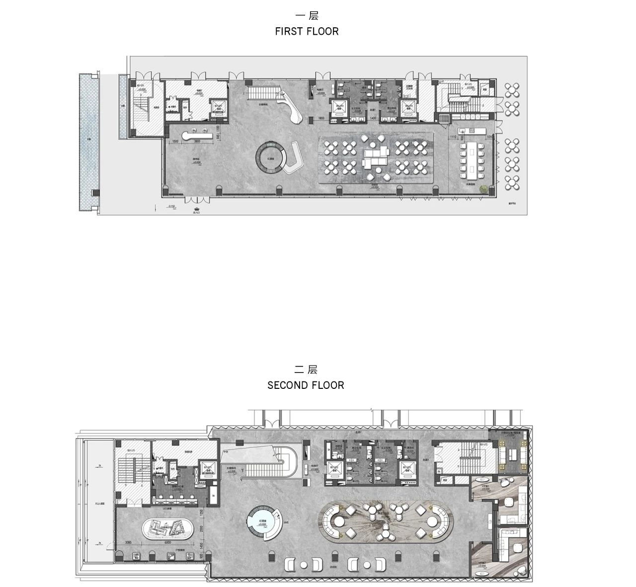
平面图 // Floor Plan //
样板间 // Model Room //
PROJECT NAME:MINZHUSHUIAN
茗筑水岸项目
项目地点: 广东 · 广州
业主单位: 广州南沙开发建设集团有限公司
室内设计: CAPOL 华阳国际
软装设计: LESS 力思国际
建成时间: 2023 年
设计面积: 约 1200㎡
LESS 力思|示范区的蜕变时代
A Time of Transformation
LESS 力思 | 样板间·对理想生活的艺术演绎
LESS 力思办公 | 探寻写字楼的设计美学
LESS 力思 | 15 周年庆典暨 2020 年终晚会
LESS 力思 | 拾伍·载,简而不凡
LESS 招聘 2023 | 寻光计划
力思国际室内设计机构
设计成就美好生活
LESS DESIGN INTERNATIONAL PTE.LTD.
新加坡力思国际设计有限公司
国际家具 环球艺术 产品研发 室内设计
香港力思国际发展有限公司
国际家具 环球艺术 产品研发 室内设计
深圳前海力思设计有限公司
室内设计 软装设计 工程管理
力思国际控股(广州)有限公司
室内设计 软装设计 工程管理
广州力思室内建筑设计有限公司
室内设计 软装设计 工程管理
广州力思园林与室内工程设计有限公司
室内设计 软装设计 工程管理
广州德梵偲装饰工程有限公司
家具设计 艺术设计 装饰工程
力思设计管理学院
你的成功 我的成就
--
企业资质:建筑装饰工程设计专项资质乙级
设计总部:广州市海珠区工业大道北 67 号凤凰创意园 6 栋 102
LESS 力思 设计成就美好生活
广州
客服
消息
收藏
下载
最近




























































