查看完整案例

收藏

下载
面对商业项目,「设计」往往是鼎合最后一步才会考虑的部分。设计师习惯从一个更大的维度思考,跳脱出项目本身,不断挖掘它与所处行业的整体关系,对品牌定位和策略进行梳理,尽可能往前、往远考虑,然后再回到项目本身。
一直以来,南泥湾依靠独特的地方菜系赢得了市场和消费者的认可,可以说是“老字号”的存在。但作为可以承接婚宴的餐厅,南泥湾最大的问题就是被传统印象桎梏,无法接近时尚年轻的消费群体。
因此设计师希望在不流失原有客群的基础上,通过建立全新的视觉体系及空间格调,让南泥湾进入年轻人的视野中,从而获得新的发展机会。
入口,是营造视觉记忆的第一触点,红色的外立面,唤醒了整个街区的艺术感。山丹丹花、圆拱门等元素在满足造型功能的同时,其本身也是一个文化符号,灵感来自歌曲《南泥湾》:花篮的花儿香、鲜花开满山、如今的南泥湾、陕北的好江南……每一处设计都是地域特色的延续和表达,包括餐厅的名字,都是来自于这首歌谣。
极具辨识度的雕塑娃娃,是鼎合设计师亲手为南泥湾设计的IP形象。以大厅为中心进行动线规划——散座区、操作区、二楼包间宴会厅,左右分流避免过度设计的同时保证了宾客便捷性。
镜面天花的处理,将原有相对压抑的空间高度调整到更为舒适的尺度,穿梭其中,感受南泥湾稳重而时尚的全新气质。
古铜色金属格栅是从南泥湾logo的演变而来,提高了空间质感的同时解决了散座区宾客的隐私问题,阳光穿过格栅,极具中国意境美。
圆拱造型承载着西北窑洞的情感,但设计师通过更具现代感的设计手法与传统文化拉开距离,希望淡化大众对南泥湾品牌原有的刻板印象。
在视觉上柔化空间角落,创造更有层次和趣味性的空间环境,再通过巧妙梳理,形成相互延展又互不干扰的空间格局。
为了满足不同群体需求,设计师在二楼规划出足够数量的包间及宴会厅。
这个包间的灵感来自于“南泥湾,陕北好江南”的经典歌词,设置错落有致的景观,视觉上充满生机,光影流转,带人回到梦中故乡。
在峰回路转的空间里,壁布上的山丹丹花将每个功能各异的包间连贯成一个整体,形成属于西北的文化记忆。
设计并不仅仅只是“装饰”的表面改变,而是通过前瞻性的思考,从内而外的输出品牌更深层的内涵,本质上是要求「设计」有保障项目商业价值在未来持续发展的能力,而非追逐流行。
△ 山丹丹花纹样设计
IP原创设计
IP形象设计手绘图
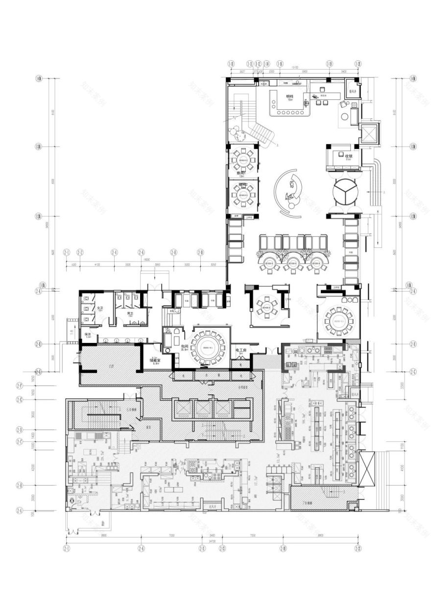
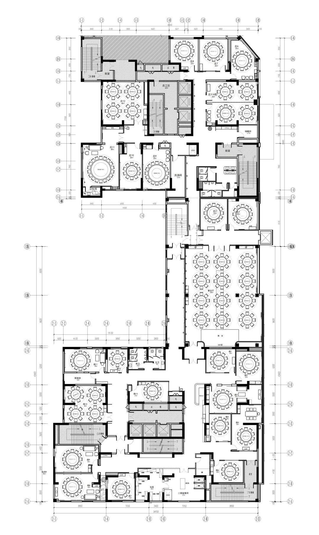
项目平面图
△ 一层平面
△ 二层平面
项目信息
项目面积:2400平方米
设计时间:2021年11月
落地时间:2022年9月
设计总监:孔仲迅
方案设计:白雪、丹俐骁
陈设设计:大境陈设
IP原创设计:白雪
品牌设计:睿高品牌咨询
摄影:王鑫炜
视频:马晓明
鼎合设计团队
鼎合设计成立于2006年,创始人刘世尧与孙华锋是中国知名设计师,建筑师的背景加之多年来对设计与生活的沉淀,赋予鼎合对设计本质的深层思考,并同几位合伙人一道,不断实践、突破与创新。
鼎合设计拥有专业的设计师团队,专注于针对客户需求的从策划定位、建筑设计、空间设计到软装落地的全案定制服务。成就每个空间,是鼎合设计的使命也是每位设计师的信条。
鼎合设计的logo源于中国传统四巧板,表达源源不断的创意和对方案落地性始终如一的执着。鼎合设计坚持归零的心态、深入的分析问题以及对细节的考究,不断为对空间美学及生活品质有着挑剔眼光的商业和居家客户提供专业的设计服务。我们坚信,每个空间(项目)都有一个灵魂,且应当被尊重。
真诚设计,真诚地生活。
客服
消息
收藏
下载
最近









































