查看完整案例

收藏

下载
这座位于魁北克的住宅以一种颇具现代感的形式融入了Métis的自然景观。住宅是为多成员家庭而设计,包含两个体量,同过双坡面的屋顶相互连接,并享有一个户外露台。第一个体量包含了厨房和起居室等公共区域,另一个则包含了卧室等私密性较高的空间。
With its volumes evoking the picturesque surrounding in a contemporary manner, the residence settles into the landscape of Métis. Designed to accommodate several people simultaneously, it consists of two volumes with gabled roofs, and is separated by an outdoor terrace. One of the volumes contains common living areas, such as the communal kitchen and the living room, while the other contains the more private bedroom spaces.
▼建筑外观,exterior view
室内的所有木制结构均保持了原始的裸露状态,为室内带来舒适温暖的感觉。宽阔的玻璃门窗在引入全景视野的同时,也凭借精确的定位保证了室内空间的隐私性。住宅的每个部分都得到了充分利用,共同呈现出一种克制而又细腻的质感。
The wooden structure is left visible throughout the interior, sculpting shadows and light while generating a warm and cozy atmosphere. The large openings provide a panoramic view to the surrounding landscape and also guarantee the intimacy for the occupants. Modest and sensitive, the residence exploits the best of all the elements that compose it.
▼从森林和花园望向建筑,view from the garden and the forest
▼双坡面的屋顶相互连接,the two volumes are linked by their gabled roofs
▼露台,terrace
▼室内的所有木制结构均保持了原始的裸露状态,the wooden structure is left visible throughout the interior
▼室内空间呈现出一种克制而又细腻的质感,a modest and sensitive interior design
▼卧室,bedroom
▼黄昏鸟瞰,aerial view at sunset
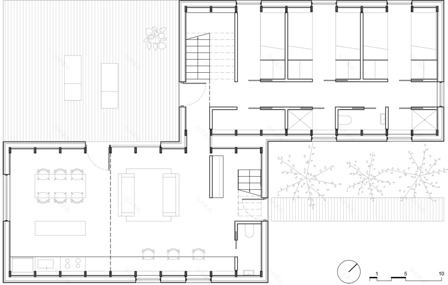
▼首层平面图,plan level 1
▼二层平面图,plan level 2
▼横剖面图,transversal section
▼纵剖面图,longitudinal section
客服
消息
收藏
下载
最近






















