查看完整案例

收藏

下载
荷兰乌特勒支应用科学大学(HU)成立于1995年,由几所先前相互独立的机构合并而成,截止至四年前,学校广泛分布在荷兰乌特勒支(Utrecht)境内的30多座建筑中。如今,学校十分希望在Utrecht科学园校区建造五所相邻的建筑,为各个学科创造一个集中交流的机会,而Schmidt Hammer Lassen Architects所设计的这座教学楼,便是这五栋即将建成的教学楼中的最后一栋。HU15号教学楼总建筑面积22,310平方米,包括了经济学、管理学、信息通信技术、以及媒体传播等八个学院。
UTRECHT, THE NETHERLANDS—28 November 2018—Until four years ago, the HU University of Applied Sciences, a school founded in 1995 through the merger of several previously independent institutions, was spread across some 30 buildings in Utrecht, The Netherlands. The university prioritized consolidating its footprint into five adjacent buildings on its Utrecht Science Park campus, and Schmidt Hammer Lassen Architects’ new structure is the last of the five to be completed. The 22,310-square-metre Heidelberglaan 15 building is home to eight educational institutes in the economics, management, information communication and technology, and media and communication sectors.
▼项目概况,overview
“HU教学楼设计项目实际上是一个空间设计,但这个空间设计充满了挑战,因为每天有超过5800位师生和游客穿梭在这座占地面积3000平方米的大楼中,这给我们带来了难题,” Schmidt Hammer Lassen Architects位于荷兰的合作伙伴兼设计总监Kristian Ahlmark如是说。“为了建造一个社交空间,并使自然光新能够照进建筑中心的最深处,我们将会议室和自习室绕着中央中庭设置。这种设计方式使教学楼好似一个一层连接着城市广场的垂直城市空间。随后,这部分空间与大尺度的电梯连接成一个整体,各个楼层之间川流不息的人群也成为了空间体验的一部分。”
“The HU University of Applied Sciences was a spatial design challenge with more than 5,800 students, faculty and visitors moving through the 3,000-square-metre footprint of the building daily,” said Kristian Ahlmark, Partner and Design Director Copenhagen at Schmidt Hammer Lassen. “In order to create a social gathering place and bring natural daylight deep into the heart of the building, we placed meeting and study rooms around the atrium so that it came to function as a vertical city hall that connects to the city square of the ground floor. The space is then tied together with large, iconic escalators and the movement of people between floors becomes part of the experience of the space.”
▼鸟瞰图,bird-eye’s view
▼建筑外观,exterior view
颜色连接空间 | Connecting with color
室内设计采用白色、灰白色和木质色调。三个横跨了中庭的黄绿色扶梯不仅丰富了室内的颜色,更突出了其空间的干净和淡雅。Schmidt Hammer Lassen Architects对颜色的创新运用还表现在建筑的外立面上——外立面采用中性色的阳极氧化铝表皮,展现出一种颜色相互融合的效果,给人一种柔和的拼贴空间之感。各种颜色逐渐的相互融合也代表了室内布局的交织设计,从而使学校的八大院系能够在室内相互交叉。
The white, off-white and timber color scheme of the university’s interior is accented with a pop of chartreuse that lines the three escalators that transverse the atrium. Schmidt Hammer Lassen’s creative use of color is also demonstrated on the exterior façade that features neutrally-colored anodized aluminium cladding, with one color dissolving into the next to create a gentle patchwork effect. The various colors that fade into each other represent the interwoven design of the interior layout that allows users of the school’s eight institutes to intersect within the building.
▼外立面采用中性色的阳极氧化铝表皮,给人一种柔和的拼贴空间之感,the exterior façade features neutrally-colored anodized aluminium cladding, creating a gentle patchwork effect
建筑东侧沿着Bolognalaan大街布置,从这里看向教学楼,可以发现几处大面积的不透明建筑表皮,这些空间包含着两个可容纳90人的阶梯教室、一个传媒学院的高级电视工作室和一个会议中心。而在建筑的西侧,建筑师设计了一个全新的室内庭院,朝向邻近的学生住宅区。这部分体量逐渐向东立面延伸,使其自身四通八达,最终与现有建筑相连。位于二层的两个大型报告厅突出于外墙并延伸至庭院内部,为其下方的自行车停放区提供了遮挡。
When viewing the building from Bolognalaan street that runs along the east side of the building, two 90-seat lecture halls, an advanced television studio for the media school, and a meeting centre can be identified by the solid patches of cladding. On the opposite side of the building a new inner courtyard is created towards the neighbouring student housing block. The volume steps up towards the east façade allowing it to connect with the existing buildings and activating it from all sides. The two large, ground floor lecture halls jut out from the façade into the courtyard and serve as shelter for bicycle parking beneath them.
▼立面的不透明建筑表皮处包含着阶梯教室、电视工作室和一个会议中心,the solid patches of cladding identifies two lecture halls, a television studio and a meeting centre
▼报告厅延伸至庭院内部,为其下方的自行车停放区提供了遮挡,the two lecture halls extend into the courtyard and serve as shelter for bicycle parking beneath them
建筑师还在外立面和室内楼梯中使用了铝合金覆层的云纹图。这些云纹图不仅丰富了建筑材料,还连接了室内外空间。楼梯上的多孔板对空间有着声学意义,其板面下是吸音材料,可以降低教学楼中人来人往的噪声。建筑采用种植屋面,并设置露台,为学生、教职工和游客提供了一个室外休息空间。
The exterior and interior are also linked by the moiré pattern of the alumimium cladding that can be found not only on the exterior façade, but also on the internal staircases. The perforation on the staircases play a role in the acoustics of the space, and beneath them are sound absorption materials that dampen the noise made by the thousands of people that use the building daily. Atop the building are green roof terraces that provide a relaxing outdoor respite for students, faculty and visitors alike.
▼建筑师在外立面上使用了铝合金覆层的云纹图,the exterior uses the moiré pattern of the alumimum cladding
▼立面细部,facade details
开放的学习空间 | An open learning environment
从主入口进入建筑,一个清新明快的垂直空间便展现在眼前。四通八达的楼梯、扶梯和室内天桥交织成网,横亘在头顶上。在建筑的首层,整面的玻璃墙向来往的人流展示了教育活动,消除了室内外的边界。同时,这种通透性设计也被运用在了首层两个报告大厅的设计中。这两个报告大厅分别可以容纳200和260人,由整片的玻璃墙和类似车库门的伸缩墙限定而成,伸缩墙可以完全打开,加强了其与主入口大厅之间的联系。首层平面还包含了一间由学生运营的咖啡厅、其他餐饮场所、位于南侧的技术设备用房,以及内部设有充足座位的非正式会议空间等。
▼建筑首层的玻璃墙消除了室内外的边界,the full-length windows on the ground floor erase the boundary between indoor and outdoor
Arriving through the doors of the main entrance, a softly-lighted vertical space opens up with a web of stairways, escalators and indoor bridges crisscrossing overhead. The ground floor of the university is designed to erase the boundary between indoor and outdoor by putting educational activities on full display through full-length windows. This transparency is also incorporated into the design of two lecture halls on the ground floor. Seating 200 and 260 people respectively, the large lecture halls feature glass walls and a retractable wall similar to a garage door that can open up completely to allow connectivity with the main entrance hall. The ground floor is completed with a student-run café and other dining options, technical facilities on the south side of the floor, and informal meeting spaces with an abundance of built-in seating.
▼从主入口进入建筑,一个清新明快的垂直空间展现在眼前,a softly-lighted vertical space at the entrance
▼室内设计采用白色、灰白色和木质色调,the white, off-white and timber color features the university’s interior palette
▼楼梯、扶梯和室内天桥在中庭交织成网,横亘在头顶上,a web of stairways, escalators and indoor bridges crisscrossing overhead in the atrium
沿着中庭向上走,每个学院都设有一个专门的学生和教职工中心,分布在上部的六层空间内。这些办公中心是每个学院的核心,内部均设有学院的专属空间和设施,以便教职工和学生碰面和交流。
Moving up through the atrium, each of the university’s institutes has a dedicated student and faculty centre within the building, and they are spread out among the top six floors. The centres serve as the beating heart of each department and include institute-specific space and facilities for staff and students to meet and cross paths.
▼横跨了中庭的黄绿色扶梯强调了室内色调, pop of chartreuse that lines the three escalators that transverse the atrium accent the interior palette
这座教学楼里还分布着超过60间的教室,以及两个均可容纳90人的小型阶梯教室和20间小组讨论室,上述空间皆由所有学院共享。沿着中庭布置的木质方盒子空间则是集中工作间,适于一到两人交流和学习使用。桌面位于福看中庭的墙壁后面,整个设计展示了空间的高效利用。
Also placed throughout the building are more than 60 classrooms, two smaller lecture halls that each seat 90 people, and 20 project group rooms, all of which are shared across institutes. Timber boxes placed along the central atrium are concentration workspaces fit for one or two people to meet or study. Demonstrating the efficient use of space throughout the design, desk surfaces are built behind the walls overlooking the atrium.
▼沿着中庭布置的木质方盒子空间是集中工作间,适于一到两人交流和学习使用,timber boxes placed along the central atrium are concentration workspaces fit for one or two people to meet or study
▼从教室内部向外看中庭,atrium view from the classroom
这座外观简洁的八层教学楼不仅模糊了建筑与周边环境之间的实际边界,同时用大胆的图案线条勾勒出一个醒目的建筑体量。为了方便2018年的秋季教学活动,HU15号教学楼已于9月3日正式向师生开放。
The compact, eight-floor building blurs physical boundaries while cutting a striking figure with bold, graphic lines. The HU University of Applied Sciences Heidelberglaan 15 building opened to students and staff on 3 September in time for the start of the fall 2018 semester.
▼楼梯透视,staircases view
▼室内仰视透视,interior view looking from the bottom to the top
▼总平面图,site plan
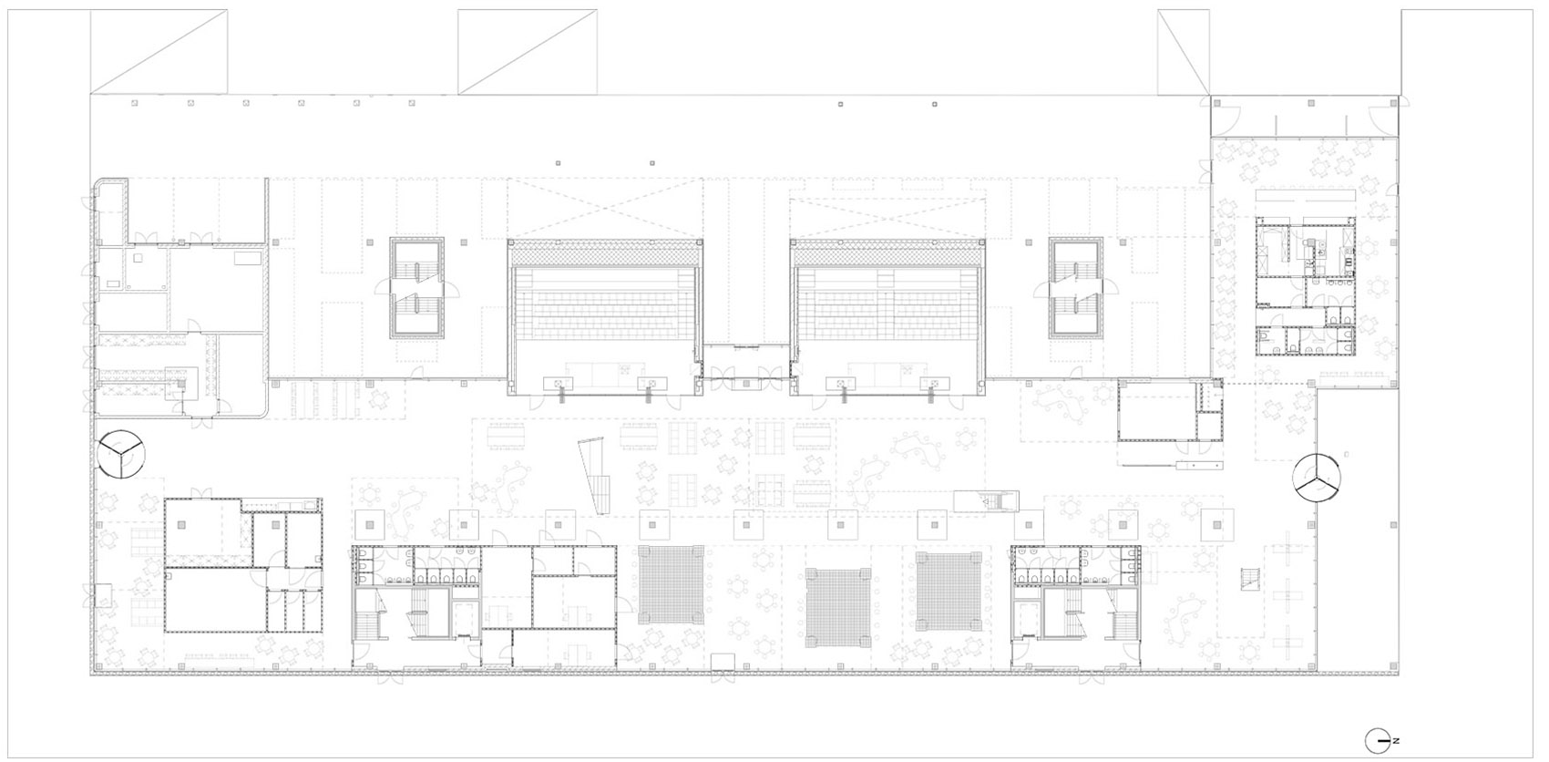
▼首层平面图,1F plan
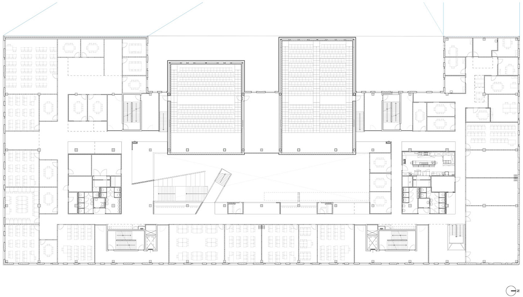
▼二层平面图,2F plan
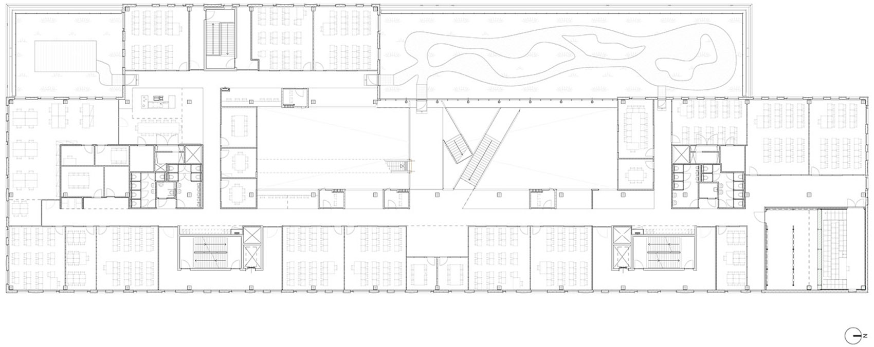
▼六层平面图,6F plan
▼屋顶平面图,roof plan
▼B-B剖面图,section BB
▼手绘草图,sketch
Client: HU University of Applied Sciences
Lead Architect: Schmidt Hammer Lassen Architects
Architectural Engineering: k-support
Contractor: Strukton Workshphere & Besix
Structural Engineer: IMd
M&E: Deerns, W4Y
Acoustics and Fire Safety: Peutz
Sustainability: W4Y
Building Area: 22,310 m2
Competition: 1st prize in an international competition, 2015
Status: Complete, 2018
Photography: Adam Mørk
客服
消息
收藏
下载
最近






































