查看完整案例

收藏

下载
美晖将新办公室迁至泉州老字号“源和堂”的旧厂房。初临现场,恍惚于沉酿的岁月沧桑,墙面水迹斑驳,天棚圆洞投射下的光斑,在梁柱结构间玩着迷藏。瞬间有了一种冲动,去唤醒沉睡的空间记忆,注入新的生机,让其延续并生长。
MH Creative relocates the new office to the old factory of “YUAN HE TANG”, a China Time-honored Brand in Quanzhou. When visitors come to the scene for the first time, they linger on the vicissitudes over years. Water traces are mottled on the walls. Light spots, projected by the round holes of the canopy, play hide-and-seek between the beams and columns. In an instant, an impulse is triggered so as to wake up the sleeping spatial memory, inject new vitality, and let it continue and grow.
▼改造后空间一览,overall view of the office after renovation
设计顺应原有空间格局,循着两条轴线展开。电梯上来,铺展开的是迎宾的轴线。前台白色岩板台面延伸入钢制梯盒成台阶。Kaws的大公仔端坐其上,沉思于不远处蒋晟佛像的慈光中。推开钢制谷仓门,白色岩板继续延伸成会议桌,墙面漏空灯盒提示夹层的结构逻辑,下方白色盒子内嵌成茶水台,横板承托着美晖多年的荣耀。在梯盒里拾级而上,踏着穿孔钢板下投射上来的星光,循着两侧游走的钢管扶手,导引至夹层,钢阶穿出梯盒成钢桥,凭栏处俯视空间的构成穿插。另一轴线上,谷仓门的开合串连设计部和总监室,长向灯盒和管槽进一步拉伸空间的纵向维度。底层书架自由旋转,让平行的两部分空间的开合充满仪式感。贯穿夹层的内廊一端联系钢桥,一端凌空外挑,上下俯仰成趣。
▼迎宾区入口空间,白色前台伸入钢制梯盒,entrance space for the visitors, the white reception bar extends into the steel staircase
▼办公区入口,entrance of the working space
The design conforms to the original spatial pattern and follows the two axes. When going up via the elevator, guest arrival axis is paved. The white rock slab countertop at the foreground extends into the steel ladder box into the sidestep. Big Kaws doll sits on the sidestep, and meditates under the background of merciful Buddha statue not far away (a masterpiece by sculptor Jiang Sheng). Pushing the steel barn door, the white rock slab continues to extend into a conference table. The light boxes, engraved on the wall, give hint on the structural logic of the mezzanine. The white boxes below light boxes are embedded in the tea table. The horizontal plate supports the glory of MH Creative for many years. Ascending step by step in the ladder box, stepping on the starlight projected from the perforated steel plate, following the steel-pipe handrails on both sides leading to the mezzanine, people can find that steel sidestep penetrates through ladder box to roll out a steel bridge, where they can overlook the composition and intersperse of spaces when leaning against the railing. On the other axis, the opening and closing of the barn door are connected with Design Department and Director’s Office. Vertical dimension is further stretched by longitudinal light box and the tube groove. The bottom bookshelf is free to rotate so that the opening and closing of the two parallel spaces radiate ritual significance. The steel bridge is connected to one end of the inner gallery through the mezzanine, while one end of the inner gallery is vaulted externally. In this way, top and bottom are in stark contrast and look interesting.
▼白色台面延伸入楼梯盒形成台阶,the white table extends into the staircase as one footstep
▼会议室的桌子与前台连成一线,table in the meeting room is continuous to the table at the entrance
▼雕像,台面和楼梯细部,detail of the sculpture, table and staircase
空间以穿孔热轧钢板为主要材质,热轧钢板的表面斑驳中,隐约几分温润,突显建筑前世的工业属性。梯盒的围合和踏步均用U形折板构成,通过穿孔的轻盈来化解结构的沉重,而书架的开合进一步变化多维度的穿孔叠加,或浓或淡,如水墨般意境。白天的阳光穿过天棚圆洞游走于层层叠叠之中,夜晚的灯光则衍射成迷幻。墙面的包浆,轻轻打磨后,淡淡喷涂,让屋漏痕依稀。墙裙采用旧时刷漆工艺,而地面水磨石则折射着旧日时光。
The space is made of perforated hot-rolled steel plate. The surface of the hot-rolled steel plate is mottled and slightly soft, which highlights the industrial properties of the old building in the past. The enclosure and stepping of the ladder box are all made of U-shaped folded plates. Light-weight perforation is used to overshadow the heavy structure. Opening and closing of the bookshelf further changes the multi-dimensional perforation superposition, which looks thick or light under ink-like artistic conception. The daylight sun travels through the circular holes in the canopy. At night, lights diffract into a fantasy. The patina on the wall is lightly polished and lightly sprayed to make the vague and dim water stains of the house. The wainscot is applied with the previous lacquer brushing process. The ground terrazzo mirrors the memory of former days.
▼空间中大量使用黑色穿孔钢板,black perforated steel plate is widely used in the space
▼穿孔钢板制成的可旋转书架,使空间更为灵活多变,rotatable shelves made of perforated steel plate make the space more flexible
▼从楼梯上到夹层空间,climb to the mezzanine through the staircase
▼穿孔钢板制成的楼梯细部,details of the staircase made of perforated steel plate
▼夹层使用波形板围合,the mezzanine is enclosed by corrugated plate
▼从夹层俯瞰下层空间,view of the lower floor from the mezzanine
▼从夹层挑台望向设计桌的长向灯槽,光或吊杆从灯槽上的散热孔穿出,from the mezzanine vault to the longitudinal lamp trough of design table, light or suspender passes through the cooling holes on the lamp chamfer.
▼夹层空间,space in the mezzanine
设计师希望通过空间的重新架构,植入新的设计元素,让老建筑得以重生。
The designer expects to re-architect the space and infuse new design elements in order to rejuvenate the old building.
▼总监室,穿孔钢板书柜成轴线的聚焦,Director’s Office, perforated steel bookcase becomes a focus along the axis.
▼卫生间,washroom
▼谷仓门套脱离后,标识串连其间,侧光将阴影投射于墙上,after the barn door cover is detached, the logos are connected in series, and sidelight projects the shadow on the wall
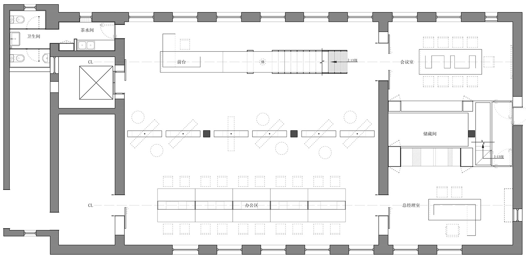
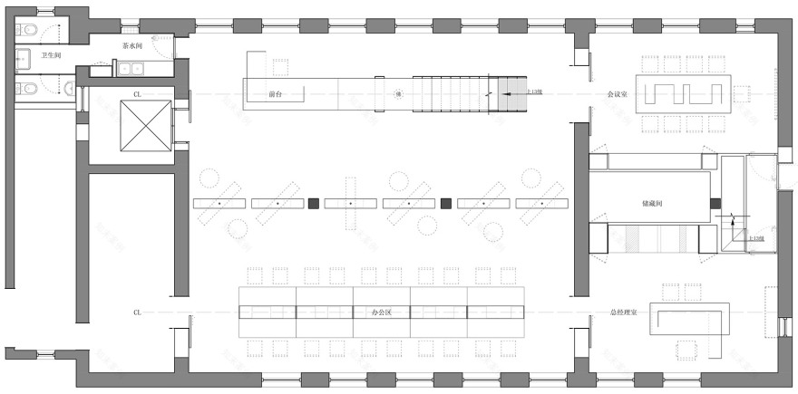
▼下层平面图,plan of the lower floor
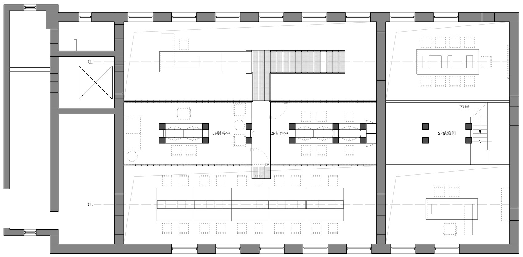
▼夹层平面图,plan of the mezzanine
项目名称:美晖办公室
项目地点:福建 泉州
空间性质:办公空间
项目面积:280㎡
设计公司:厦门喜玛拉雅设计装修有限公司
主案设计:胡若愚
参与设计:曾锦宁
空间摄影:SHEN PHOTO,许晓东
视频剪辑:大羊设计
设计时间:2017年11月
完成时间:2018年9月
Project Name : MH Creative Studio
Project Site: Quanzhou, Fujian
Category:Office
Project Area: 280 ㎡
Design Company: Xiamen Himalaya Design & Decoration Co., Ltd.
Leader Designer: Roy Hu
Design Team: Jinning Zeng
Space Photography: SHEN PHOTO, Xiaodong Xu
Video Designr: BS INSTITUTE OF DESIGN
Design Year: August 2017
Complete Year: September 2018
客服
消息
收藏
下载
最近


































