查看完整案例

收藏

下载
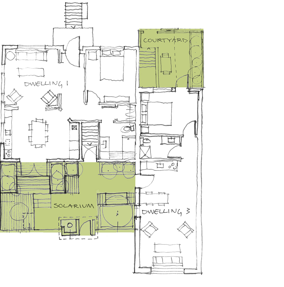
这座古色古香的中世纪房屋坐落在视野良好的地方,从这里可以俯瞰从Albert公园到Calgary内城中心的整个区域,该项目对原有住宅进行了增建。结合多种节省空间的方法,设计师创造出一个更能适应业主忙碌生活的房屋,同时方便业主的朋友、家人和工作同事的不定期地到访。原有的主楼、地下室以及车库区域被翻新成三个独立而紧凑的住宅空间,而新建的温室和庭院将他们结合在一起。
▼整体建筑结构,the structure of the building
Overlooking downtown Calgary from the inner-city community of Albert Park, this quaint mid-century bungalow is an experiment in enhanced residential density. The Home Away uses a number of space-saving strategies to adapt the existing house to the client’s busy lifestyle so that friends, family, and work colleagues can comfortably stay and visit for short periods of time, depending on their ever-changing schedules. The main floor, basement, and garage have been sensitively redesigned and are in the process of being renovated to create three discrete and compact dwellings that share a common greenhouse space and courtyard.
▼翻新后的中世纪住宅中的起居室,living room in a renovated medieval house
▼翻新后的厨房空间与温室相接,refurbished kitchen space connected to the greenhouse
由于房子南面常年沐浴着阳光,设计师选择这里建造全季温室,成为住宅中共享的聚会空间,同时将三个住宅联合在一起,这其中安置了露台、种植园和座椅,以及一系列供人放松娱乐的设施。与当地文化人士合作的花园旨在以最低的维护成本,创建适合业主多样变化的生活空间。他们利用日本烧杉板工艺制作的木材打造出如同小木屋一般的入口空间,并将壁炉也嵌入其中。
▼温室结构示意图,the diagram of the greenhouse
The solarium addition to the south of the house was designed as an all seasons greenhouse that provides a shared indoor/outdoor gathering space, uniting all three dwellings. A terraced deck, with integrated garden planters and seating presents an array of potential configurations for relaxing and entertaining. The garden, designed in collaboration with local permaculturalists, is intended to thrive with minimal maintenance to suit the shifting schedule of the client.The space is centred around a fireplace built into the entryway of the solarium, creating a small entry “hut” of charred cedar, following the Japanese technique of Shou Sugi Ban.
▼温室空间一览,the view of the greenhouse
▼台阶下的休闲空间,leisure space under the steps
▼利用高差分隔温室中的各种空间,separate the various spaces in the greenhouse with height differences
▼壁炉搭配日本烧杉板工艺打造的温室入口,a fireplace built into the entryway of the solarium, creating a small entry “hut” of charred cedar
从南边照进的阳光穿过半透明的PC阳光板柔和地洒在整个空间中,让花园充满了生机。同时设计师模仿树枝的分叉,建造了对角支撑的网格结构顶棚,阳光照射下会形成几何的阴影斑纹。
▼模仿树枝分叉的网格结构顶棚,mesh structure ceiling that mimics branching
▼木质结构与PC阳光板的连接细节,the connection detail of wooden structure and polycarbonate
Taking advantage of the southern exposure, the translucent polycarbonate cladding allows soft, diffuse light to flood the space and give life to the garden. The diagonally braced lattice structure, designed to mimic a network of branches, creates a geometric dappling of shadows. The space is centred around a fireplace built into the entryway of the solarium, creating a small entry “hut” of charred cedar, following the Japanese technique of Shou Sugi Ban.
▼各种木质材料相搭配的座椅空间,seat space with various wooden materials
▼松木入口细节,the detail of charred cedar entrance
▼温室夜间效果,greenhouse night effect
▼建筑平面,the plan
▼剖面图,the section
▼顶棚细节,the detail of the structure
Completion date:2015
Building levels:2
客服
消息
收藏
下载
最近




























