查看完整案例

收藏

下载
本项目位于上海市西虹桥片区北斗产业技术园内,为独栋式办公楼顶层空间,原建筑格局为传统中廊式办公模式,建筑层高介于5米至6米之间,四面墙面采用传统竖条窗设计。甲方希望除了改善建筑的采光、通风等物理性能之外能创造一个带有开敞通透、具有时代感、面向未来的趣味性办公场所。
This project is located in the Beidou industrial technology park, west Hongqiao district, Shanghai. It is the top-floor space of the single office building. The original architectural pattern is the traditional gallery office mode; the floor height is somewhere between 5m-6m and the windows of traditional vertical bars are designed to be applied to the four surrounding walls. In addition to improving the physical properties such as lighting and ventilation, the client hopes to create an interesting office space with openness, transparency and a sense of the times and the future.
▼项目改造后,开敞通透、具有时代感、面向未来的趣味性办公场所,after renovation, office space with openness, transparency and a sense of future
▼项目改造前,before renovation
设计之初首先将本层建筑朝南外墙整体改造为全落地玻璃幕墙窗,极大改善室内的采光及通风。
In the preliminary design, the idea is to transform the whole exterior wall of this floor facing south into an all-floor glass curtain wall window, which will greatly improve the indoor daylighting and ventilation.
▼建筑外观,exterior view
▼全落地玻璃幕墙窗极大地改善了室内的采光及通风,all-floor glass curtain wall window greatly improve the indoor daylighting and ventilation
室内改造设计概念从水平向空间整合和垂直向空间拓展出发,设计重新组织了水平十字形公共交通空间,同时也划分了开敞办公及独立办公之间的区域,地面材料也采用深浅区分不同使用功能,本设计充分利用层高优势植入夹层空间,同时隐匿原建筑结构体系。
▼轴测分解图,axonometric decomposition drawing
The concept of indoor renovation is to start with the horizontal spatial integration and vertical spatial expansion and the design reorganizes the horizontal cross-shaped public transportation space, and also divides the area between open office and independent office; different color shade is used in the floor to distinguish the different functions; The design makes full use of the advantages of floor height to implant intermediate spaces and the original structural system is concealed at the same time.
▼入口大厅,entrance hall
▼电梯厅,elevator hall
▼回看入口大厅&前台,looking back to the entrance hall & reception
▼办公空间入口,office area entrance
经过对功能的整理,划分出水平和垂直两个不同的空间体验,并由一个硕大的木质感十字形态进行空间控制,所有的交通流线都围绕着十字形展开。这个十字横亘在通高空间之中,在隐藏结构的同时清晰表达出了空间的使用逻辑,最终希望能让空间的物质体验和精神感受达到强烈的统一和和谐,也给这个标榜科技和创造的场所引入了一个精神上的标识和图腾。
By means of sorting out of the functions, two different spatial experiences can be found in two different divided horizontal and vertical spaces, and the spaces are realized by a huge cross type form with a sense of woodiness and all transportation routes are arranged in keeping with this cross type form. This cross lies in the vertical space and clearly expresses the use logic of the space while concealing the structure and it is finally hoped that the material experience and spiritual feeling of the space can achieve a strong unity and harmony. It also introduces a spiritual logo and totem to this place where technology and creation are flaunted.
▼以木质十字为中心的办公空间,office area centered on wooden cross
▼木质十字旁的交通空间,circulation space at the side of wooden cross
为了消解巨大的木质十字带来的封闭感,也为了给空间中增添一些活力和趣味性,设计中用竖向格栅增加墙体的通透性,南侧玻璃幕墙引入的光线穿过格栅空隙撒入公共走廊,人行其中跟开敞办公区增添些许互动。
In order to eliminate the sense of closure brought by the huge wooden cross, and in order to add some vitality and interest to the space, vertical grille is used in the design to increase the transparency of the wall. The light introduced by the glass curtain wall on the south side is scattered into the public corridor through the interspace of the grille.
▼办公走道与格栅立面,office corridor & grille facade
▼过道与天桥,aisle and crossover
▼墙体及构造细节,wall construction details
木质十字中还隐藏了一个滑梯,二楼办公的人员可以通过滑梯快捷的到达底层。穿过滑梯时,两侧的格栅所带来的朦胧光影变化和暧昧的视线联系创造出了全新的体验。据悉在使用过程中,十字中隐藏的滑梯很受欢迎,办公人员经常下楼都由此经过,给他们在工作的间隙也增加了不少乐趣。
A slide is also hidden in the wooden cross, which allows people working on the second floor to quickly reach the ground floor. Passing through the slide, the dim light and shadow variations brought by the grilles on both sides and the ambiguous visual connection create a completely new experience. It is learned that during the process of use, the hidden slide in the cross is very popular, office staff often pass by this slide when they go downstairs, which also add a lot of fun to their working gaps.
▼滑梯,slide
本设计采用建筑设计方法处理室内空间,言简意赅,为使用者提供了多种空间模式及体验。当空间的标识性和趣味性均汇聚与此,并被人们逐渐接受和慢慢喜爱,设计的初衷也就达到了。
This design adopts architectural design method to deal with indoor space, which is concise and comprehensive, providing users with a variety of spatial patterns and experiences. When the identity and interest of the space converge here and are gradually accepted and loved by people, the original intention of the design is achieved.
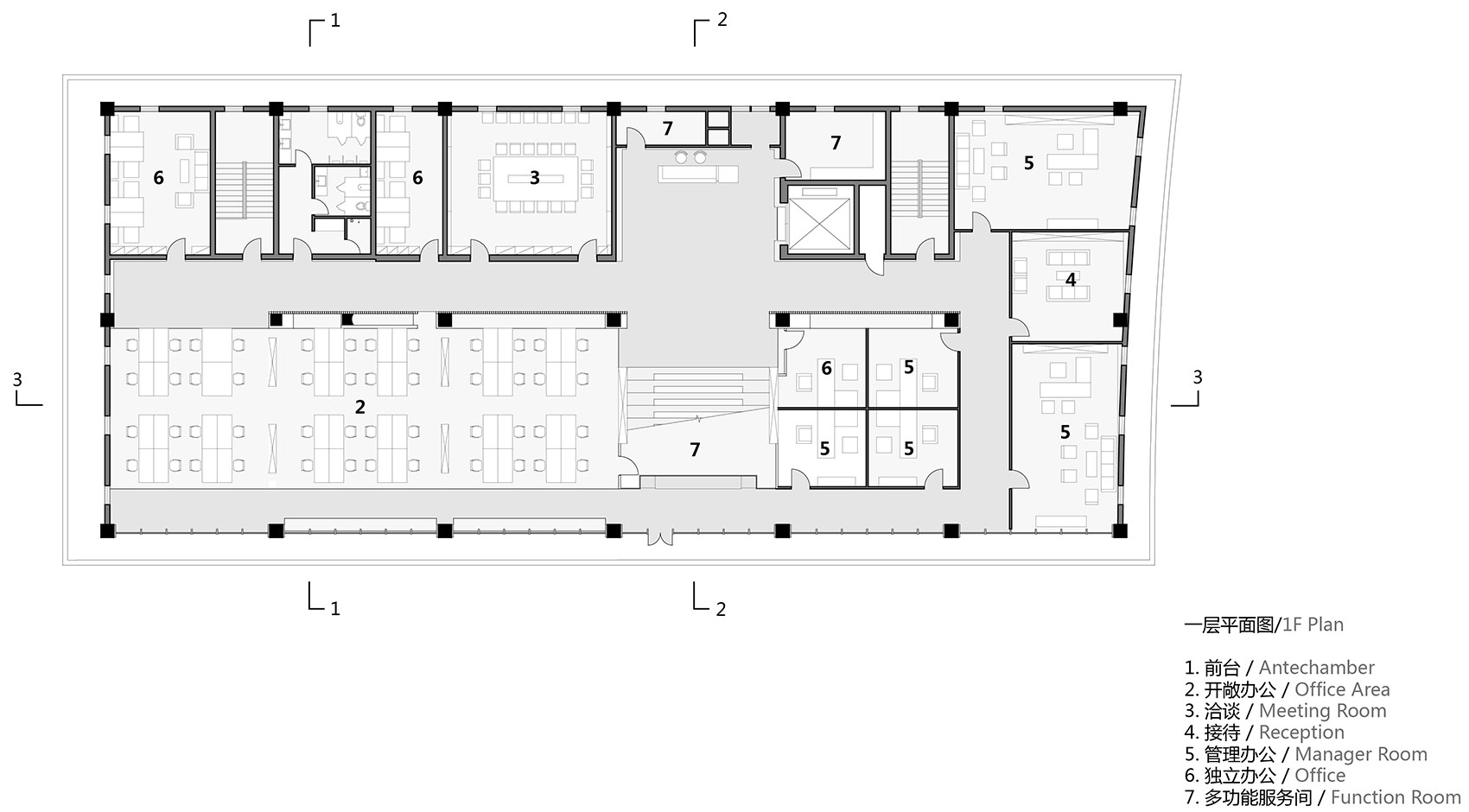
▼一层平面图,first floor plan
▼二层平面图,second floor plan
▼剖面图,section
项目名称:上海舆图科技有限公司办公空间改造
项目地址:上海市高光路
建筑设计:米思建筑
项目设计团队: 周苏宁、吴子夜、唐涛、毛军鹏
设计时间:2016.08
建成时间:2017.08
建筑面积:1700平方米
施工团队:南通捷力达建设服务有限公司
主要材料:黑色免漆板、清漆木饰面、彩釉玻璃、自流平水泥、铝合金方通
摄影:侯博文
文稿撰写人:周苏宁
Project name: Office space renovation of Shanghai YuTu technology co., LTD
Project address: Gaoguang road, Shanghai
Architectural design: Mix Architecture
Project design team: Zhou Suning, Wu Ziye, Tang tao, Mao Junpeng
Date of design: 2016.08
Date of completion: 2017.08
Building area: 1700 square meters
Construction team: Nantong Jielida construction services co., LTD.
Main materials: black lacquer board, clear lacquer wood finish, enameled glass, self-leveling cement, and aluminum alloy square tube
Photograph: Hou Bowen
Manuscript writer: Zhou Suning
客服
消息
收藏
下载
最近






























