查看完整案例

收藏

下载
Chameleon别墅位于巴厘岛西南岸的Buwit地区,周围环绕着葱郁的树木。别墅被建造在一个面积为1英亩的陡峭场地上,能够俯瞰下方茂密的树林与缓缓流淌的河流。入口所在的平面与场地西侧的河流所在平面的高度差达到11米。这一特殊的地理位置对建筑师提出了挑战,即需要打造与周围环境及地形完美结合的建筑。
“Chameleon Villa” is a residence located in the area of Buwit, a village in the lush interiors of the southwest coastal area of Bali. Constructed on an acre of land, overlooking a dense forest and a gentle river below, the villa sits on a steep contour with an 11-meter difference of level between the arrival area and the river that runs the western length of the property. Given such a spectacular location, the challenge was to create an architecture that truly connected with its surroundings and that integrated well with the topography of the site.
▼别墅外观,exterior view ©DANIEL KOH
基于“景观化的建筑”这一理念,建筑师对自然环境与建筑之间的界限进行了柔化,最终使建筑与其所在的地理环境融为一体,呈现出在自然中时隐时现的效果。别墅的两个体量以等高线为依据被布置在场地的不同位置,以便更好地引入下方河流和森林的视野,同时在两个体量之间营造出数个户外空间和花园——这在如此陡峭的土地上可谓是一种难得的体验。
We worked on the idea of ‘landscaped architecture’, by blurring the boundaries between natural and built environments. As a result, the buildings appear to be a part of the land itself sometimes disappearing within it, and then at other times, emerging from it. The buildings are situated on different levels of the land according to the contour lines in a way to take in the vantage points towards the river below and the forest across. Buildings position create in – between outdoor areas and gardens to enjoy which would otherwise be difficult to experience on a land of such a steep pitch.
▼别墅被建造在一个陡峭的场地上,能够俯瞰下方茂密的树林,the villa is located on an acre of land, overlooking a dense forest and a gentle river below ©DANIEL KOH
基于巴厘岛的建筑传统,别墅的多个体量分别容纳了不同的功能空间。所有的公共区域均向室外环境开放;卧室和其他更加私密的空间如办公室、健身房和媒体室等,均可以根据需要来调整开放度。建筑团队自到达停车场的一刻起便感受到了一种充满探索感的氛围。首先呈现在眼前的是一望无际的森林;再向前走,则能够俯瞰到下方建筑的屋顶;而位于最深处的则是客人卧室所在的一层空间。
As per traditional Balinese architecture the different pavillions accomodate different functions and all communal spaces are kept open towards the elements whereas the bedrooms and other more private spaces such as office, gym and media room are closeable volumes. Throughout the property a sense of discovery develops from the moment we land in the parking. Across us we can only see an uninterrupted view of the forest ahead to then discover we are looking over the roof of the building below, to the moment we dive into a deep slit in the land and we find out it is the way to the guest bedrooms positioned at a lower level.
▼主客厅入口,entrance of the main living area ©DANIEL KOH
©DANIEL KOH
▼所有的公共区域均向室外环境开放,all communal spaces are kept open towards the elements ©DANIEL KOH
▼客厅概览,living room overview ©DANIEL KOH
▼从餐厅望向客厅,living room seen from the dining area ©DANIEL KOH
▼厨房,kitchen ©Word of Mouth
▼厨房细部,detailed view ©DANIEL KOH
▼卧室,bedroom ©DANIEL KOH
▼被森林包围的浴室,a bathroom surrounded by forest ©DANIEL KOH
▼浴室细部,detailed view ©DANIEL KOH
▼儿童房,children’s room ©Word of Mouth
主建筑由两个长方形的体量堆叠而成,如同轻躺在场地之中。外部的巨大框架为室内的起居空间提供了保护和遮挡。设置外部框架的目的是防止室内空间受到天气的影响,同时提供隔热层。“伪装式”的承重屋顶能够使下方的空间变得更加凉爽,并能够帮助收集雨水。所有的技术设备均隐藏在框架内侧的空间里。
The main building which is on two levels follows the idea of rectangular volumes stacked on one another off-axis as if they were resting on the land. They are composed of an outer frame which holds and protects the inner one where people would tend to spend most of their time. The purpose of the outer frame is to protect the spaces from the elements and provide insulation. The supporting ‘camouflaged’ roofs provide a cooling effect to the spaces below and assist with rainwater collection whereas the spaces below these frames have been used to store all the technical equipment.
▼外部的巨大框架为室内的起居空间提供了保护和遮挡,the outer frame is designed to protect the spaces from the elements and provide insulation ©Word of Mouth
▼内部庭院,inner courtyard ©DANIEL KOH
▼从屋顶花园鸟瞰,aerial view from the roof garden ©DANIEL KOH
▼与庭院相连的浴室,the bathroom connected with the yard ©Word of Mouth
最终的建筑呈现出简洁而现代的观感,但同时又有带有一种有机而质朴的气息。建筑中使用的材料大部分是来自当地的天然材料,该做法不仅对本地供应商和工匠提供了支持,还最大程度地减少了住宅的碳排放量。
The result is a composition of volumes that are clean and modern but at the same time they feel ‘earthy’ and organic. The material palette is largely comprised of natural and locally sourced materials, meaning that not only could local suppliers and artisans be supported by this initiative, but it also minimized the home’s carbon footprint.
▼楼梯间,stair ©DANIEL KOH
▼走廊,corridor ©DANIEL KOH
▼壁炉细部,detail of the fireplace ©DANIEL KOH
▼淋浴房,shower ©DANIEL KOH
除了被动式制冷和可持续的材料选择之外,住宅还利用太阳能板进行发电,以及利用水循环和雨水收集系统进行花园灌溉。通过这种方式,建筑中使用的材料和可再生能源系统均成为了建筑物所在环境的真实反映,并在维护和使用效率上发挥出巨大优势。
Green systems considered for this project, besides passive cooling and sustainable materials selection, have been the use of solar panels to produce electricity and a water recycling and rainwater collection system for garden irrigation. In adopting this approach, the material composition and renewable energy systems become a true reflection of the building’s location and an advantage for the maintenance and efficiency in its use.
▼休闲室,lounge area ©Word of Mouth
©DANIEL KOH
▼入口路径,access steps ©DANIEL KOH
▼从户外花园望向主建筑,main building seen from the outdoor garden ©DANIEL KOH
▼首层平面图,ground floor plan
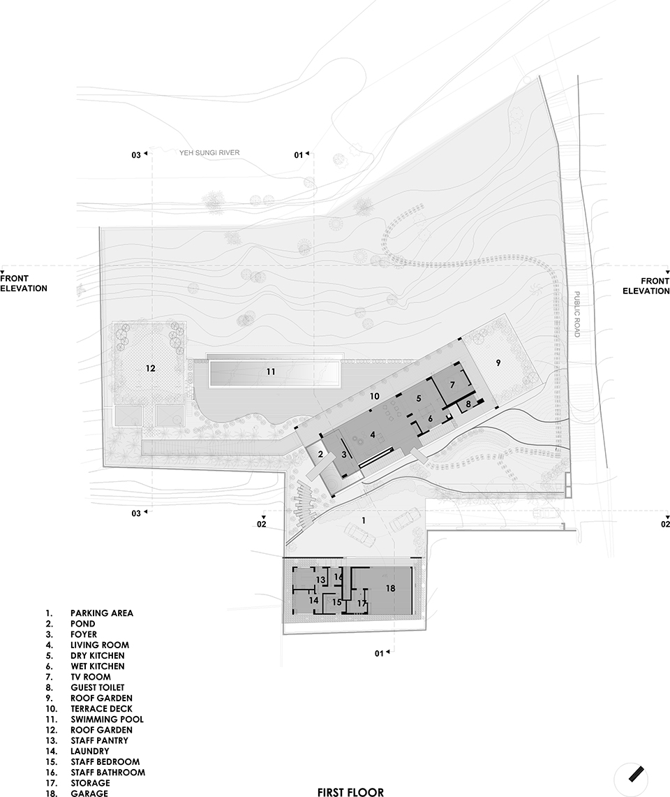
▼二层平面图,first floor plan
▼立面图,elevation
▼剖面图,sctions
ARCHITECT: Valentina Audrito
LOCATION: Buwit, Tanah Lot – Bali
DESIGN TEAM : Abbie Labrum, Dewi Arianti,Agung Sudarma, Rachel Fabrina, Levina Sunarjo, Firman Azi, Parinita Dewan
CLIENT : Johannes Weissenbaeck + Emmanuelle Flahault
CONSTRUCTION PERIOD: 18 months
CONSTRUCTION COMPLETION: January 2017
BUILDER : Johannes Weissenbaeck
COLLABORATORS: Triloka Bali- Robin Bimantoro
CONSTRUCTION MATERIALS:Concrete Structure, Metal, Brass Teak wood, Iron wood, Polished Concrete, Natural Stones, Colored Cement, Granite
BUILDING AREA: 1,015 sqm
SITE AREA: 3430 sqm
PHOTOGRAPHER: Word Of Mouth, Daniel Koh
客服
消息
收藏
下载
最近




























































