查看完整案例

收藏

下载
浙江音乐学院公共场馆群建设在杭州转塘、望江山麓,由大剧院和音乐厅两座建筑联体构成,特殊的形式语言、以及与外界联系密切的功能定位使其自然地承担起学校的东大门的重要职责。
The public stadium complexes of the Zhejiang Conservatory of Music are located at Wangjiangshan Road, Zhuantang in Hangzhou, which consist of two architectural complexes, namely, the Grand Theatre and the Concert Hall. The special formal language and the functional orientation of close relation with the outside world make it naturally serve as the east entrance of the campus that is of great importance.
▼从校园鸟瞰公共广场群,aerial view of the complexes from the conservatory building ©姚力
浙江音乐学院公共场馆群需要在并不大的组团用地内解决一个包括1200座剧场、800座音乐厅、300座练习厅、400座imax影厅及多个中小影厅、更有多个不同尺度规模的中型表演厅、排练厅的复杂功能群组。面对有限的用地范围,向下掩埋或水平分散的设计语言均无法同时满足全部的功能要求,在多种策略比较后,设计师最终选择了归类分组、垂直叠置的方式来组织这些不同功能,并为校园的东入口留出充裕的前场人流集散空间。
The Zhejiang Conservatory of Music public stadium complexes should put a complex functional group including a small 1,200-seat theater, an 800-seat concert hall, a 300-seat practice hall, a 400-seat imax theater and multiple small and medium-sized cinemas, as well as more medium-sized performance halls and rehearsal halls of different scales in the modest land area. In the face of limited land use, the design language of downward landfill or horizontal dispersion cannot meet all the functional requirements at the same time. After comparing various strategies, the designer finally chooses the grouping and vertical stacking approaches to organize these different functions, and set aside ample front-end flow distribution space for the east entrance of the campus.
▼建筑正立面暨校园入口,the main facade and entrance of the campus ©姚力
▼从大剧院前场看音乐厅,the Concert Hall seen from the front court of the Grand Theatre ©姚力
▼从音乐厅前场看大剧院,the Grand Theatre seen from the Concert Hall ©姚力
▼从音乐厅西北角看大剧院,the Grand Theatre seen from the northwest corner of the Concert Hall ©姚力
▼从大剧院北侧看校园入口,an overlook of the campus entrance from the north of the Grand Theatre ©姚力
▼从建筑群下方看校园全貌,campus overview at the foot of the complex ©姚力
▼从音乐厅台基望向校园与群山,the campus and mountain view from the base of the Concert Hall ©姚力
为了消解建筑的体量,建筑师从视觉上将建筑分为三段:从地面生长而起的台基、中段开放的公共空间、以及上段连续的漂浮乐章。
In order to conceal the volume of the building, the architect divided the building into three sections visually: the stylobate growing from the ground, the open public space in the middle, and the continuous floating movement in the upper section.
▼从音乐厅屋顶看大剧院, the Grand Theatre seen from the roof terrace of the Concert Hall ©姚力
▼从音乐厅屋顶看校园全貌,aerial view from the roof terrace of the Concert Hall ©姚力
被火山石包裹的基座容纳着各类设备与辅助功能空间,并通过大台阶与前场地面融合在一起。中段的开敞空间由前厅、交通空间所组成,被玻璃幕墙和纵向百叶所覆盖的表皮也顺应其公共特质,从视野上向外部打开。上段的空间容纳着各类演艺功能空间和办公场所,由30道白色百叶和背衬穿孔板所构成的复合流动表皮将这些空间统一在一个整体的“漂浮乐章”之中。
The volcanic-enclosed stylobate accommodates a variety of equipment and ancillary functional spaces that are merged with the front-end ground through large steps.The open space in the middle section consists of the front hall and the traffic space. The surface covered by glass curtain wall and longitudinal louvers also conforms to its commonality characteristics and opens to the outside from the horizon.The upper space accommodates a variety of performing functional spaces and office venues. The composite flowing surface consisting of 30 white louvers and backing perforated panels unifies these spaces in a single “floating movement”.
▼横向和纵向的百叶对比,the contrast between the vertical and horizontal louvers of the facade ©姚力
▼大剧院与北侧教学楼的体量关系,the relationship between the volumes of the Grand Theatre and the north school building ©姚力
▼音乐厅西侧,west facade of the Concert Hall ©姚力
▼支撑i-max影厅的斜柱,the supporting column of the i-max movie hall ©姚力
▼从音乐厅的室内楼梯看大剧院,the Grand Theatre seen from the interior of the Concert Hall ©姚力
室内的处理延续了建筑外部的整体性,空间成为了室内营造的核心,在内置盒子体量的表面则通过混凝土、grc、钢、木材等材质的应用和对比,试图传达出符合艺术院校对外窗口氛围的戏剧化空间。
The interior treatment continues the integrity of the exterior of the building. The space has become the core of the interior creation. The surface of the built-in box is designed to be consistent with the dramatic space of the showcase atmosphere of an art academy by the application comparison of concrete, grc, steel, wood and other materials.
▼大剧院公共门厅,the public hall of the Grand Theatre ©陈兵
▼交通空间,circulation ©陈兵
▼音乐厅公共区,public area of the Concert Hall ©陈乙
▼音乐厅的望山阶梯,the grand stair of the Concert Hall ©姚力
▼音乐厅的山景大厅,the Concert Hall with a mountain view ©姚力
▼公共空间细部, interior detailed view of the public area ©陈乙
▼楼梯细部,stair detailed view ©陈乙
▼音乐厅室内,internal space of the Concert Hall ©陈乙
▼大剧院观众厅,auditorium of the Concert Hall ©陈兵
最终有限的造价迫使建筑师同意取消了一部分原计划覆盖全部屋面的穿孔铝板,而从航拍中展露的出的这一未完成状态,也真实地讲述着一个关于建造过程多方博弈的故事。
The final limited cost forced the architect to agree to cancel a part of the perforated aluminum plate that was originally planned to cover all the roofs, and the unfinished state revealed from the aerial photography also tells a true story about the multi-player game in the construction process.
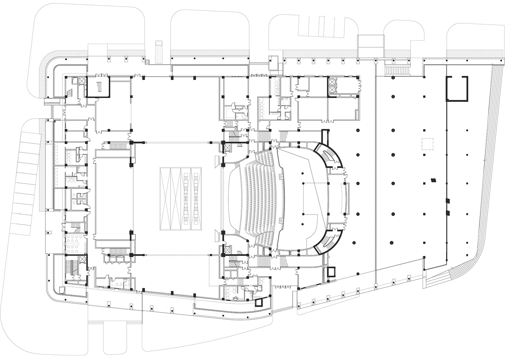
▼大剧院一层平面图,ground floor plan of the Grand Theatre
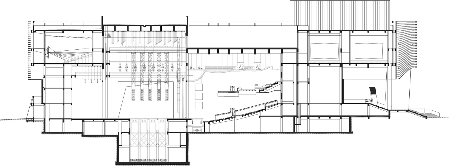
▼大剧院剖面图,section the Grand Theatre
▼音乐厅一层平面图,ground floor plan of the Concert Hall
▼音乐厅剖面图A,section A of the Concert Hall
▼音乐厅剖面图B,section B of the Concert Hall
客服
消息
收藏
下载
最近
















































