查看完整案例

收藏

下载
该项目位于涩谷神山町,这里以安静的住宅区闻名,多个国家的大使馆也坐落于此。最近,人们开始将这个区域称为“Okushibu”,意思是“涩谷之外”(“Beyond Shibuya area”)或“涩谷深处”(“Deeper Shibuya”)。该片区拥有许多小咖啡馆、酒吧、餐馆、书店,每间店铺都以自己的特别方式存在着。近年来这块区域已经成为一个备受关注的地带。该项目旨在翻新一栋有着40年历史的住宅楼,该住宅位于与主街相连的一段上坡路旁,夹在商业区和住宅区之间。
Kamiyamacho, Shibuya. This area is known to be a quiet residential area, with embassies of several countries. Recently, people have started to call this area “Okushibu”, meaning “Beyond Shibuya area” or “Deeper Shibuya”. There are a lot of small cafes, bars, restaurants, bookstores, each with a unique presence, and has become a much talked-about area in recent years. This project was a renovation of a 40-year old residential building, located a short uphill from the main street of “Okushibu”, just in between the commercial and residential areas.
▼翻新后的建筑外览,the exterior of the building after renovation
整栋建筑已经空置了好几年,因此,除了建筑基础已有严重的损坏之外,内部和外立面也都有着明显的破损。然而,设计师还是感受到了该建筑的特别之处,同时认为它会对整个社区带来特别的影响。设计师从与业主交流中得知,他们希望在现有的基础之上将这座建筑打造成一个全新的存在。根据这一目标,设计师开始了翻新设计,试图重新阐释建筑与场地之间的关系。
The building had been vacant for several years, and as a result, there was obvious deterioration of both the interior and façade, in addition to significant damage to the building foundation.However, I remember very clearly feeling that this building had a particular, but very special influence on this neighborhood.Luckily we had the opportunity of meeting with the building owner, a family that hoped to “create a brand new presence for this building in its existing location”. With this goal in mind, we took on to planning the design. To decipher the relationship between the architecture and local area.
▼该住宅位于与主街相连的一段上坡上,夹在商业区和住宅区之间,the residential building, located a short uphill from the main street, just in between the commercial and residential areas
整体建筑分为3层,并包括一层的车库,入口面向商业街。住宅的二、三层可以眺望整个住宅区。设计师提出了在这个设计工作室的顶部建立住宅的想法,将这里打造成一个“实验性的生活场所”,丰富该地区的功能特性。建筑底层以前是一个车库,这里需要大量的加固工作来进行翻新,特别是对基础结构。设计师选用玻璃推拉门来作为工作室的大门,这样可以让路人们观看到工作室内部的情况,促进与周围环境的互动。
▼大玻璃推拉门来作为工作室的大门,glass sliding doors on the entrance
The 3-story building included a garage on the ground floor, which faced the commercial street. The second and third floors look out towards the residential streets of this neighborhood. We proposed the idea of a residence located on top of a design studio, which we thought would be the perfect addition to the local area’s character as an “experimental place of living”.The ground floor, which was formerly a garage, required significant reinforcement work, including that of the foundation. We wanted to open up the studio, by putting in glass sliding doors, which allows for total transparency of what goes on inside the studio. Our plan was to create a studio that will continue to build a lasting relationship with the local area.
▼下层的工作室内部采光良好,the lower studio has good interior lighting
▼混凝土作为主要饰面的工作室茶水间,the tea room with concrete as the main finish
▼灵活多变的储物空间,flexible storage space
对于上层的居住区域,设计师也选用玻璃作为开口处材料,包括建筑前门。厨房被布置在房屋的中心位置,重新塑造一种居住者与周围环境之间的沟通方式。同时,设计师还特意选择了容易随时间变化的材料,铺设在可以直接接触的地方,以此感受老化的过程。住宅中还加入了辐射制热/制冷系统让房屋中的公共空间更加舒适宜人。在这个设计中,设计师并没有特意区分商业和住宅空间,而是通过这种方式,重新建立起人与空间之间的沟通(关系)。设计师希望通过这个项目所汲取的知识、经验和方法能为未来的工作创造提供新的可能。
▼位于二楼的住宅入口露台,residential entrance terrace on the second floor
▼玻璃推拉门作为住宅大门,保证充足采光,glass sliding door as a residential gate, ensuring plenty of light
For the upper residence, we put in many glass openings, including for the front door. We set the kitchen in the center of the layout, re-establishing the way people can communicate with the surrounding environment. In addition, we purposely selected materials that will easily transform over time, for the places where one can directly touch or feel the aging process. We also thought that a radiant heating/cooling system would be the perfect finishing touch to a space where we hoped many a conversations would take place.At Puddle, we don’t differentiate between commercial and residential spaces when we work on a design. Through our designs, we hope to create a communication (relationship) between people and a space.With that knowledge, experience, and task in mind throughout this project, we hoped that it would help us to set new goals for our future works.
▼入口正对楼梯,连接三层的阁楼空间,the entrance is facing the stairs and connects to the three-story attic space
▼厨房被布置在房屋中心,the kitchen in the center of the layout
▼多功能的厨柜细节,the detail of multifunctional kitchen cabinet
▼夜晚的厨房空间效果,night effect of kitchen space
▼暖色调下的卧室空间,bedroom space in warm tones
▼蓝色和混凝土两种饰面结合打造的卫生间, a bathroom with blue and concrete wall
▼一层平面,the 1st floor plan
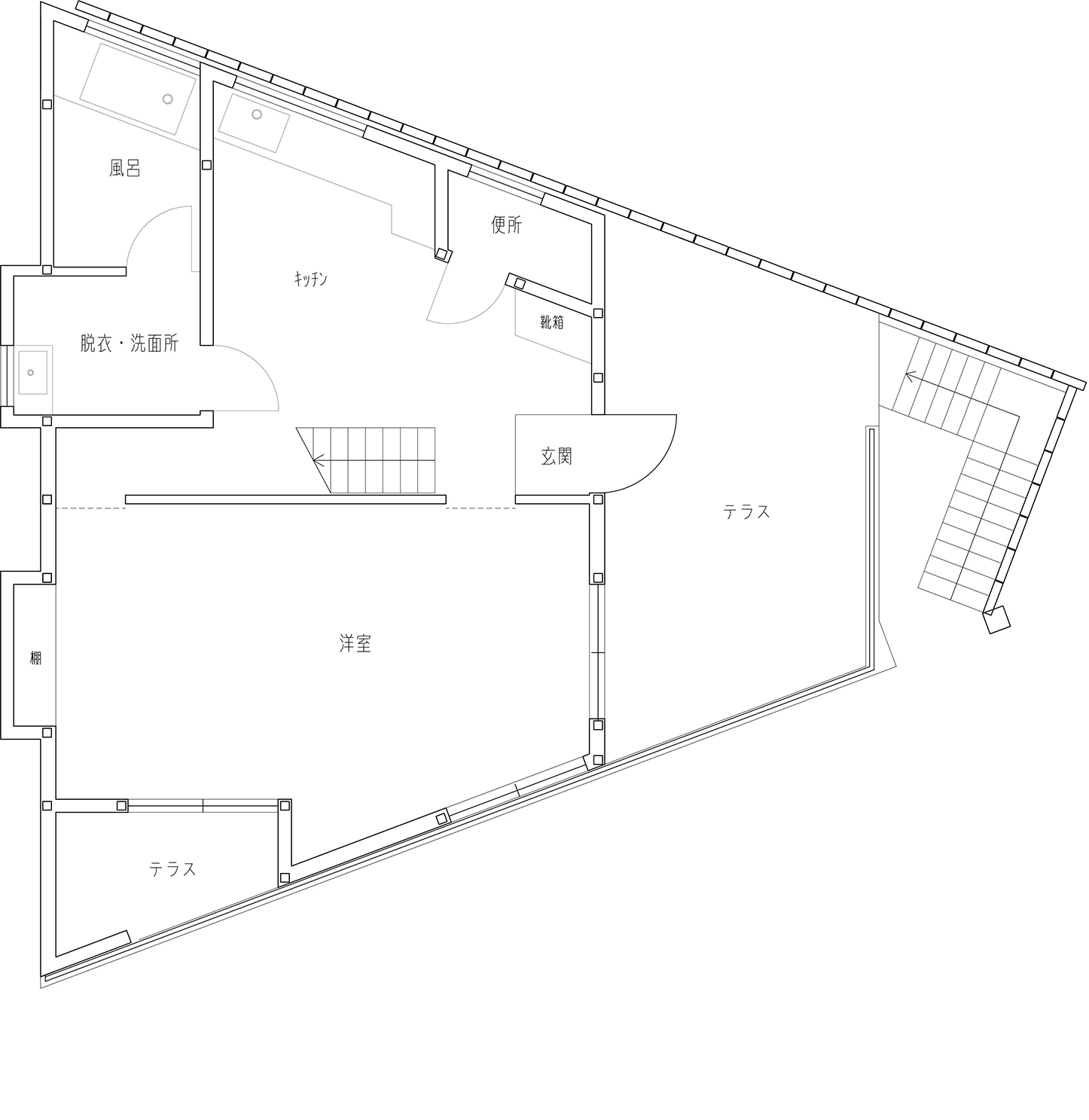
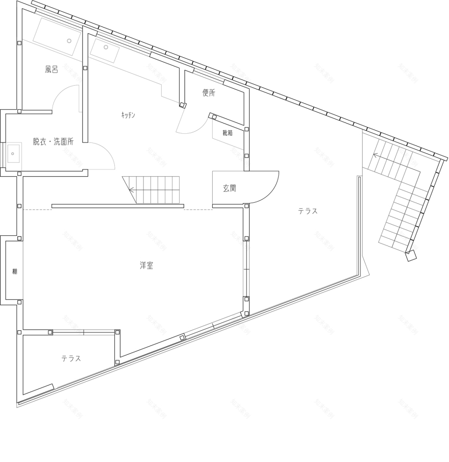
▼二层平面,the 2nd floor plan
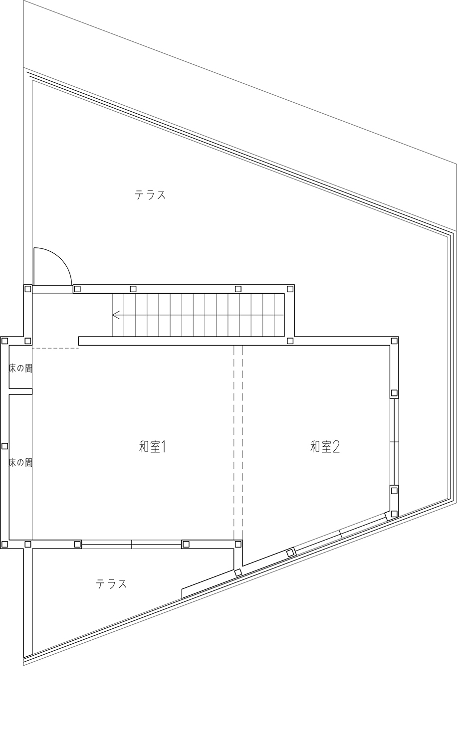
▼三层平面,the 3rd floor plan
Area: Kamiyamacho, Shibuya
Category: Residence with office space
Completion: March 2017
Structure: 3-story steel frame
Area: Unpublished
Design: Puddle + moyadesign
Contractor: &S
Subcontracting companies:Modulex, Duravit, Hansgroche, hillock, Babe Ruth, Takahiro Lumber, Yasumasa Lumber, PS, Earth Japan, Tokyo Blind
客服
消息
收藏
下载
最近

























