查看完整案例

收藏

下载
深圳能源公司的新大厦看起来有所不同,因为它的表现非凡:其建筑外墙的设计针对深圳亚热带气候,呼应代表中国技术创新中心的深圳,提供建筑能源可持续性最大化和提高工作场所的舒适度。这幢为国企深圳能源公司开发的96,000平方米办公楼设计主旨即让它和谐融入充满文化、政治和商业的深圳市中心,同时在城市主轴线上树立出一个新型社交和可持续的地标建筑。此项目由BIG与ARUP和Transsolar团队于2009年国际设计竞赛中合作胜出,并于2012年在“中国硅谷”之称的深圳市开始建设。
The 96,000m2 office development for the state-owned Shenzhen Energy Company is designed to look and feel at home in the cultural, political and business center of Shenzhen, while standing out as a new social and sustainable landmark at the main axis of the city.
▼建筑外观,exterior view ©张超
“深圳能源大厦是我们第一座诠释我们‘无机械的工程技术’想法的摩天大楼—借由建筑本身设计来满足内部使用性能要求,同时降低机电系统的依赖。深圳能源大厦如同是经典摩天大楼的微妙变异,它善用了建筑与自然元素之间的界面:阳光,日光,湿度和风成为内部最大舒适度和质量的设计源泉。它反应着一种看似不同的自然演变,就因为它的表现非凡。” 比亚克英格尔 (Bjarke Ingels),BIG 创始合伙人。深圳能源公司新总部的体量和建筑高度按中心区城市总体规划指标设计,该项目包括两座塔楼,北楼220米,南楼110米,及两栋底下连接着34米高的裙楼。裙楼内部设有主大厅,会议中心,食堂和展览空间。与邻近的塔楼并排,新的总部大楼形成了连续弯曲的天际线,成为深圳的中心。
The volume and height of the new headquarters for Shenzhen Energy Company was predetermined by the urban masterplan for the central area. The development consists of two towers rising 220m to the north and 120m to the south, linked together at the feet by a 34m podium housing the main lobbies, a conference center, cafeteria and exhibition space. Together with the neighboring towers, the development forms a continuous curved skyline marking the center of Shenzhen.
▼起伏的建筑外墙系统,an undulating building envelope ©张超
BIG设计了一套起伏的建筑外墙系统,在塔楼周围形成了波纹状的外皮,脱离传统玻璃幕墙的外观。通过褶叠状的结构,发展出同时封闭和开放的立面,在透明和实墙两侧之间振荡。褶叠墙具高隔热功能,在阻挡阳光直射的同时提供广阔视野。 因此,建筑体从远处看像是披上有机图案的经典体量,从近距离看则可发现优雅折线的结构。
BIG developed an undulating building envelope which creates a rippled skin around both towers and breaks away from the traditional glass curtain wall. By folding parts of the envelope that would reduce solar loads and glare, a façade with closed and open parts oscillate between transparency to one side and opacity to the other. The closed parts provide high-insulation while blocking direct sunlight and providing views out. As a result, the towers appear as a classical shape with an organic pattern from a distance and as an elegant pleated structure from close-up.
▼褶叠状的结构发展出同时封闭和开放的立面,by folding parts of the envelope that would reduce solar loads and glare, a façade with closed and open parts oscillate between transparency to one side and opacity to the other ©Laurian Ghinitoiu
▼优雅的折线,an elegant pleated structure ©Laurian Ghinitoiu
曲折的外立面方向与日照行进对应:在朝北开口最大化可获得充足自然光线和景观的同时,室内也可以减少日光的直射曝照。此可持续的外墙系统在无需任何移动构件或复杂的技术即有效降低了建筑物的整体能耗。
The sinuous direction of the façade corresponds to the solar orientation: it maximizes north-facing opening for natural light and views, while minimizing exposure on the sunny sides. This sustainable facade system reduces the overall energy consumption of the building without any moving parts or complicated technology.
▼街道视角,street view © Laurian Ghinitoiu
▼连续弯曲的天际线,a continuous curved skyline © Laurian Ghinitoiu
从街道望去,一整面褶叠墙缓缓拉开形成的入口,引导着人们从建筑北端进入南端的商业空间,而办公人员则从主广场进入洒满日光的大堂。一旦进入,建筑立面的线性转换成水平延伸:几何方体的植栽箱尺寸是按涟漪般外墙分割尺寸排列组成。
From the street level, a series of walls are pulled open for visitors to enter the commercial spaces from the north and south end of the buildings, while professionals enter from the front plaza into the daylight-filled lobby. Once inside, the linearity of the building façade continues horizontally: the pixel landscape of the stone planter boxes is in the same dimensions and arranged in the same pattern as the ripples of the building envelope.
▼大堂,lobby ©张超
▼立面的褶皱延续至内部,the folding elements are extended to interior ©张超
▼室内墙板反射扩散直射的日光,the interior panels create diffused daylight ©张超
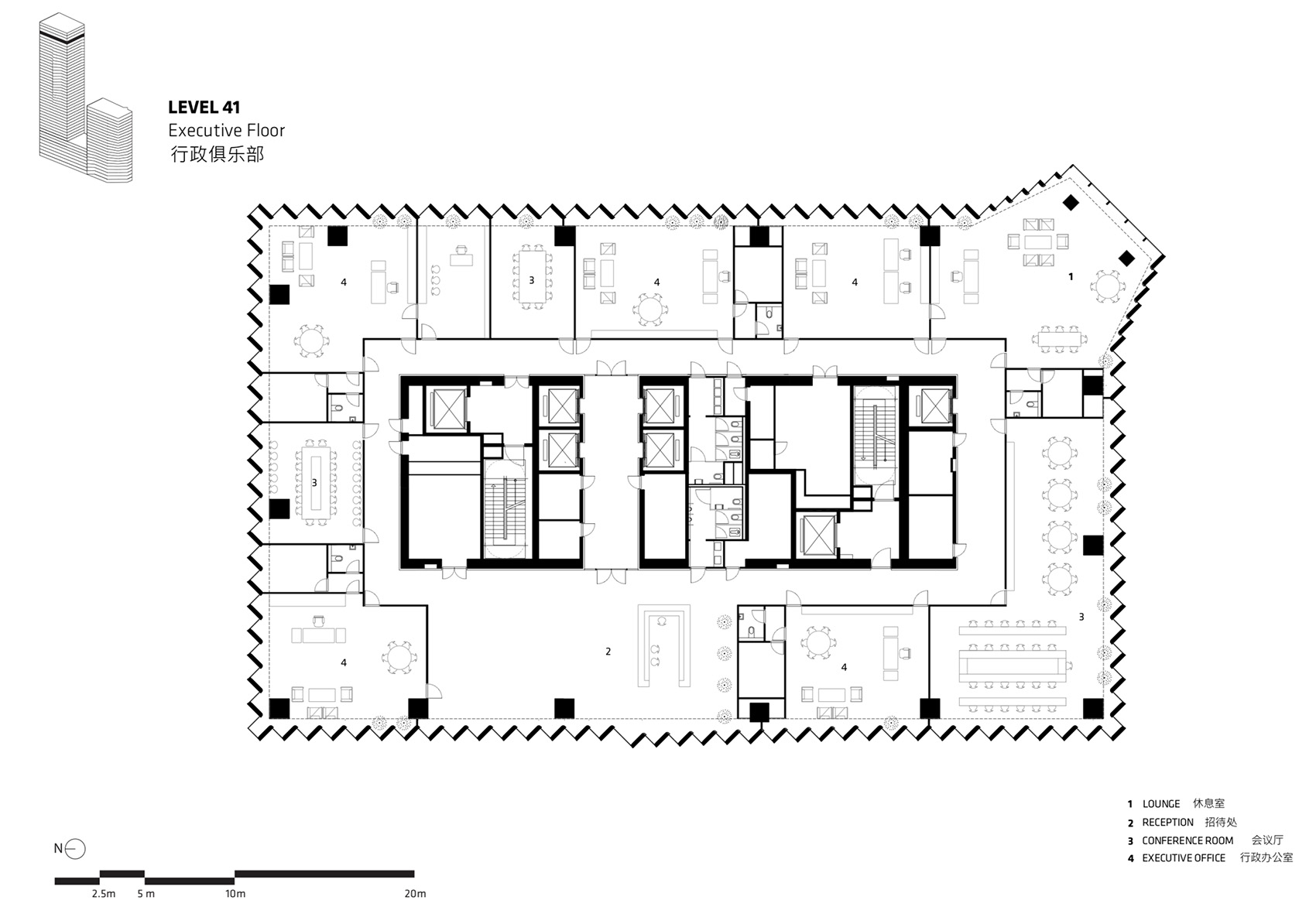
深圳能源公司的员工办公室位于建筑的高楼层,享有最佳景观,其余楼层则是可出租的办公空间。在建筑体外凸的部分,外立面的实墙向两侧平滑展开露出幕墙—创造出各个楼层视野广阔的大面积空间,做为会议室,行政俱乐部和员工使用空间。
The offices for Shenzhen Energy Company are placed on the highest floors for employees to enjoy views to the city, while the remaining floors are rentable office space. Within the protruded areas of the building, the façade is stretched out—two smooth deformations create large spaces for extra good views on each floor, meeting rooms, executive clubs and staff facilities.
▼电梯厅,elevator hall ©张超
▼餐厅,restaurant ©张超
▼会议室,meeting room ©张超
▼楼梯间,stair ©张超
褶叠的外墙一方面透过透明玻璃提供视野,另一面则借由室内墙板反射扩散直射的日光。即使太阳光线直接从东方或西方照入,主要的日照也会因窗户的平面角度从玻璃上反射回来。
The folded wall provides a free view through clear glass in one direction and creates a condition with plenty of diffused daylight by reflecting the direct sun between the interior panels. Even when the sun comes directly from the east or west, the main part of the solar rays are reflected off of the glass due to the flat angle of the windows.
▼城市夜景,urban context ©张超
客服
消息
收藏
下载
最近







































