查看完整案例

收藏

下载
在近年乡村青年外出务工及撤点并校的大势下,村小学关闭空置成为普遍现象,偏远的陕北佳县古枣园——泥河沟村小学亦未幸免。作为村里最大的公共建筑,这座嵌入窑洞聚落,造型迥异的大白楼在低技低造价的限制中该如何改造与利用?
在此,原本营造试图避开常规的风格协调,引入社会学观念,在集体记忆的延续与新功能空间的植入中,营造其与村落共生的新方式。
Following the recent trend of outward migration to urban areas of young people and the impact of ‘School Merging Policy’, it has become a common phenomenon that primary schools in villages close down and turn derelict.
Kai Zhang Primary School, the largest public building in the remote village of Nihegou (Jiaxian Traditional Chinese Date Gardens) in Northern Shaanxi, did not survive either.
How to revitalize this peculiar big white building under low-tech and low-budget conditions? Responding to this question, Original Architect attempted to avoid the stereotypical coherence in style.
By introducing sociological perspectives, we have explored an innovative coexistence between the building and the village through the continuity of collective memories as well as the integration of new functional space.
▼建筑概览,overview ©张思露
差异与记忆|Differences and Memories
由佳县城往北,沿新修的沿黄公路在陡峻壮阔的秦晋大峡谷间驱车十余公里,一片断崖下方枣林郁郁葱葱,山地窑洞聚落隐现于后,犹如绝壁环抱中的绿翡翠。
再往里到达村委会大院,一幢三层框架结构大白楼横立眼前,红砖抹水泥,正面贴瓷砖,蓝色女儿墙,顶立四个金色大字:“开章小学”。这座典型的城市小学建筑在窑洞聚落的尺度与色彩里算得上异物,硬生生嵌入这片依山而建的传统聚落中,与山顶现存的十一孔窑老小学形成鲜明的对比。
Driving over ten kilometres northwards from the Jia County, along the newly-built road along the Yellow River and through the magnificent Qinjin Canyon, the cave dwellings loomed out of the lush jujube woods cuddled by the cliff. Proceeding further to the village committee compound, a three-storey frame-structure building came into sight.
This exceptional big white building was made of cement-covered red bricks with ceramic facing facade and a blue parapet. Four golden characters reading ‘Kai Zhang Primary School’ sat atop, complementing the typical form of a city primary school in China. It was undoubtedly an exotic species in both scale and colour, implanted abruptly into the cave dwelling settlement in sharp contrast against the existing old school, an eleven-hole cave, lying on the hilltop.
▼这座典型的城市小学建筑与山顶现存的十一孔窑老小学形成鲜明的对比。It was undoubtedly an exotic species in both scale and colour, implanted abruptly into the cave dwelling settlement in sharp contrast against the existing old school, an eleven-hole cave, lying on the hilltop. ©杨秉鑫
从常规的保护规划角度来看,此楼通常被定性为风貌冲突,必须拆除或彻底改造,使之协调统一。但在与村里长期调研村史的农大社会学系孙庆忠教授和村民的沟通中,才知此楼对于村里的重要性,她饱含了数十年来村民们兴办小学的巨大努力与集体记忆:
From the point of view of conventional conservation planning, this building would be normally determined as ‘style confliction’ and hence must be demolished or completely reconstructed for harmony and consistency.
However, through the communication with Professor Sun Qingzhong from the Department of Sociology of the China Agricultural University, who had conducted long-term research on the history of the village, and with the villagers, we learned the significant role this building had played in carrying decades of great efforts and collective memories of establishing a local primary school.
▼入口,entrance
2000年以前,泥河沟这个佳县最偏远的村落,一直保存着完整的山地箍窑聚落群。在村民们的记忆中,不论建国前的私塾学堂,或是五十年代租用的四孔窑办学,到六十年代新建的六孔窑和七十年代山顶的十一孔窑,均是在传统窑洞中教学使用。而窑洞空间狭小,坡陡石滑,村民们一直想盖一所像外面一样“真正”的小学。
经过多年的努力,这座村民们期盼已久的“希望小学”在2003年终于建成使用,成为村里最大最现代的建筑,也是村子在建筑类型上与现代城市的首次触碰。为纪念武开章老人及其后人的贡献,取名“开章小学”。小学建成后被定位为中心校,周围村子里的小孩儿都到这上学,多时近200人,成为村里教育最兴盛的时刻。
然而,随着年青村民外出务工和撤点并校的大环境,后来小学学生逐年减少,直到2012年最后一个学生也走了。开章小学关闭后被用于村委办公、仓库、临时住宿使用,楼前操场则用于村民集会议事、秧歌庆典、红白喜事等三年有余,小学建造碑记、旗杆、松树、黑板依在。
越是了解这段历史,越发觉得小学与周边窑洞的形式差异在弱化,消融其中的是村落延续的集体记忆与新功能空间植入的未来。
Before 2000, Nihegou Village, the most distant village in the Jia County, had kept a complete system of upland loop yaodong (cave dwelling) settlement. From the old-fashioned private school before the founding of the People’s Republic, to the four-hole cave rent in the 1950s for public education, and then to the six-hole cave in the 1960s and the eleven-hole cave in the 1970s, the education of children had always taken place in traditional cave dwellings with cramped space and steep slippery mountain route. The villagers longed for a ‘real’ primary school like the one in cities.
After years of hard work, the long-awaited ‘Hope Primary School’ eventually put into use in 2003 and became the largest and the most contemporary building in the village. It was also the first collision in architectural typology between this traditional village and the modern city. The school was named as ‘Kai Zhang’ in order to commemorate the contribution of the prestigious villager Wu Kaizhang and his descendants. The school was later taken as the ‘central school’ where children from the neighboring villages gathered for primary education and held nearly 200 students at its most vigorous.
However, in the time of outward migration and the ‘School Merging Policy’, the number of students decreased year by year. In 2012, the last student dropped out. The school was then occupied as village committee offices, storages and temporary accommodation. While the playground in front of the building was used for assemblies, Yanko celebrations (traditional Chinese rural folk dancing), weddings and funerals. This situation lasted for over three years. Nevertheless, the Inscription of Construction, the flag pole, the pine tree and the blackboards remained unchanged over the continuously changing time.
The more we learned about the history, the stronger we felt that the superficial difference between the school and the surroundings weakened. Instead, here emerged a future with continuity in collective memory coexisting with the addition of functional space.
▼历史沿革,Historical evolution
©孔祥麟
延续与纳新|Continuity and Addition
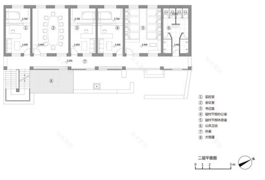
小学是村里除了庙宇、戏台以外仅有的集体产权建筑,改造后的使用对象不仅延续村里办公、活动空间,也将容纳进入村子的志愿者、画家、游客等城市人群,多样化的功能需求与植入如同一个“乡村综合体”,在延续村集体原使用功能的基础上增强其开放性与可持续运营能力。
通过三层空间及屋顶平台的垂直差异性组织,形成由公共活动空间到办公、住宿、观景的纵向分层。
The Primary School is among the only three collective-property buildings in the village. The other two are the Temple and the Stage.
The renovated school would not only continue providing offices and activity space, but also accommodate city visitors such as volunteers, artists and tourists. The diversity of needs makes the new school a ‘Country Complex’, enhancing both openness and the capacity of sustainable operation.
Through the organization of the vertical differentiation of the three-storey space along with the roof platform, the building demonstrates a vertical stratification of public activity, working, living, and viewing.
▼功能分析图,Function analysis ©孔祥麟
▼剖面草图,Profile sketch ©孔祥麟
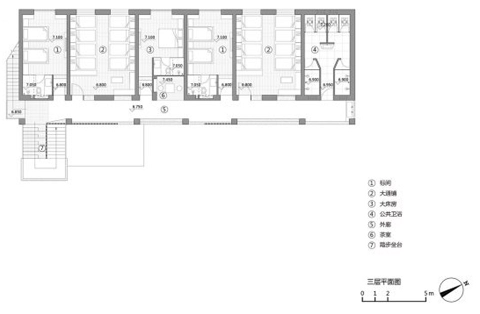
功能所对应的空间改造策略以小学特有的外廊式框架承重墙结构为基础,利用原教室与办公两种面宽尺度(5.1m、3.5m)的差别,植入枣园餐厅、老年人活动中心、公共卫生间、大通铺、标准间等新功能空间。以小学公共外廊空间为枢纽,在楼层上下扩展、延伸。通过深、浅空间的再造,与日常行为、景观视野的连结与强化,触发新空间的诞生。
Functional response is based on the unique mixture of load-bearing wall and concrete frame structure with verandas. New spaces which include a restaurant, a community centre for the elderly, public toilets, dormitories and standard rooms are added making use of the different widths for the classrooms and offices (5.1m and 3.5m respectively).
Taking the public verandas as the pivot, the circulation within the building extends to floors above and below. The regeneration of deep and shallow space and the connection and enhancement of both everyday behaviour and viewing experience result in distinctive space.
▼改造前后对比图,The contrast diagram before and after the transformation ©杨秉鑫
一层楼前院子是村里主要的集体活动空间,由一堵刷成粉红的砖墙围合。每次开会或集体活动,村民们都需要帮来很多凳子,或者拥挤站立围观。针对这一行为,改造倚着原来的院落围墙,向内扩展成石阶坐台。尽端设置伸入建筑内部的公共卫生间,并在石阶退台中预留出错落的树池。希望方便村民活动的同时增加坐望的休闲体验。
The courtyard in front of the building, which was enclosed by brick walls painted in pink, was the prime space for collective activity. Yet the villagers had to carry stools whenever an assembly was held, or they crowded around otherwise.
The original fencing walls extend inwards to form stone steps for sitting space in the reconstructed courtyard. The end of the steps stretches into the public toilets inside the building. Planters are reserved in the setbacks on the stone steps to evoke a relaxing experience while facilitating the villagers’ activities.
▼院落石阶使用——选举,
the use of courtyard stone steps——Election
©唐勇
▼院落石阶使用——秧歌、晾晒,
the use of courtyard stone steps——Yangge, Drying
©唐勇
同时,石墙从建筑外廊扩展出来,包裹住小学的旗杆、松树,形成门前浅院,“开章小学”几个大字顺势从楼顶移下,镶入庭园石墙中,原来的小学纪念碑记也从角落里搬出来,嵌入楼梯入口石墙内。在一层院落的石头空间中凝固小学记忆的片段。
由于经费有限,二层延续原村委办公空间,室内未做太多改造。主要集中在公共外廊与三层接待中心。
In the meantime, the stone walls of the veranda expand outwards wrapping around the flag pole and the pine tree and become a shallow front court. The four characters of ‘Kai Zhang Primary School’ are moved downwards from the rooftop and embedded into the stone wall. The old inscription is also brought back into sight into the wall at the entrance.
This space of stones on the ground floor treasured and displayed the precious fragments of the primary school. Due to the limited budget, the first floor continues functioning as the committee working area with minimal change on the interior. The major focus is on the public veranda and the visitor centre on the second floor.
▼嵌入楼梯入口石墙内的小学纪念碑记,
The old inscription is also brought back into sight into the wall at the entrance
©唐勇
原小学外廊狭长单调,改造利用窗墙厚度与柱间宽度,置入长凳、倚台或茶室凹间、洗手池等家具空间,并压低走廊高度与外廊视野,让其更贴近人体尺度。通过浅空间的再造,为外来客人提供更丰富的交流和休闲空间。
The original veranda was long, narrow and monotonous. Making use of the thickness of the walls and the column intervals, benches, recessed tearooms as well as a washing basin are inserted. Meanwhile, the ceiling height of the veranda and the view out through it are lowered to better fit the scale of a human body. Such re-organization of the shallow space creates richer settings for visitors to chat and relax.
▼改造后的外廊,corridor after the transformation
▼外廊开窗框住了山景,the windows of corridor frame the mountain scenery ©杨秉鑫
▼凹间茶室,tea house ©杨秉鑫
外廊内侧新植入的枣园客栈依据原教室与办公室大小空间的差别,分别设置了大通铺与标准间,原本较高的空间运用当地特色的柳编枣框工艺制成吊顶。大通铺可接待画家、学生等集体游客,延续集体生活的记忆;标准间则主要面向个人和家庭。小学新的运营功能吸引了村外出务工的年轻夫妻回乡创业管理,成为泥河沟村第一个有较大接待能力的客栈。
According to the size difference between the original classroom and office, dormitories and standard rooms are set in the newly integrated Date Gardens Inn. The ceilings of the rooms are made of woven wicker using local technic, which is widely used for wicker-woven jujube baskets. This reduces the relatively high ceiling height.
The dormitories could host group visitors such as artists and students, evoking the memory of collective life; while the standard rooms mainly take individuals and families. This new operational function of the primary school attracts a young couple, who moved out for working in the early years, back to the village as entrepreneurs.
It has now become the first hotel with relatively large capacity in the Nihegou Village.
▼客栈——大通铺,guest room
▼客栈——大床房,guest room
风景的借望|Borrowed scenery
在三层差异的空间中,连接其间的室外楼梯与外廊景观有着重要的意义,它们与风景的对话将由内而外地消解建筑本身的复杂与异样,勾连复合的功能与多样的人群。
The external stairs and the veranda linking the three storeys of distinct functions and features are of great significance. From the outside in, their conversation with the views dispels the complexity and peculiarity of the building itself and connects compound functions and diverse people.
▼楼梯,stairs
改造依据楼梯间在各层的视野与行为差异,由一层石墙的遮蔽到二层格柵的间隔,再至三层的开敞,并在三层踏步一侧设置小坐台,可行可坐可小观。
Following the different views as well as the varied activities taking place on each floor, the levels of openness vary accordingly from the enclosure of stone walls on the ground floor, to the semi-open gratings on the first floor, and finally to the openness on the second floor.
Additional seats were set on one side of the second-floor steps for sightseeing.
▼水泥墙面开窗框住了河景,
Cement wall window framed the scenery of river
©林艺萍
▼木格栅框住了树景,
Wooden grille framed the scenery of tree ©唐勇
小学层叠的外廊空间,在空间的游走或坐倚靠立中,调节内部与周边山水聚落的视野层次,框山纳河,俗屏佳收。并可在客房落地窗前坐望后山的窑洞聚落,享受差异的风景和慢时光。
The sympathetically layered veranda space coordinates the relationship between the inside and the surrounding natural and manmade environment through the movement and short stay of visitors, framing the landscape beyond and shielding off the unwanted.
You can also sit in front of the French sash in the room, overlooking the cave settlements scattered in the back hill and enjoying the slow time flowing through the unique scenery.
▼通往屋顶的室外楼梯,
An outdoor staircase to the roof
再往上通过增设的侧墙柳编钢梯,折入屋顶长廊,直至老槐树边的坐台,曲折尽致,空间豁然开朗,古枣林与黄河崖壁胜景尽入眼底。
Climbing further up along the newly added steel stairs hanging on the sidewall, a rooftop corridor leads towards the seat shadowed by the old sophora, opening up a panoramic view of the jujube woods and the Yellow River running from afar.
▼屋顶航拍,Roof aerial view ©杨秉鑫
▼屋顶平台,Roof platform ©林艺萍
待到夜晚,周边色彩退却,在屋顶平台感受古枣园的静谧与璀璨星空,伴着秦腔知天长。
它凝聚着一个独立纯粹的小世界,淡化了过去与未来。
When the night falls down and the colour fades off, lying down on the rooftop and staring into the starlights dancing with the melody of country tunes, here comes the pure, independent world fusing the past and the future.
▼夜景,night view
这是原本营造团队一直在追寻的“实境”呈现,如唐代司空图《二十四诗品》所言:
取语甚直,计思匪深。 忽逢幽人,如见道心。
清涧之曲,碧松之阴。 一客荷樵,一客听琴。
情性所至,妙不自寻。 遇之自天,泠然希音。
▼总平面图,site plan
▼一层平面,1F plan
▼二层平面,2F plan
▼三层平面,3F plan
▼屋顶平面,roof plan
项目名称:枣园小学改造
项目地点:陕西佳县泥河沟村
业主单位:陕西佳县人民政府
设计单位:原本营造工作室
设计团队:唐勇、林艺苹、杨秉鑫、孔祥麟、张思露
驻场建筑师:杨秉鑫、林艺苹
电气工程师:沈晋
施工单位:佳县信德建筑工程有限责任公司
设计时间:2016.9-2017.5
建设时间:2017.6-2017.10
用地面积:700平方米
建筑面积:750平方米
项目状态:竣工
Project name: Date Gardens Primary School Renovation
Location: Nihegou Village, Jia County, Shaanxi Province, China
Client: The People’s Government of Jia County of Shaanxi
Design team: Tang Yong, Lin Yiping, Yang Bingxin, Kong Xianglin, Zhang Silu
Resident architects: Yang Bingxin, Lin Yiping
Electricity: Shen Jin
Construction: Xinde Construction Engineering Co., Ltd. of Jia County
Design period: 09/2016-05/2017
Construction period: 06/2017-10/2017
Site area: 700 m2
Gross floor area: 750 m2
State: Completed
客服
消息
收藏
下载
最近




































































