查看完整案例

收藏

下载
2016年初夏,我们从秦岭脚下的金凤村顺着小道沿北坡而上,在一个三叉路停下,四周林木茂密。林间隐隐有一个小口,顺口向上几步,才发现迎面一个空置的三开间二层小楼,平顶,白瓷砖贴面。在小楼南侧靠里一些,一栋老房子已圮。拆下的砖瓦被弃置在一边,夯土墙已被压平,尘归尘,土归土。站在场地中央环顾四周,四面不同种类的树木,高低错落,将这块仅一亩半的空地围绕其中。爬上小楼的房顶,视线比树梢略低,路已隐没,而北面关中平原的村子透过树叶隐现,向西望秦岭北麓的山岭,起伏连绵,山势逼人。一个秦岭里的桃花源,这是我们第一次去现场的强烈感受。
Early summer of 2016, we walked on the path of Jinfeng Village, where was on foot of North Slope of Qinling. The forest became denser when we stopped at a tri-directional junction of path. There was a small gap on one side. Walking through it, a vacant two-story house revealed, with flat roof and white tile facade. On the southern side, an old house had ruined. The tiles were abandoned and rammed earth walls had been flattened, Ashes to ashes, dust to dust. Standing in the center, we are surrounded by multi-layer of greenery. Climbing on the roof, horizontal sight was slightly lower than treetop. On the south, the village appears across the leaves. On the north, Pressing Mountain ranges up and down. It was a paradise in the Qinling Mountains,We believed.
▼金凤村旁的金凤书院,The site of Jinfeng academy
秦岭里的桃花源|A peach blossom land in Qinling
在这之前,秦岭植物园的业主表示希望在这幽静处修建一个小型的文化设施,一是作为园区研究人员工作交流的场所,二是留出空间能对一些专业的书籍进行收集与整理。场地的选址在金凤村边,因而这栋房子取名金凤书院。
The client want to build a small cultural facility on the site. Firstly, it will be a studio for researchers work and be a library for professional book. Due to sit close to Jinfeng village, it is named as Jinfeng academy.
▼金凤书院鸟瞰—五面风景的院子,Birdview of jingfeng academy
四面风景的穿透|Penetrating four sceneries
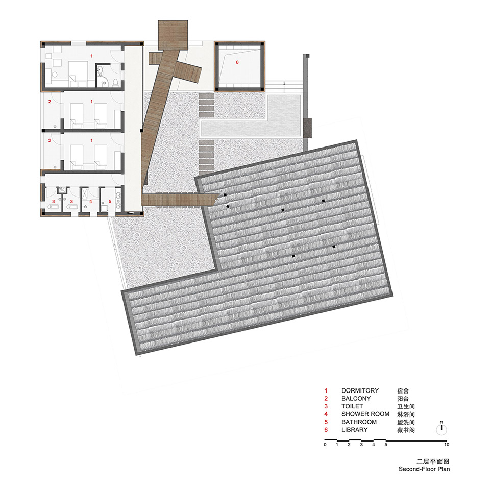
我们想建一个院子,作为书院设计命题的回应,但它却需要有四面风景的穿透,用作对绿荫环绕的场地的回应。在这听似矛盾的前提下,我们开始在场地的东南角新建一栋一层的房子作为研究人员学习交流的工作室,间隔一定距离向西设置一个小的茶室。这两个一大一小的空间被同一个屋顶覆盖,形成一个L型的布局。同理在场地的西北角再新建一栋两层的房子用作住宿,间隔一定距离向东设置一个藏书阁,也同样构成一个L型的布局。两个L性的体块自然而然在场地中间围合出一个院子。而这两个L型又稍稍分离,且转动一定的角度,让东西向的视线和风景在院内贯通。而在每个L型体量下的空隙,又让风景从南北方向互相穿透。站在院子中央,既能感受到建筑的围合感,同时又体验着四面风景的穿透。
We want to build a closing yard as a response to design concept, but it needs penetrate four sceneries. In this seemingly contradictory context, we began to set a one-story room in the southeast corner as a research studio, A small tea room was set westwards in a certain distance. These two blocks were covered by one roof, forming an L-shaped layout. Similarly, in the northwest corner, a two-story room was built for accommodation, and a library was set eastward in a certain distance. Those also constituted an L-shaped layout. The two L shape blocks spontaneously enclose a yard in the middle. The two L-shapes are slightly separated and rotated at a certain angle in order to penetrate sceneries. Standing in the center of the courtyard, you can not only feel sense of enclosure, but also experience the penetration of the sceneries of allsides.
▼金凤书院入口,Entrance of Jinfeng Academy
▼入口局部,Entrance detail
▼穿透风景的院子(西北向),courtyard with penetrating scenery(Northwest Direction)
▼穿透风景的院子(东南向),courtyard with penetrating scenery(Southeast Direction)
枯山水的抽象庭院|Dry Landscape Courtyard
如果说外部的绿荫围出了一个场地的桃花源,两个L型体量围合的,应是一个抽象的核心。在我们的构想中,这里是静思的庭院,抽象的枯山水是她恰当的表现方式。庭院内不种植植物,仅留灰白色的细沙和几组顽石,构成一个抽象的精神世界。而只有青石板铺就的汀步,将这抽象的庭院与外部真实的风景衔接在一起。与此同时,为了增加进入这个场地和庭院的期待感,我们将进入场地的入口进行了调整。新的入口设置在场地北侧,与场地的高差更大,也更为隐蔽。从入口进入庭院,需要更多的曲折与迂回。这也会让心情,渐渐平静下来,更好的去体验这桃花源深处的幽静读书处。
If we say externalgreenery encloses the site of peach blossoms, then two L-shaped block embrace an abstract core. Conceptually, it is a courtyard of meditation. Hence dry landscape is a proper expression in the courtyard. No plants are planted. Only gray sand and several groups of hard rocks constitute a spiritual world. Only path, which is paved with grey stone, connects this abstract courtyard with the real-life scenery outside. At the same time, in order to increase the sense of expectation of entering, we adjust the path to the house. New path is set on the north side of site. The height is larger between house and path. And path becomes more twists and turns. Gradually, your mood calm down and better to experience this quiet study place.
▼抽象的庭院,Spiritual courtyard
老房子的复魅|Re enchantment of old house
与当代的二层平顶小楼相比,已垲的土墙和散落的青瓦似乎更带有一种场地的传统魔力。我们决心复魅已垲的老房子,虽然结构和空间已经现代化了,但我们还是把材料表达留给了传统。黄土加秸秆制成泥墙抹面,青瓦再收集依旧铺在斜屋面上。不经意间,你会认为这栋房子还是之前垲掉的那栋,只不过空间与布局,带来了熟悉中的陌生。
Compared with contemporary flat-roofed house, the smashed rammed earth walls and Chinese-style tile seem to echo local magic. We want to reinvigorate the atmosphere of destroyed old house. Although, structure and space have been modernized, material expression is vernacular. Flatten earth with straw is used to make traditional wall, and old Chinese-style tiles are still covered on the roof. Inadvertently, the atmosphere of new house is redolent of the old, but space and layout bring Familiarity with unfamiliarity.
▼书院室内,Academy interior view
第五面的风景|The fifth scenery
当初站在小楼屋顶去欣赏秦岭的那一刻感动依然萦绕着我们。我们设想在新建筑的屋顶上加一个平台,一个能毫无遮挡的去感受秦岭风景的地方。为了诗意的到达这个地方,一个从庭院开始的云径是必要的。之所以称其为云径,是因为它迂回上升的态势。而屋顶上的这个平台,展现出一个与庭院四面水平风景不同的第五面——跳脱的风景。
The moment when we stood on the roof still touched us. Now we put a platform over the roof, where panorama of Qinling Mountains is present. A trail starting from courtyard is necessary to reach this place poetically. Because of its circling upward trend, we called it as the cloud trail. Hence, the fifth scenery, highlight the difference with four horizontal sceneries.
▼庭院与屋顶平台的构成,Layout of courtyard and roof
▼屋顶上延伸的平台,Platform extending over the roof
▼第五面的风景,The fifth scenery
结 语|Conclusion
金凤书院是土木石尝试使用不同的设计方式回应秦岭里每个具体场所的实践之一。如果说插头崖游客中心的核心理念是尝试创造秦岭中的山水聚落,而金凤书院则更像一首感性,自由的秦岭写意诗。
Jinfeng Academy is one of tumushi’s practices to respond to each specific place in the Qinling Mountains. If the chatouya visitor center is a Shanshui settlement in landscape, Jinfeng Academy ismore like a small free poem.
▼概念生成,Conceptual diagram
▼分层轴测示意,Exploded Isometric Diagram
▼一层平面,Ground Floor Plan
▼1-1剖面图,1-1Section
项目名称:金凤书院
地理位置:秦岭金凤村
面 积:400平方米
设计周期:2016.06-2017.02
建设周期:2017.02-2017.12
业 主:秦岭国家植物园
设计团队:杨期力,白岩,李放,王栋,张文,马丽娜,樊李烨,孙瑞基,原婧雯
驻场主持:王 栋
摄 影:张超建筑摄影工作室
Project Name:Jingfeng Academy
Location:Jingfeng Village, Qinling
Size:400M2
Design Period:06/2016-02/2017
Construction Period:02/2017-12/2017
Client:Qinling National Botanical Garden
Team:Qili Yang, Yan Bai, Fang Li, Dong Wang, Wen Zhang, Marina, Liye Fan, Ruiji Sun, Jingwen Yuan
Charge on Site:Dong Wang
Photography: Chao Zhang
客服
消息
收藏
下载
最近























