查看完整案例

收藏

下载
项目背景 | Background
三亚·六甲酒店(SIXX Hotel)位于海南省三亚海棠区后海村,酒店门前正对的是后海村街道,酒店背后紧邻沙滩,从酒店建筑通往海滩距离10米不到。酒店原是一栋三层的当地渔民的自用住宅楼,建筑师通过结构加固、空间改造,将原有民宅改造成以冲浪为主题的度假酒店。
The SIXX hotel is located in the Houhai village of the Haitang Bay in Sanya. The China south sea is 10 meters away in front of the hotel, and the streets of Houhai village are in its back. The architect transformed the original three storied building, which is served for a local fishermen family for years, to a surfing-theme resort hotel, by reinforcing the old structure and refurbishing the space inside.
▼酒店位置示意,location
▼鸟瞰图,aerial view
▼入口立面,entrance facade
▼细部,detail
原始空间状况 | Original condition
原建筑为当地人一家四口居住,因其对于居住条件要求不高,室内空间分区随意且不合理:建筑西北面开窗巨大,一来正对后海村街道非常嘈杂,二来下午西晒严重;建筑东南面正对沙滩,开窗太小,影响室内采光和视线;一层沿海平台原有通往二层的室外楼梯严重影响采光,并造成一层室外空间的流线混乱;建筑一层空间拥堵,没有设置开敞的公共空间;不适合酒店的功能需求。
Because of a low quality of living condition, the original building served for the local family with an unreasonable randomly divided space: 1. the huge windows on the north-west facade bring lots of inconvenience of the noise from the street and the sun exposing from the west; 2. the stairway on the terrace of the 2nd floor cut off the daylighting, and it cut off the personal traffic as well; 3. The congestion of the first floor makes the whole building being short of the public space as a hotel.
▼改造前状况,original building
建筑空间改造 | Renovation of the space
六甲酒店的空间改造的目的就是:重新划分合理的空间;重新组织合理的动线。使改造后的建筑空间成为一个在功能上和视觉上都能引人注目的海边度假酒店。
To renovate the hotel space is to redivide the space, to reorganize the traffic of the people and the vehicle in a reasonable way. And it makes the renovated space to be a conspicuous hotel, not only visually but also functionally.
▼改造后的酒店外观,new exterior view
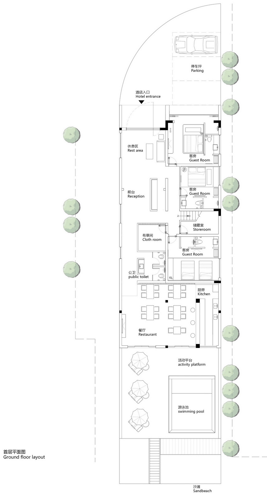
为了将一层空间最大化打通成一个南北通透的公共区域,我们将一部分原始墙体进行了加固,将另一部分墙体进行了拆除。在通透开敞的一层空间里,建筑师分别设置了酒店大堂、公共过道、海景餐厅及无边泳池,改造后的一层公共空间不仅仅拥有了一条清晰合理的空间、动线,同时被引入了清凉的海风,使得深处亚热带的酒店大堂常年不用开启空调。
In order to maximize the first floor into a permeable public space from north to south, the architect removed several partition walls, and reinforced some in the same time. Along the public space of the first floor, there is the lobby, the corridor, the restaurant and the infinity swimming pool, these parts made a clean opened space that can pass through the wind from the sea. Profiting from this, the lobby of the tropic hotel is free to use the air-conditioner for any season.
▼酒店大堂,lobby
▼前台和休息区,reception and seating area
▼前台细部,reception area detailed view
▼公共过道,public corridor
▼吧台及餐厅,the bar and the restaurant
穿过一层开敞的公共区域,是面朝大海的无边泳池,这个无边泳池是由原建筑的养虾池改造而来。面朝大海的还有两层四间客房,建筑师通过外部立面上加固的钢结构,将原有建筑狭窄的阳台改造成了能够观赏海上日出日落的露台。
Passing through from the public space to the sea shore, there is the infinity swimming pool, which is refurbished from a shrimp pool of the fisherman family. There are also, four chambers equipped the large sun-rise—view terraces on this side of the building, which are extended from the old balconies by using a reinforced steel structure.
▼酒店背立面,the rear side of the hotel
▼面朝大海的无边游泳池,the infinity swimming pool facing the sea shore
▼夜景,night view
对于面朝繁华后海村街道的建筑主立面,我们将原有建筑的弧形阳台进行了拆除,建筑外形轮廓被还原成简洁的方形。另外,建筑师将550块水泥轻质砖用阵列堆栈的方式将建筑正立面完整的遮掩起来,这样既保证了沿街客房阳台的私密性,又解决了正立面下午西晒的问题,同时提升了整体建筑的气质。
On the other side of the building, the architect demolished the curved balconies to transform the facade into a radical rectangle form. This new facade which is masked by 550 pieces of grey bricks, redistilled the quality of the architecture, mean while, it keeps the building away from the west-sun-exposing and away from the distribution from the outside of street.
▼客房阳台的轻质砖栅格墙,the brick facade of the guest room balcony
室内及陈设设计 | Interior design and decoration
室内空间以白色、海洋元素为设计基调,局部结合白色马赛克、清水泥、水曲柳原木饰面以及黄铜等材料元素。建筑师在来营造这样一个清新、纯净的空间的同时,室内陈设配上了多样的热带绿植、色彩亮丽的冲浪板、以及浅粉色系的家具。整体室内空间的设计风格非常契合酒店的年轻、休闲、热情、以冲浪文化为主的气质。
The interior space tone is based on the Mediterranean white and navy blue, and united with the white mosaic, the grey concrete, the ash wood and the brass. Decorating with the various tropic vegetation, the colorful surfing boards and the pink mobile furnitures, the architect created a pure and fresh interior space. This makes the SIXX hotel young, passional and casual, meets the feel of the surfing culture of the Houhai village.
▼海景客房,guest room with sea view
▼临街客房,guest room with street view
▼室内细部,interior detailed view
▼立面砖样细节分析图,Detail of the brick workof the main facade
▼首层墙体改造分析图,Renovation of the partition walls of the ground floor
▼总平面图,master plan
▼首层平面图,ground floor plan
▼剖面图,section
客服
消息
收藏
下载
最近


































