查看完整案例

收藏

下载
商丘博物馆位于商丘西南城市新区,收藏、陈列和展示商丘的历代文物、城市沿革和中国商文化历史。博物馆的整体布局和空间序列是对商丘归德古城为代表的黄泛古城池典型形制和特征的呼应和再现,博物馆犹如一座微缩的古城。上下叠层的建筑主体喻示“城压城”的古城考古埋层结构,也体现自下而上、由古至今的陈列布局。
Located in the new district in the southwest of the city, Shangqiu Museum is designed for the collection, display and exhibition of the local historical relics, the urban evolution and the cultural history of Shang Dynasty. The overall layout and the spatial sequence of the museum are the coherence and recreation of the typical forms and characters of Guide which represents ancient city of Huangfan. The museum is like a miniature of an ancient city with stacked main bodies of the architecture, suggesting the “city on city”-type archaeological structure of the buried layers and the display and layout of the transition of location from the bottom to the top as well as the transition of history from the ancient to the present.
▼鸟瞰图,aerial view ©夏至
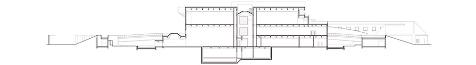
博物馆主体由三层上下叠加的展厅组成,周围环以水面和庭院,水面和庭院之外是层层叠落的台地绿植和其外围高起的堤台(下面设室外展廊),文物、业务和办公用房组成L形体量,设置于西北角堤台之上。设南北东西四门,主入口设在南门,其它三门各有贵宾、临展、办公等用途。
The main body of the museum consists of three stacked exhibition halls surrounded by water and court-yard of which on the outside lies tiered terrace and peripheral high dam (with outdoor exhibition corridors below). Buildings for relics, business and office form L-shaped volume locating on the northwest corner of the dam. Four gates are set for different directions with main entrance on the south gate and the other three ones serving for VIP, temporary exhibition and office respectively.
▼博物馆主体由三层上下叠加的展厅组成,the main body of the museum consists of three stacked exhibition halls ©夏至
▼南立面,south elevation ©夏至
▼博物馆周围环以水面和庭院,the museum is surrounded by water and court-yard ©夏至
参观者由面向阏伯路的大台阶和坡道登临堤台,沿南面凌水引桥而由中部序言厅入“城”,自下而上,沿中央十字大厅(喻城中十字主街)中的坡道陆续参观各个展厅,最后到达屋顶平台,可由建筑主体各角眺望台,与不同方向的著名古迹——阏伯台、归德古城、隋唐大运河码头遗址等遥遥相望,怀古思今。
After climbing the dam through major steps and ramps facing yanbo road, visitors enters the “city” from the preface hall along the south approach bridge above water and then visit each exhibition hall along the ramps of the central crossed hall (indicating the center crossed street). When reaching the roof platform, visitors will have a visual connection with different famous sites: Yanbotai, Guide ancient city, the site of Sui and Tang Grand Canal Pier in different gazebos at each corner of the architecture, recalling the his-tory and rethinking the present.
▼博物馆游观路线,the visiting path
▼参观者由面向阏伯路的大台阶和坡道登临堤台,沿南面凌水引桥而由中部序言厅入“城”,after climbing the dam through major steps and ramps facing yanbo road, visitors enters the “city” from the preface hall along the south approach bridge above water ©夏至
▼入口门厅,entrance hall ©夏至
▼观众由上层入口门厅下至一层的序言厅,the stairs lead visitors move between the entrance hall and the preface hall ©夏至
▼序言厅,the preface hall ©夏至
▼十字中庭,the central crossed hall ©夏至
▼多功能厅,the multi-function hall ©夏至
一系列精心组织的建筑和景观元素,形成了在上下内外、近远、之间往复变化的空间叙事,使参观者游观尽致,完成对这个微缩之城及其所承载延伸的古城历史的完整体验。
A series of elaborately organized elements of architecture and landscape form a sequence of narrative spaces of up and down, inside and outside, near and far, and the reciprocating change, so that the whole experience of traveling this miniature city and its extension of the ancient history can be achieved.
▼一系列精心组织的建筑和景观元素,形成了在上下内外、近远、之间往复变化的空间叙事,a series of elaborately organized elements of architecture and landscape form a sequence of narrative spaces of up and down, inside and outside, near and far, and the reciprocating change ©夏至
博物馆大量采用了一种廉价的“鲁灰”石材,作为建筑内外空间的主要界面材料,但受到博物馆汉画像石藏品的启发,每块石材均作了磨切外边+中间烧毛的处理,错缝拼挂,使细节显得考究。在室内加入了树脂实木面板材,与石材采用统一规格,增强了室内空间的温暖和舒适感。
The museum adopts a large quantity of cheap Shandong grey stones as the main interface material of the internal and external spaces, whereas inspired by the collections of the Han Dynasty’s images and the stones, each stone was treated with surface grinding and internal singeing, and the staggered joints make the details elegant. Unified the specifications with the stones, the resin solid wood panels was joined to enhance the warmth and comfort of the indoor space.
▼南立面石材挂板局部,detial of the north facade ©夏至
▼模型图,model
▼总平面图,the master plan
▼一层平面图,the first floor plan
▼二层平面图,the second floor plan
▼立面图,elevation
▼剖面图,section
客服
消息
收藏
下载
最近






























