查看完整案例

收藏

下载
项目包含9号线Europa-Fira, Parc Logístic 和 Mercabarna三个地铁站的设计,这些地下铁交通站项目旨在以最简化的设计,来创造最大的空间价值和使用功能。设计师希望空间以更加纯朴的形式展现,摆脱人为建造的痕迹,回归最原始的空间逻辑。
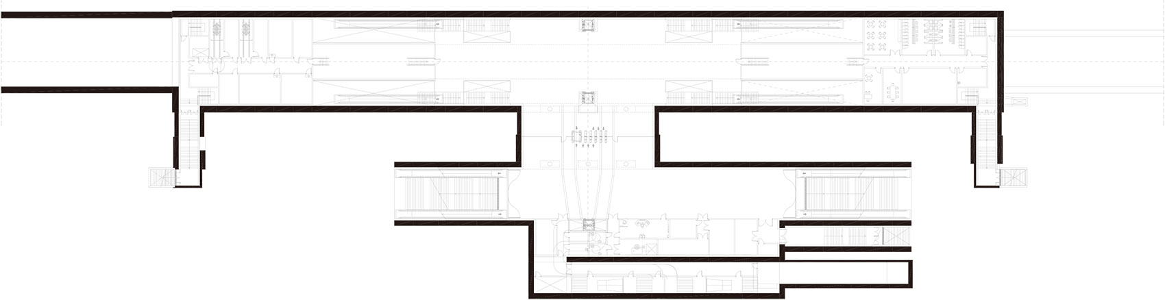
▼Mercabarna station车站平面,Mercabarna station plan
▼Parklogistic车站平面,Parklogistic station plan
▼Eropafira车站平面,Europafira station plan
The Europa-Fira, Parc Logístic and Mercabarna Line 9 station projects point to a proposal that, with minimum means, makes the most of the conditions that are typical of an underground construction. We want a space more geological than constructed, following the classic logic of the “place” normally being the primordial detail of any project.
▼Europa Fira地铁站内景,interior view of Europa Fira
因此,设计师力求实现空间材料的最少程度使用,使空间中原有的结构元素如隔墙,支撑柱,预制挡板等实现最优的表现形式,并进一步完完整项目的整体空间。此外,附加的金属面板,瓷砖地板,栏杆及玻璃电梯,石座长椅和以线性分散形式布局的两种不同样式的工业化灯具,以及TMB原有的售票机,检票机和指示牌,让地铁站这一空间氛围更显浓烈。
Therefore, the use of the smallest number of materials is proposed, completing of those already present in the civil-structural work, such as the screen walls, the construction props, the prefabricated shutter work and slabs, etc. This is all complemented by the sheet metal linings, the ceramic floors, the industrial lighting in two different, linear and sporadic, forms, the railings and glass lifts, the stone benches, TMB’s own elements: ticket machines, tariff barriers and information signs.
▼Europa Fira地铁站:简化空间装饰,Europa Fira: the use of the smallest number of materials is proposed
▼Mercabarna车站:附加材料增强空间氛围,Mercabarna: the interior is complemented by the elements such as sheet metal linings
▼Parc Logístic车站内景,interior view of Parc Logístic
▼Parc Logistic电梯,elevator of station Parc Logistic
▼Europa Fira站台,the platform of Europa Fira
▼Parc Logístic 站台候车长椅, Parc Logistic: the bench
该项目的另一个重要部分是将车站与周围环境隔离开来。设计师决定用全高度隔墙分割室内空间,并借此形成入口,大厅,展台,车道等功能区域。
Another theme of the project revolves around the requirement to seal the convoy off with platform doors when it is in the station. It was decided to make a full-height enclosure to turn it into an exercise in façades, whole façades that seek absolute control of the sections to provide control of the composition of the spaces: accesses, halls, platforms and the metro area.
▼Mercabarna站台: 通高的隔墙分割出各个功能空间,Mercabarna: the full height walls divide the space
地下车站最大程度利用自然光线。该车站环境以永恒而持久的使用功能为设计目标,注重选用更为耐用和易于维护的材料,并最终实现“虚无空间”的环境设计风格。
The stations’ natural lighting has been taken care of as much as possible. The complex aspires to be timeless, not subject to fashionable figures and materials, aging well and easy to maintain, in which the concept of “empty space” is maintained, even when crowded.
▼Mercabarna站台:充分利用屋顶自然光,Mercabarna: make fully use of the natural light
▼Parc Logístic站台,platform of Parc Logístic
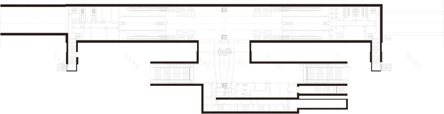
▼Mercabarna station车站平面,Mercabarna station plan
▼Mercabarna station车站剖面,Mercabarna station section
▼Parklogistic车站平面,Parklogistic station plan
▼Parklogistic车站剖面,Parklogistic station section
▼Eropafira车站平面,Europafira station plan
客服
消息
收藏
下载
最近
































