查看完整案例

收藏

下载
这次 ttg 的年轻人们希望把一起一起青年旅舍北京店的理念带到苏州,在关注居住舒适度的同时,更加注重居住之外的交流与体验,更加注重营造年轻化的社区环境。苏州一起一起·湿地小鹿青年旅舍一经运营,便作为了 2018 年威尼斯建筑双年展主宾城市苏州日分会场。
This time, the young people of ttg hope to bring their concepts in Beijing Together Hostel to the City of Suzhou. On the basis of focusing on comfortability, factors beyond living, such as communication, experience, as well as the construction of young community environment are paid attention to more than ever. This makes Together · Venue Fawn Hostel Suzhou become a branch venue of the La Biennale di Venezia 2018 in Suzhou, a main guest city in China.
▼建筑立面,the front facade
项目的起始点来自于对青旅选址建筑及相邻城市环境的学习。建筑位于苏州最为繁华商圈之一的道路节点,曾经是在苏州七八十年代鼎盛期的北塔商场,有着悠久的经营历史与深厚的苏州市井氛围。因建筑地处繁华的城市,与市井商业街道相邻,人们早已习惯把这栋建筑的立面视作沿街的商铺。
The beginning of this project was rooted in the selection of sites for hostels as well as the study of adjacent city environment. The building is located in one of the busiest downtown areas, and also an important traffic point of the city. The construction itself was once a very popular department store named Beiding back in the 70s and 80s with a long history of business and deep local folk-custom. Due to its location and the adjoining business streets, people here are used to consider the building units along the street to be commercial stores.
▼保留沿街商铺,preserve the function of commercial stores along the street
设计的起始点即保留这种早已融入周围城市生活的习惯,继续把建筑底层外立面规划为一组特点鲜明的 pop-up 设计小店和一个可以对内对外营业的咖啡厅。这样做,一方面可以避免居住功能生硬植入商业区所带来的互扰与排异;另一方面,年轻人在来店居住的同时,可以租用这些店铺开设自己理想的“小买卖”:二手书店、跳蚤市集,如果足够有才华,也可以试试售卖自己的设计品或艺术作品……设计中还专门为联结居住功能与这些店铺设置了足够大的公共活动区,年轻人可以用来会客、谈生意、看书、吃零食、看影片,当然,还有各种随机发生的分享活动。公共区域联结了住宿空间与沿街店铺,从而共同形成了一个居住与年轻化市集的结合体,房客更会因为这种体验而增加更多彼此熟识的机会和社区体验。
▼改造过程,process
The design aims to maintain the city living habits which has been melted into the area long time ago, and plans a series of vivid pop-up stores as well as a café on the exterior façade of the building. In this way, the feeling of interference and rejection of this living area into a business domain can be avoided, on the one hand; and on the other, after checking in the Hostel, young people are given the opportunity to rent these shops to start their “little businesses”, no matter it is a second-hand book store or a flea market. With enough talent, they can even put their artistic works on sale. In order to associate with the living functions of the Hostel, the design also plans a considerable communal space for young people to meet friends, discuss business, read, eat, watch movies, and, of course, sharing activities at any random times. It is the communal spaces that associates the living areas and external shops to create a synthesis of habitancy and fairs for the young. The clients of the Hostel will have more opportunity to know each other, and more experience of the community due to this design.
▼空间内设计一个可以对外营业的咖啡厅, a café on the exterior façade of the building
在空间设计上,一起一起苏州店设计从底层沿街店铺入手,用五个嵌入式玻璃房子小店和一个入口的走廊,对原有相对沉闷的外观进行干预,直至向建筑内部空间定向延伸,最大程度地增加了建筑的通透程度。这让人们在路过这些店铺时,可以看到内部公共区域乃至更多的层次,以及其中发生的活动。这些店铺将建筑的室内空间、建筑前的步道、举办市集时作为扩充场地的广场缝合到了一起。
When come to space design, Suzhou Together Hostel uses five embedded glass houselet stores and an entrance porch, starting from the stores on the exterior façade and stretching into the building, to interfere with the relevant dull external appearance and expand the transmittance of the building to the largest extent. People are able to see through the communal spaces via the external stores, the multiple layers of the building and even on-going activities when passing by. The interior spaces, the pavement as well as the square for pop-up fairs outside the Hostel are all sealed together by these stores.
▼入口走廊串联内部各个空间,the entrance porch connects the small spaces inside the building
▼公共区域联结了住宿空间与沿街店铺,从而共同形成了一个居住与年轻化市集的结合体,it is the communal spaces that associates the living areas and external shops to create a synthesis of habitancy and fairs for the young.
▼公共活动区,the communal space
客房空间,在注重隐私度和舒适度的基础上,也尽可能增加了开放与联结的设计元素——在与底层商铺对应的二层区域,多间客房的晾衣区和内部活动区在视觉上彼此相连接,共同构成了一条完整的外廊。这些想法和具体的操作使得苏州这座城市得到了一个生动活跃的“年轻人的立面”, 并让原有的建筑具备了一些“室内园林”的通透性。
Based on guarantee of privacy and a high degree of comfort, the room space also demonstrates openness and communication—on the second floor right above the exterior shops, the clothes drying area and activity space of the dormitories connect to each other and form a complete veranda. These thoughts, and the specific carrying out of them, give the City of Suzhou an animated “façade of youth”, and render the primary construction a transparent character of “indoor garden”.
▼客房空间,the room space
▼多间客房的晾衣区和内部活动区在视觉上彼此相连接,共同构成了一条完整的外廊,the clothes drying area and activity space of the dormitories connect to each other and form a complete veranda
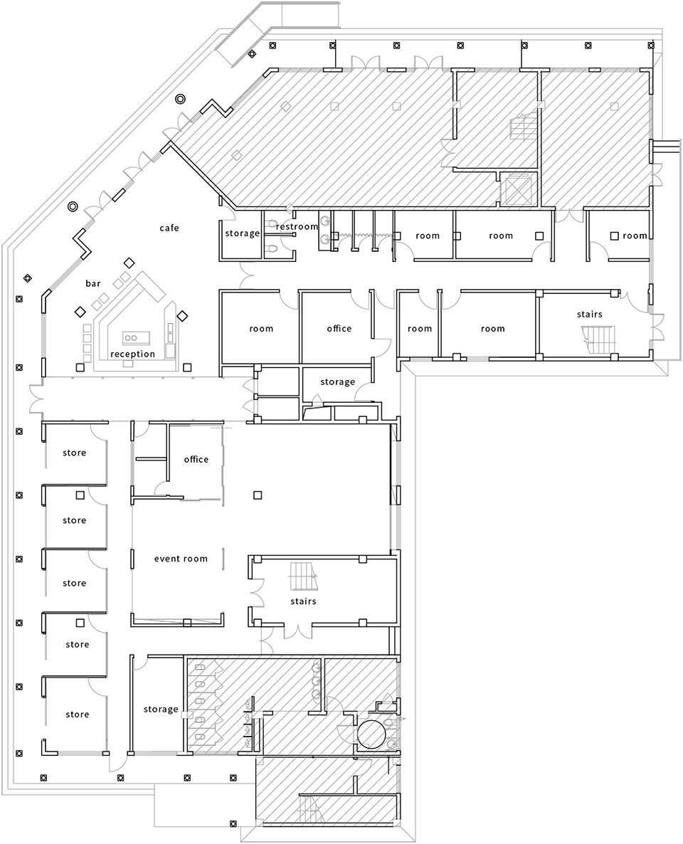
▼一层平面图,the first floor plan
▼二层平面图,the second floor plan
项目总面积:14000 平米
空间设计顾问:曹璞
方案设计团队:曹璞、阙希辰(ttg)
导引VI设计团队:廖大予(ttg)、阙希辰(ttg)
施工图设计及现场施工:上海睿合建筑设计工程有限公司
照片:阙希辰(ttg)
Area: 1400 ㎡
Interior architecture design consultant: Cao Pu
Project team: Cao Pu, Xichen Que(ttg)
Information and signage system design: Dayu Liao(ttg), Xichen Que(ttg)
Construction design/Construction: Shanghai Rare architectural design engineering Co.,Ltd
Photographs: Xichen Que(ttg)
客服
消息
收藏
下载
最近

























